Óseyri 6B
02-0201 · 603 Akureyri



459 dagar á sölu
59.900.000 kr
357.826 kr/m²
Fasteignasalan Hvammur - 466-1600
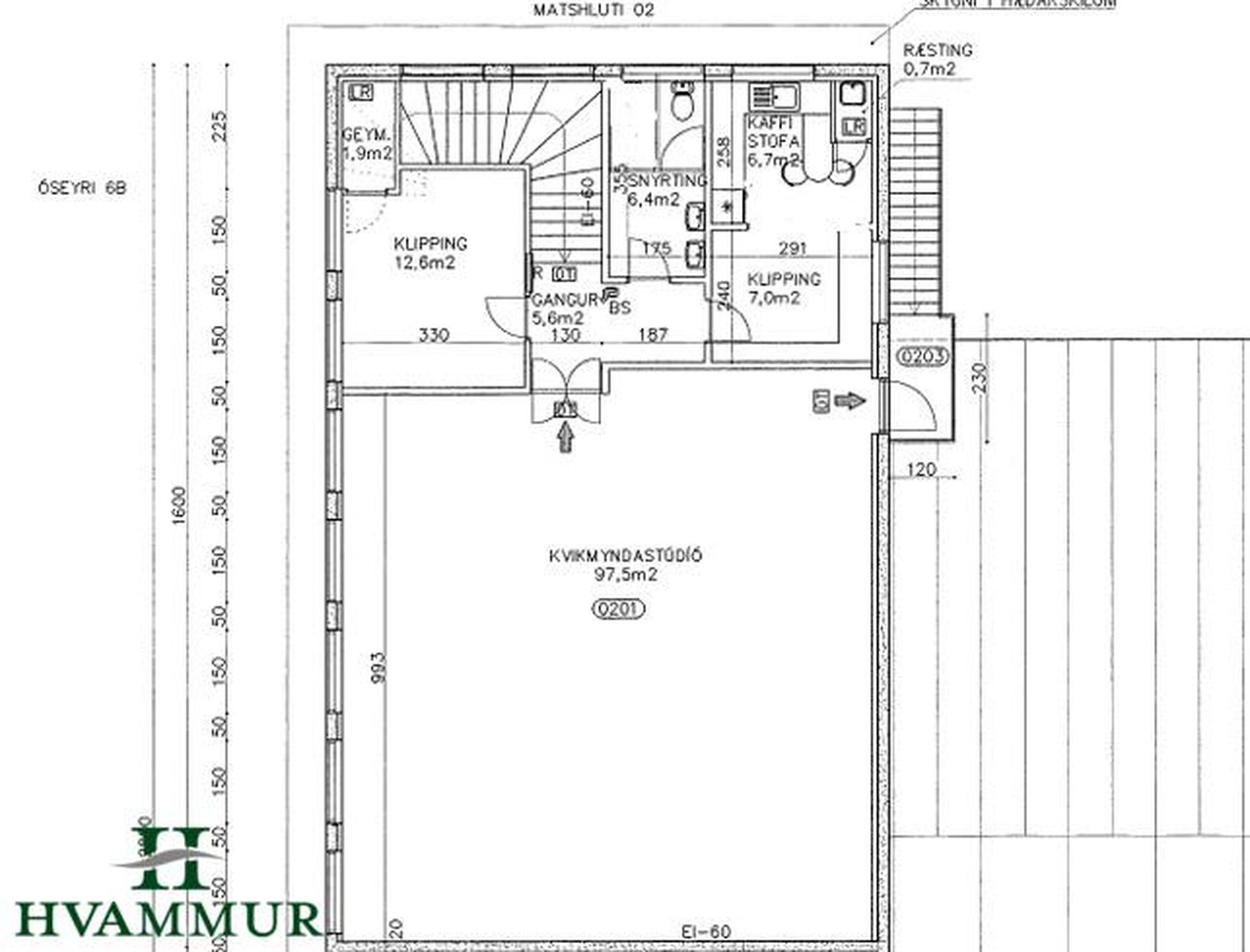
Óseyri 6b eignarhluti 201 - Rúmgott og mikið endurnýjað atvinnuhúsnæði á góðum stað á Óseyri sem gæti nýst á marga vegu - stærð 167,4 m²
Eignin skiptist í anddyri, hol, skrifstofu, salerni, eldhús og sal.
Anddyri er með flísum á gólfum og fatahengi. Þaðan er gengið upp stiga upp í aðal rými eignarinnar
Holið er með flísum á gólfi og þaðan er gengið inn í öll rými.
Skrifstofan er rúmgóð með flísum á gólfi. Innaf skrifstofu er lítil geymsla sem gæti nýst sem skjalageymsla.
Salerni er með flísum á gólfum og viðarlitaðri innréttingu með flísum á milli skápa.
Eldhúsið er með flísum á gólfi og lakkaðri innréttingu, inn af eldhúsinu er lítil ræstikompa.
Salurinn er mjög rúmgóður með nýju harðparketi á gólfi. Stokkur með tölvutengjum fyrir margar starfsstöðvar ef rýmið er notað sem skrifstofurými.
Annað:
- Rúmgóður salur sem gæti nýst sem til dæmis skrifstofur eða veislusalur.
- Ljósleiðari er komin inn og tengdur.
- Nýtt Harðparket lagt á allan salinn í lok árs 2024.
- Ný lýsing í salnum síðan í lok árs 2024
- Ný gler eru í gluggum á norðurhlið, einnig hefur verið skipt um opnanleg fög.
- Eignin er ný máluð.
Um skoðunar- og aðgæsluskyldu:
Í lögum um fasteignakaup nr. 40/2002 er kveðið á um ríka skoðunarskyldu kaupenda á fasteignum. Fasteignasalan Hvammur skorar því á væntanlega kaupendur að kynna sér vel ástand fasteigna fyrir kauptilboðsgerð og leita til þar til bærra sérfræðinga um nánari skoðun ef með þarf.
Forsendur söluyfirlits:
Söluyfirlit er samið af fasteignasala í samræmi við ákvæði laga nr. 70/2015. Þær upplýsingar sem fram koma í söluyfirliti þessu eru sóttar í opinberar skrár, til seljanda sjálfs og eftir atvikum til húsfélags. Seljandi veitir upplýsingar um eign í samræmi við upplýsingaskyldu laga um fasteignakaup nr. 40/2002. Fasteignasali sannreynir að þær upplýsingar séu réttar með sjónskoðun á eigninni.
Fasteignasali getur ekki fullyrt um ástand og eiginleika þeirra hluta fasteigna sem ekki eru aðgengilegir og sjást ekki berum augum, t.d. lagnir, dren, skólp og þak.

Dýpri greining á Húsasjá
- Verðmat fasteignar
- Sölusaga og verðþróun
- Samanburður sambærilegra eigna
















