Tröllhólar 43
01-0101 · 800 Selfossi



33 dagar á sölu
129.900.000 kr
580.688 kr/m²
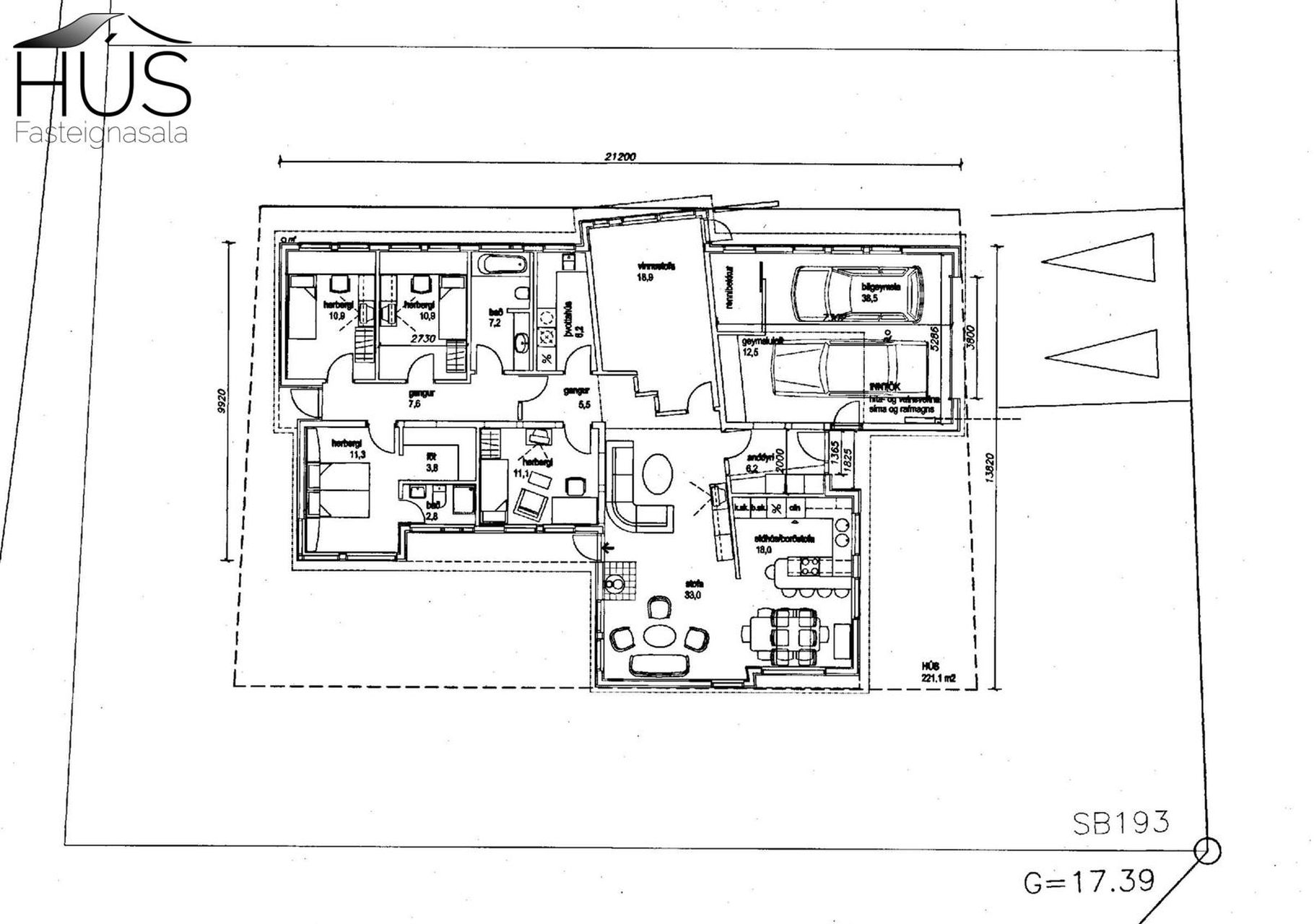
Steindór Guðmundsson löggiltur fasteignasali og HÚS fasteignasala kynna í einkasölu Tröllhóla 43, Selfossi. Glæsilegt einbýlishús á eftirsóttum stað á Selfossi. Húsið er alls 223,7 fm, þar af er bílskúr 44,1fm. Auk þessa er upphitaður geymsluskúr ca. 15 fm. Þrír sólpallar og heitur pottur. Húsið hefur fengið gott viðhald og er garður um umhverfi allt frágengið og mjög snyrtilegt. Seljandi skoðar skipti á ódýrari eign á Selfossi
Hönnuður hússins er Helgi Bergmann arkitekt. Garður er hannaður af Landform/Hermann Ólafsson.
Anddyri, vinnustofa/herbergi með sérinngangi og fjögur svefnherbergi, tvö baðherbergi, stofa/borðstofa og eldhús, þvottahús auk bílskúrs og geymslu.
Allar nánari upplýsingar veitir Steindór Guðmundsson í síma 862 1996 eða steindor@husfasteign.is
Rúmgóð forstofa með skápum.
Björt og stór stofa með útgengi á verönd
Eldhús með stórri innréttingu, tæki eru frá Siemens, tveir ofnar annar þeirra er bæði hefðbundinn ofn og örbylgjuofn, spanhelluborð. Háfur með sogi sem leiðir upp úr þaki. Uppþvottavél innbyggð í innréttingu. Tækjaskápar fyrir hrærivél og fleiri tæki. Flísar milli skápa.
Alls eru fimm svefnherbergi í húsinu. Barnaherbergin eru þrjú eru öll með skápum. Hjónaherbergi er með sér fataherbergi og sérbaðherbergi. Fimmta herbergið/vinnustofa er mjög rúmgott en geymsluloft er yfir hluta af því. Auðvelt að nýta sem herbergi sem vinnustofu/heimaskrifstofu þar sem sérinngangur er í herbergið og lagt fyrir vaski þar.
Þvottahús með hvítri sérsmíðaðri innréttingu með útdraganlegum skápum. Skápar undir þvottavél og þurrkara er í þægilegri vinnuhæð.
Baðherbergi hússins eru tvö. Þar af eitt innaf hjónaherbergi en það er flísalagt með upphengdu wc, sturtu, vaski með innréttingu.
Stærra baðherbergi flísalagt með sturtu, baðkari, upphengt wc. Innrétting úr hlyn með vaski.
Allar innréttingar eru sérsmíðaðar í húsið.
Í öllum loftum íbúðarhúss eru loft upptekin og klædd með hvíttuðum og sérunnum panill, innfeld lýsing í eldhúsi, stofu og gangi.
Öll gólf hússins eru flísalögð með hita í gólfi, og hitastýringum í hverju rými. Rör í rör hitakerfi.
Allar innréttingar, hurðir og fataskápar eru spónlagðar með hlyn. Sérsmiðað af GKS. Sólbekkir eru hlynur/límtré.
Húsið er allt klætt að innan með harðgifsi.
Bílskúr er flísalagður með hita í gólfi. Innrétting í bílskúr með vinnuborði. Góð vinnulýsíng í bílskúr. Innkeyrsluhurð með opnara.
Geymsluherbergi er ofan við bílskúr með hillum allan hringinn og stiga upp á loft.
Nánari lýsing húss og lóðar.
Þak er klætt með alusink bárujárni. Þakkantur litað ál með lýsingu neðan í kantinum. Klæðning útveggja er duropal plastklæðning og timbur. Gluggar og hurðir ál, tré. Allt gler tvöfalt einagrunargler með loftrúm upp á 23mm sem gefur aukna einangrun.
Bílaplan hellulagt með hita undir lokað kerfi með frostlegi.
Geymsluskúr þar er hiti undir hellulögn inni í skúr. Ljós og tengill á vegg. Stærð skúrs er um 15m2.
Hlaðinn veggur úr náttúrustein með torfi að ofanverðu er við inngang hússins.
Sólpallar eru þrír.
Suðurpallur er með vandaðari plastklæðningu í svargráum lit. Skjólveggur með ljósum er við pallinn.
Vestur-pallur sem er viðarpallur með heitum potti og skjólveggjum og ljósum.
Austur pallur er við geymsluskúr þar sem er einnig sandkassi.
Útisnúrur eru vestan megin við húsið með trépalli undir.
Sorpskýli fyrir 3 tunnur með þaki yfir. Hjólhýsastæði með rafmagnstengli.
Húsið er mjög viðhaldslétt. Timburklæðning hefur verið máluð á þriggja ára fresti, en stærstu hluti hússins er með Duropal klæðningu og lítill hluti er úr timbri.
Uppsett hleðslustöð, skráð hjá Mannvirkjastofnun.
,,Okkar fagmennska eru þínir hagsmunir"
Gjöld sem kaupandi þarf að standa straum að vegna kaupanna.
1. Stimpilgjöld af kaupsamningi - 0,8 % af heildarfasteignamati. (0,4% fyrstu kaup, 1,6% lögaðilar)
2. Þinglýsingargjald af kaupsamningi, veðskuldabréfi, mögulegu veðleyfi o.fl. kr. 3.800 af hverju skjali.
3. Lántökugjald lánastofnunnar, breytilegt. Nánari upplýsingar t.d. á heimasíðum lánastofnanna.
4. Umsýslugjald til fasteignasölu sbr. Kauptilboð

Fáðu nýja innsýn á Húsasjá
- Verðmat fasteignar
- Sölusaga og verðþróun
- Samanburður sambærilegra eigna

































