Klettaborg 66
06-0103 · 600 Akureyri



146 dagar á sölu
105.000.000 kr
699.068 kr/m²
Fasteignasalan Byggð 464-9955 - Einkasala
Klettaborg 66
Falleg og mjög mikið endurnýjuð fjögurra herbergja endaraðhúsaíbúð með innbyggðum bílskúr. Glæsilegt útsýni er úr eigninni sem er samtals 150,2 fm. þar af bílskúr 24 fm..
Eignin skiptist með eftirfarandi hætti á neðri hæð, forstofu, snyrtingu, eldhús og stofu ásamt sambyggðum bílskúr. Á efri hæð er gangur, baðherbergi, þrjú svefnherbergi og geymsla.
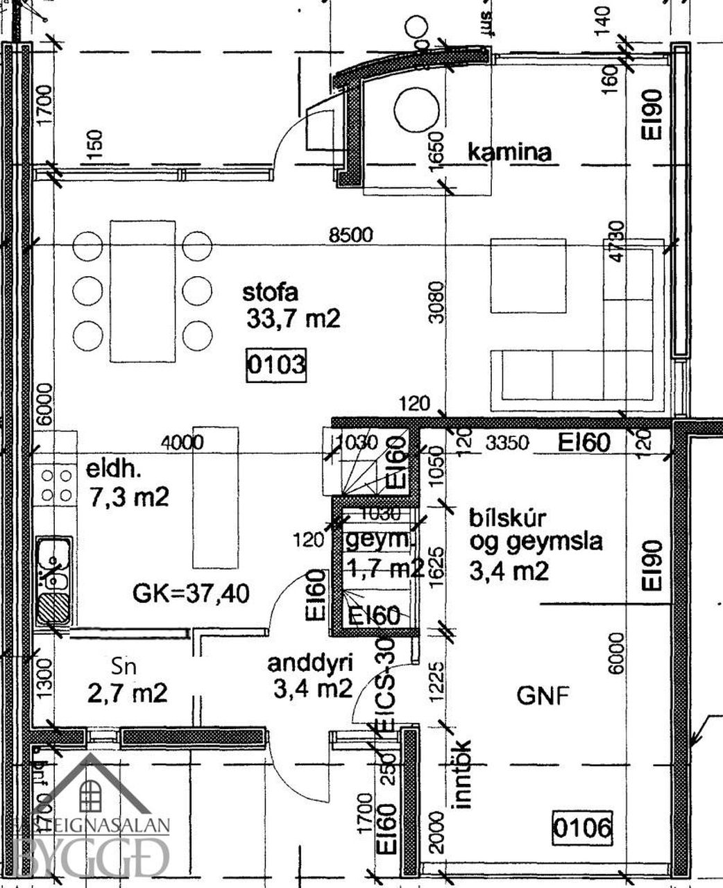
Neðri hæð:
Forstofa er með parket á gólfi og opnu fatahengi.
Snyrting er inn af forstofu, þar er upphengt salerni, vaskur og opnanlegt fag.
Eldhús er með parket á gólfi, falleg innrétting með miklu skápaplássi, innbyggður ísskápur og uppþvottavél og ljósar flísar á bekkjarplötu og á vegg yfir skápum. Falleg lýsing í hillu fyrir ofan vask.
Stofa er björt með ljósu parketi á gólfi. Milli stofu og eldhúss er hurð út á stóra steypta verönd með heitum potti.
Teppi er á stiga milli hæða.
Svefnherbergin eru þrjú, öll með ljósu parketi á gólfi og fataskápum. Úr hjónaherbergi er gengið út á svalir til vesturs.
Baðherbergi er með flísum á gólfi og fallegum dökkum plötum á veggjum. Falleg brún innrétting með hvítri bekkjarplötu og frístandandi vask með miklu skúffuplássi, upphengt salerni og handklæðaofn.
Geymsla er með parketi á gólfi.
Bílskúr er skráður 24 fm. og er innangengt í hann í gegnum forstofu og þar er rafdrifinn hurðaropnari. Innrétting í enda bílskúrs er með stæði fyrir þvottavél og þurrkara ásamt vask og fallegar ljósar flísar á gólfi.
Annað
-Vel um gengin og mjög snyrtileg eign
-Stór steypt verönd með heitum potti sem snýr til vesturs.
-Næturlýsing í stiga milli hæða
-Falleg innfelld lýsing meðal annars yfir borðstofuborði og á baðherbergi
-Innfeld blöndunartæki og lagnir á baðherbergi
-Hiti er í öllum gólfum
-Mjög fallegt útsýni
-Góð staðsetning, miðsvæðis á Akureyri stutt í verslun og aðra þjónustu
Gjöld sem kaupandi þarf að standa straum af vegna kaupanna:
1. Stimpilgjald af kaupsamningi - 0.8% af heildarfasteignamati / 1.6% fyrir lögaðila. (0.4% við fyrstu kaup einstaklinga m.v. að lágmarki 50% eignarhlut).
2. Þinglýsingagjald af kaupsamningi, veðskuldabréfi, veðleyfi o.fl.- kr. 2.700 af hverju skjali.
3. Lántökugjald lánastofnunar -almennt 0,5-1,0% af höfuðstól skuldabréfs (nánari upplýsingar m.a. á heimasíðum lánastofnanna).
4. Umsýsluþóknun til fasteignasölu, sbr.kauptilboð.
Frekari upplýsingar:
bjorn@byggd.is
greta@byggd.is
berglind@byggd.is
olafur@byggd.is
Skipagötu 16 á 2. hæð.
S:464 9955

Fáðu nýja innsýn á Húsasjá
- Verðmat fasteignar
- Sölusaga og verðþróun
- Samanburður sambærilegra eigna










































