Sörlaskeið 31
01-0103 · 221 Hafnarfirði



640 dagar á sölu
44.900.000 kr
368.033 kr/m²
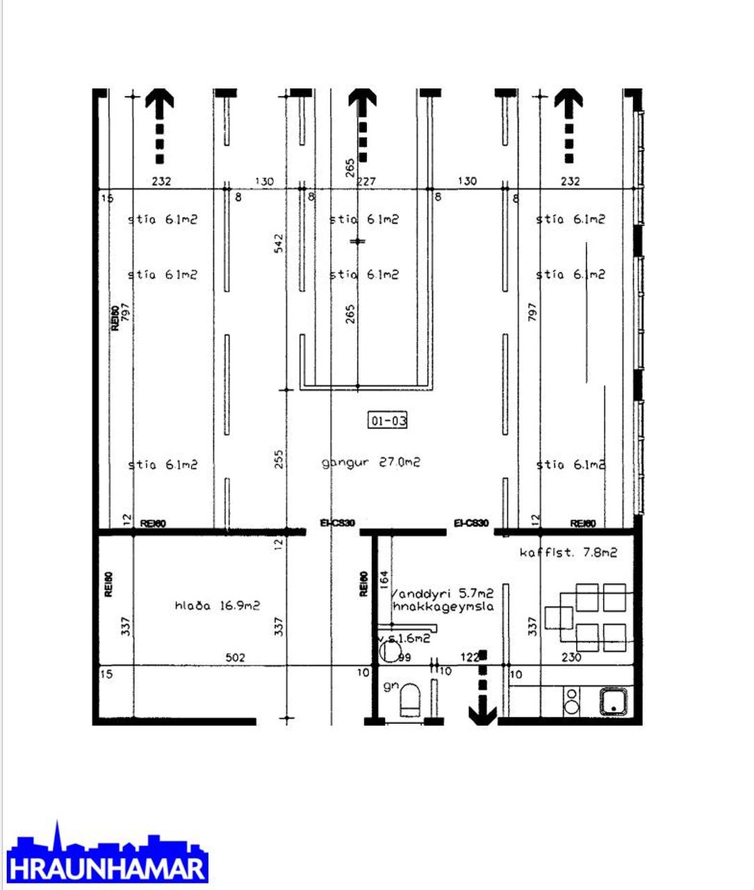
Hraunhamar kynnir: Afar gott 14 hesta hesthús á félagssvæði Sörla í Hafnarfirði. (122 fm) Um er að ræða endabil í 3ja húsa lengju. Á svæðinu er verið að byggja eina glæsilegustu reiðhöll landsins með öllu tilheyrandi !
Húsið er steypt, einangrað og klætt að utan með bárujárni. (viðhaldslétt) Stórt gerði og annað minna gerði fylgir. Steypt stétt í kringum húsið með hitalögnum að hluta. Hitaveita.
Húsið skiptist m.a. þannig: Hesthús innréttað fyrir 14 hesta, (samkv.gömlu reglugerðinni) nokkrar eins hesta stíur þ.m.t. stóðhestastíur. Plast og ryðfrítt efni í milligerðum. Rúmgóð hlaða með bílskúrshurð. Talía í hlöðu.
Fín lofthæð í hesthúsi og nokkri velux opnanlegir gluggar í lofti. Húsið er bjart og rúmgott enda endabil. Fín járningaraðstaða/baðaðstaða. Góð kaffistofa með snyrtingu innaf. Vandaðar innréttingar.
Virkilega gott hesthús á besta stað í hverfinu. Frábærar reiðleiðir í fögru umhverfi.
Nánari uppl gefur Helgi Jón Harðarson sölustj. s. 893-2233 eða helgi@hraunhamar.is
og Freyja M. Sigurðardóttir lgf. s. 520-7500 eða freyja@hraunhamar.is
Skoðunarskylda:
Í lögum um fasteignakaup nr. 40/2002 er kveðið á um ríka skoðunarskyldu kaupenda á fasteignum. Hraunhamar fasteignasala vill benda væntanlegum kaupendum á að kynna sér vel ástand fasteigna fyrir kauptilboðsgerð og ef þurfa þykir að leita til sérfræðinga fyrir nánari ástandsskoðun.
Gjöld sem kaupandi þarf að standa straum af vegna kaupanna:
1. Stimpilgjald af kaupsamningi, fyrstu kaup (0,4%), almenn kaup (0,8%), lögaðilar (1,6%) af heildarfasteignamati.
2. Þinglýsingargjald af kaupsamningi, veðskuldabréfi, mögulegu veðleyfi o.fl. – kr. 2.700 kr. af hverju skjali.
3. Lántökugjald lánastofnunar er skv. verðskrá viðkomandi lánastofnunar.
4. Umsýslugjald til fasteignasölu skv. þjónustusamningi
Hraunhamar er elsta fasteignasala Hafnarfjarðar, stofnuð 1983.
Hraunhamar, í fararbroddi í rúm 40 ár. – Hraunhamar.is
Smelltu hér til að fá frítt söluverðmat.
Smelltu hér til að fá söluyfirlit sent strax.

Fáðu nýja innsýn á Húsasjá
- Verðmat fasteignar
- Sölusaga og verðþróun
- Samanburður sambærilegra eigna
































