Efstahlíð 8
01-0201 · 221 Hafnarfirði



14 dagar á sölu
165.900.000 kr
718.182 kr/m²
Hraunhamar fasteignasala kynnir: Virkilega fallegt og velbyggt tvílyft einbýli á besta stað í Mosahlíðinni Hfj, húsið er samtals 231,0 fm þar af bílskúr 33 fm. Á neðri hæð hússins er björt og góð 2ja herbergja íbúð með sér inngangi. (auðvelt samt að breyta í sama horf og var áður, sjá teikningu) Fallegur garður, hellulagðar verandir og timbur pallar með skjólgirðingum. Útsýni.
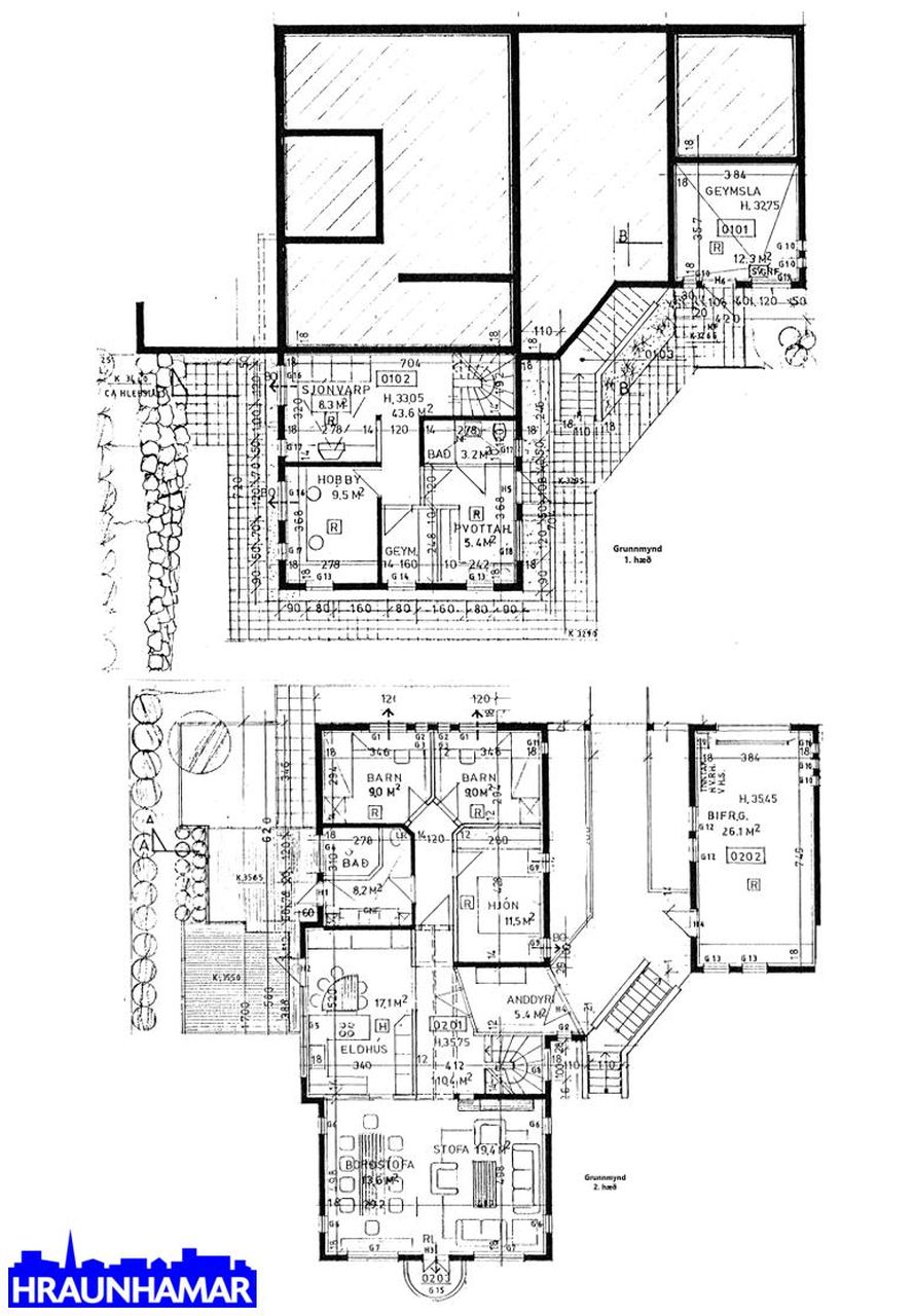
Eignin skiptist m.a. þannig: Efri hæð: Góð hellulögð aðkoma, rúmgóð falleg forstofa, gangur/hol með glugga, (steyptur stigi á milli hæða sem búið er að loka af) stór gluggi í mæni yfir gangi (birtu gluggi) Mjög falleg rúmgóð björt stofan og borðstofan, svalir frá stofu, hátt til lofts. Eldhúsið er fallegt og rúmgott með ljósri innréttingu (nýlegir frontar) góð tæki, innangengt í borðstofu/stofu rými frá eldhúsi. Mikið skápapláss í eldhúsi, útgengt frá eldhúsi á suður pallinn/veröndina með skjólgirðingu. Svefnálma: Mjög fallegt og rúmgott baðherbergi með fínni sturtuaðstöðu, ljós innrétting, flísar í hólf og gólf, upphengt salerni, handklæðaofn, gluggi. Gott hjónaherbergi með skáp og tvö góð barnaherbergi.
Neðri hæð: Góð aðkoma og stórt hellulagt svæði. Bört og góð 2ja herbergja íbúð með sér inngangi er á neðri hæðinni. Fallegt eldhús (þvottaherbergi á teikningu)með hvítri innréttingu, rúmgott herbergi og stofa þar. (sjónvarpshol á teikningu) hol er þar sem steyptur teppalagður stigi kemur niður. Gott baðherbergi með finni sturtuaðstöu, flísar í hólf og gólf.
Bílskúr er með góðri lofthæð, milliloft og rúmgott þvottaherbergi (geymsla á teikningu) með gluggum fyrrir innan bílskúr, útgengt þaðan á hellulagða veröndina, nokkrir metrar síðan inn í húsið.
Undir bílskúr er síðan stórt upphitað herbergi/geymsla með gluggum og sér inngangi. (það hefur m.a. verið notað sem íbúðarherbergi.) beint og gott aðgengi er að því af hellulagðri verönd að neðanverðu.
Húsið er viðhaldslétt og í góðu ásigkomulagi. Hátt til lofts á efri hæð, innfelld lýsing. Parket og mustang flísar á gólfum.
Skv. seljanda hefur eftirfarandi verið gert sl. ár
2025: Flasningar við þakglugga endurnýjaðar
2024: Ný gönguhurð í bílskúr og útihurð á baðherbergi
2024: Eldhúsinnrétting og tæki á neðri hæð sett upp
2024: Sett upp sorptunnuskýli með steyptri undirstöðu
2023: Skipt um fronta og borðplötur á eldhúsinnréttingu auk skúffubrauta. Einnig skipt um eldavél og háf.
2023: Þvottahús innréttað í bílskúr
Síðustu ár er búið að skipta út tré glerlistum fyrir plast á álaghliðum auk þess sem gluggar voru málaðir.
Þakkantur var álklæddur fyrir ca 8 árum síðan
Garður er fallegur og snyrtilegur, en í garðinum er m.a. stórt og fallegt gullregn sem prýðir. tvær stórar hellulagðar verandir eru að neðanverðu. að ofanverðu (frá eldhúsi) er pallur í suður með skjólgirðingu. Stórt hellulagt plan með hita. Úti tröppur eru beggja megin við húsið niður í garðinn að neðanverðu.
Þetta er afar góð og falleg eign sem vert er að skoða frekar á þessum rólega og vinsæla stað.
Nánari uppl. gefur Helgi Jón Harðarson sölustjóri s. 8932233 helgi@hraunhamar.is og
Glódís Helgadóttir lgf. s. 659-0510 glodis@hraunhamar.is
Skoðunarskylda:
Í lögum um fasteignakaup nr. 40/2002 er kveðið á um ríka skoðunarskyldu kaupenda á fasteignum. Hraunhamar fasteignasala vill benda væntanlegum kaupendum á að kynna sér vel ástand fasteigna fyrir kauptilboðsgerð og ef þurfa þykir að leita til sérfræðinga fyrir nánari ástandsskoðun.
Gjöld sem kaupandi þarf að standa straum af vegna kaupanna:
1. Stimpilgjald af kaupsamningi, fyrstu kaup (0,4%), almenn kaup (0,8%), lögaðilar (1,6%) af heildarfasteignamati.
2. Þinglýsingargjald af kaupsamningi, veðskuldabréfi, mögulegu veðleyfi o.fl. – 3.800 kr. af hverju skjali.
3. Lántökugjald lánastofnunar er skv. verðskrá viðkomandi lánastofnunar.
4. Umsýslugjald til fasteignasölu skv. þjónustusamningi
Hraunhamar er elsta fasteignasala Hafnarfjarðar, stofnuð 1983.
Hraunhamar, í fararbroddi í rúm 40 ár. – Hraunhamar.is
Smelltu hér til að fá frítt söluverðmat.

Dýpri greining á Húsasjá
- Verðmat fasteignar
- Sölusaga og verðþróun
- Samanburður við sambærilegar eignir
















































