Asparás 8
02-0101 · 210 Garðabæ



6 dagar á sölu
83.900.000 kr
837.325 kr/m²
Hraunhamar kynnir: Bjarta og fallega 100,2 fm 3ja herbergja íbúð á jarðhæð með rúmgóðri timburverönd með skjólveggjum í litlu lágreistu fjölbýli á eftirsóknarverðum stað í Ásahverfi í Garðabæ.
Garðurinn í suður hefur fengið verðlaun/viðurkenningu hjá Garðabæ. Húsið er klætt að utan og því viðhaldslétt, aðeins 4 íbúðir í stigahúsi.
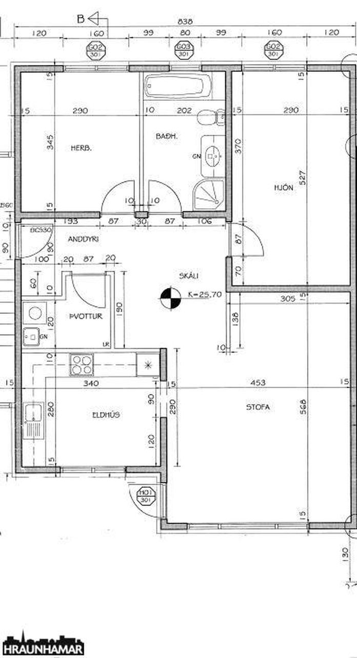
Skemmtileg eign með rúmgóðum herbergjum og rúmgóðu alrými ásamt sér þvottahúsi innan íbúðar. Eignin er skráð 100,2 fm samkvæmt Þjóðskrá en þar af er geymsla 7,6 fm.
Eignin telur anddyri, tvö rúmgóð svefnherbergi, baðherbergi, þvottaherbergi, sjónvarpshol/vinnuaðstaða, eldhús, stofu og borðstofu, ásamt sér geymslu í sameign.
Nánari lýsing:
Anddyri: Flísar á gólfi og rúmgóður fataskápur sem nær upp í loft
Herbergi 1: Bjart og mjög rúmgott, parket á gólfi og góðir fataskápar sem ná upp í loft.
Herbergi 2: Bjart og rúmgott, parket á gólfi og góðir fataskápar sem ná upp í loft.
Baðherbergi: Flísar í hólf og gólf. Ljós innrétting, sturta, baðkar, handklæðaofn og gluggi með opnanlegu fagi.
Þvottahús: Flísar á gólfi og upp á miðja veggi, tengi fyrir þvottavél og hillur.
Sjónvarpshol: Parket á gólfi
Eldhús: Flísar á gólfi. Eldhúsinnrétting sem nær upp í loft. Helluborð, vifta og bakaraofn.
Stofa og borðstofa: Bjart samliggjandi rými með parketi á gólfi og stórum gluggum og útgengi á mjög rúmgóða viðarverönd með skjólveggjum.
Sér geymsla í sameign og sameiginleg hjólageymsla. Ath: myndir eru frá því að eignin var í sölu fyrir nokkrum árum síðan, lítill veggur í stofu hefur verið fjarlægður síðan þá.
Um er að ræða vel staðsetta eign þar sem stutt er í fallega náttúru, skóla, leikskóla og alla helstu þjónustu.
Nánari uppl. veita Helgi Jón Harðarson sölustjóri s. 893-2233 helgi@hraunhamar.is og
Glódís Helgadóttir lgf. glodis@hraunhamr.is
Skoðunarskylda:
Í lögum um fasteignakaup nr. 40/2002 er kveðið á um ríka skoðunarskyldu kaupenda á fasteignum. Hraunhamar fasteignasala vill benda væntanlegum kaupendum á að kynna sér vel ástand fasteigna fyrir kauptilboðsgerð og ef þurfa þykir að leita til sérfræðinga fyrir nánari ástandsskoðun.
Gjöld sem kaupandi þarf að standa straum af vegna kaupanna:
1. Stimpilgjald af kaupsamningi, fyrstu kaup (0,4%), almenn kaup (0,8%), lögaðilar (1,6%) af heildarfasteignamati.
2. Þinglýsingargjald af kaupsamningi, veðskuldabréfi, mögulegu veðleyfi o.fl. – 3.800 kr. af hverju skjali.
3. Lántökugjald lánastofnunar er skv. verðskrá viðkomandi lánastofnunar.
4. Umsýslugjald til fasteignasölu skv. þjónustusamningi
Hraunhamar er elsta fasteignasala Hafnarfjarðar, stofnuð 1983.
Hraunhamar, í fararbroddi í rúm 40 ár. – Hraunhamar.is
Smelltu hér til að fá frítt söluverðmat.
Smelltu hér til að fá söluyfirlit sent strax.

Dýpri greining á Húsasjá
- Verðmat fasteignar
- Sölusaga og verðþróun
- Samanburður sambærilegra eigna





















