Silfurslétta 5
01-0103 · 162 Reykjavík



660 dagar á sölu
29.900.000 kr
541.667 kr/m²
Bjarni Blöndal löggiltur fasteignasali (bjarni@remax.is/s:662-6163) kynnir: Silfurslétta 5, gott iðnaðar/geymsluhúsnæði í iðnaðarhverfinu á Esjumelum í Reykjavík.
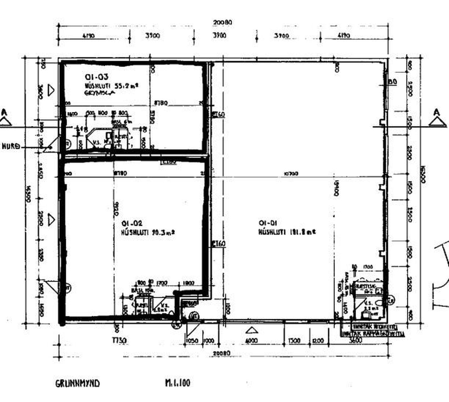
Um er að ræða einlyft stálgrindarhús með málmklæðningu, veggir og þak byggt árið 1997. Grunnflötur húsnæðisins er skráður 55,2fm í fasteignaskrá HMS en til viðbótar er innréttað u.þ.b. 35fm milliloft Húsnæðið er því um 90fm að gólffleti með óskráðu millilofti. Góður timburstigi á efri hæð sem er að mestu parketlögð. Þar er skrifstofa/kaffistofa með eldhúsinnréttingu. Snyrting með innréttingu og baðkari. Ágæt skrifstofa/herbergi. Geymsluloft undir súð. Bilið er skráð 01-03.
Góðar innkeyrslu- og göngudyr eru á húsinu. 3ja fasa rafmagn. Kynding með hitaveitu - gólfhiti á neðri hæð. Mjög gott geymslupláss er á lóðinni.
Húsnæðið er ekki með vsk. kvöð.
Allar upplýsingar um eignina veitir Bjarni Blöndal löggiltur fasteignasali í síma 662 6163 eða bjarni@remax.is.
Vegna mikillar eftirspurnar vantar mig allar tegundir eigna á skrá. Hafðu samband og ég mun verðmeta eign þína þér að kostnaðarlausu.
Gjöld sem kaupandi þarf að standa straum af vegna kaupanna:
1. Stimpilgjald af kaupsamningi 0,8%, ( 0,4% ef um fyrstu kaup er að ræða ) og 1.6% (ef lögaðilar) af heildar fasteignamati.
2. Þinglýsingargjald af kaupsamningi, veðskuldabréfi, mögulegu veðleyfi o.fl. - kr. 2.700 af hverju skjali.
3. Lántökugjald lánastofnunar, sjá upplýsingar á heimasíðu lánastofnana.
4. Umsýsluþóknun til fasteignasölu, sbr.kauptilboð.

Dýpri greining á Húsasjá
- Verðmat fasteignar
- Sölusaga og verðþróun
- Samanburður sambærilegra eigna