Flétturimi 38
03-0201 · 112 Reykjavík



172 dagar á sölu
71.900.000 kr
734.423 kr/m²
Landmark fasteignamiðlun kynnir:
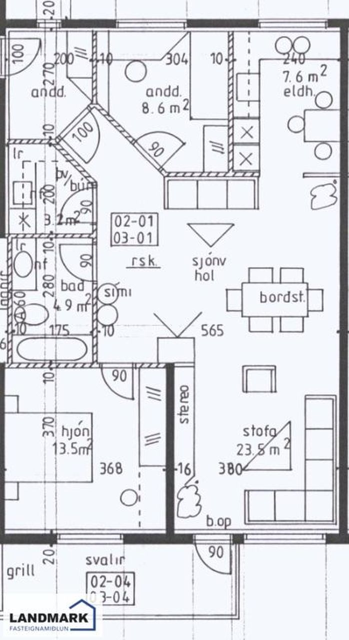
Virkilega fallega 3ja herbergja 97,9 fm. íbúð á 2.hæð í vel viðhöldnu fjölbýli. Gengið innaf svölum í íbúðina. 8 íbúðir í stigagangi. Um er að ræða fjölbýlishús sem er „steinað“ að utan, því nokkuð viðhalds lítið. Íbúðin snýr norður / suður. Stórar suðursvalir út úr stofu. Íbúðin er vel skipulögð og nýtist einstaklega vel. 2 rúmgóð svefnherbergi. Frábær staðsetning innan hverfis.
Nánari upplýsingar veitir:
Þórarinn Thorarensen sölustjóri s. 770-0309 eða th@landmark.is
Sveinn Eyland lögg. fast. s. 6 900 820 eða sveinn@landmark.is
Nánari lýsing:
Forstofa: Flísar á gólfi, fataskápur.
Miðrými: Afar rúmgott með parket á gólfi.
Stofa / Borðstofa: Afar rúmgóðar með parket á gólfi, útgengt á stórar suðursvalir.
Eldhús: Falleg viðar innrétting, með góðum tækjum. Flísar á gólfi og milli skápa. Lítill borðkrókur þar inni.
Svefnherbergi: 2 rúmgóð herbergi, bæði með fataskápum. Parket á gólfum.
Baðherbergi: Flísar á gólfi og veggjum. Baðkar með sturtuaðstöðu. Falleg innrétting í kringum handlaug.
Þvottahús: Flísar á gólfi. Góð innrétting með skolvaski í borðplötu. Góð aðstaða fyrir þvottavél og þurrkara.
Sérgeymsla á jarðhæð ásamt sameiginlegri hjólageymslu.Skoðunar- og aðgæsluskylda:
Lög um fasteignakaup nr. 40/2002 kveða á um að kaupendur þurfi að skoða fasteignir vel áður en tilboð er gert. LANDMARK fasteignamiðlun ráðleggur kaupendum að skoða ástand eignar og leita sér aðstoðar sérfræðinga ef þörf er á nánari skoðun.
Söluyfirlit:
Söluyfirlit er gert af fasteignasala samkvæmt lögum nr. 70/2015. Upplýsingar í yfirlitinu eru fengnar úr opinberum skrám, frá seljanda og ef þarf frá húsfélagi. Fasteignasali sannreynir upplýsingar með skoðun á eigninni en getur ekki sannreynt ástand þess sem ekki er aðgengilegt eða sýnilegt, t.d. lagnir, dren, skólp og þak.
Gjöld sem kaupandi þarf að greiða:
1. Stimpilgjald: 0,8% af fasteignamati (0,4% fyrir fyrstu kaup) og 1,6% fyrir lögaðila.
2. Þinglýsingargjald: 2.700 kr. fyrir hvert skjal.
3. Lántökugjald: Fer eftir gjaldskrá lánveitanda.
3. Þjónustusýslugjald: 79.000 kr. m/vsk.
3. Skipulagsgjald: Ef um nýbyggingu er að ræða, 0,3% af brunabótamáti þegar það er lagt á.
Heimasíða LANDMARK
Pantaðu frítt söluverðmat

Dýpri greining á Húsasjá
- Verðmat fasteignar
- Sölusaga og verðþróun
- Samanburður sambærilegra eigna




























