Núpalind 8
01-0702 · 201 Kópavogi



395 dagar á sölu
99.900.000 kr
674.544 kr/m²
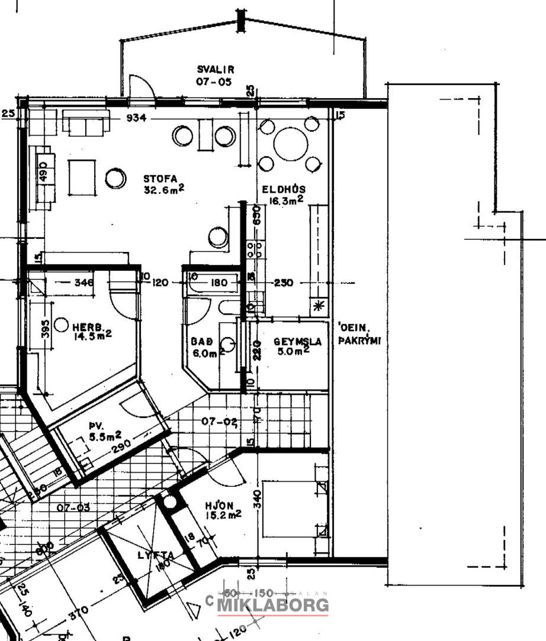
Miklaborg kynnir: Falleg og vel skipulögð þriggja herbergja 120 fm útsýnisíbúð á 7. hæð (efstu) í viðhaldslitlu fjölbýli í Núpalind í Kópavogi. Íbúðin er skráð 120 fm en auk þess fylgja íbúðinni tvö stæði í bílageymslu sem eru samtals 28 fm. Alls er eignin skráð 148,1 fm. Á hæðinni eru aðeins tvær íbúðir. Eignin skptist í forstofu, tvö svefnherbergi, eldhús, þvottahús, baðherbergi, stofu,borðstofu, yfirbyggðar svalir, búr og tvö stæði í bílastæðahúsi
Nánari upplýsingar veitir Óskar Sæmann í síma 6912312 eða osa@miklaborg.is
Núpalind 8 er staðsteypt steinhús byggt árið 1999 með einum stigagangi með lyftu, einangrað að utan og klætt með plötuklæðningu. Gluggar eru álklæddir timburgluggar með þreföldu einangrunargleri. Örstutt er í Lindaskóla, leikskóla, verslanir og göngu- og hjólaleiðir.
Íbúð 702 Nánari lýsing
Forstofa er rúmgóð með góðum skápum. Svefnherbergin eru tvö, bæði björt, með parketi á gólfum og góðum skápum. Stofa er björt og rúmgóð með stórum gluggum og miklu útsýni til suð-vesturs, útgengi út á stórar yfirbyggðar svalir sem snúa í suð-vestur. Borðstofa og stofa eru í opnu alrými. Eldhús er snyrtilegt og rúmgott með góðri innréttingu með ofni í vinnuhæð, helluborði, háf og plássi fyrir ísskáp og uppþvottavél. Búr er inn af eldhúsi. Sér þvottahús er innan íbúðar með skáp og skolvask og plássi fyrir þvottavél og þurrkara. Baðherbergi með flísum á gólfi og veggjum, sturtuklefa, salerni og innréttingu. Parket er á öllum gólfum nema á baðherbergi, þvottahúsi og forstofu, en þau rými eru öll flísalögð. Innréttingar og skápar eru upprunaleg en í góðu ástandi. Íbúðinni fylgja tvö bílastæði í lokuðu bílastæðahúsi.
Stigagangur og önnur sameign er sérlega snyrtileg. Á jarðhæð er sameiginleg hjóla- og vagnageymsla.
Nánari upplýsingar veitir
Óskar Sæmann Axelsson Löggiltur fasteignasali í síma 691-2312 eða osa@miklaborg.is

Dýpri greining á Húsasjá
- Verðmat fasteignar
- Sölusaga og verðþróun
- Samanburður við sambærilegar eignir



























