Efstahlíð 11
01-0101 · 221 Hafnarfirði



27 dagar á sölu
144.900.000 kr
762.632 kr/m²
Guðmundur H. Sveinsson, aðstoðarmaður fasteignasala, Hólmar Björn Sigþórsson löggiltur fasteignasali og Helgafell fasteignasala kynna með stolti í einkasölu Efstuhlíð 11, 221 Hafnarfirði:
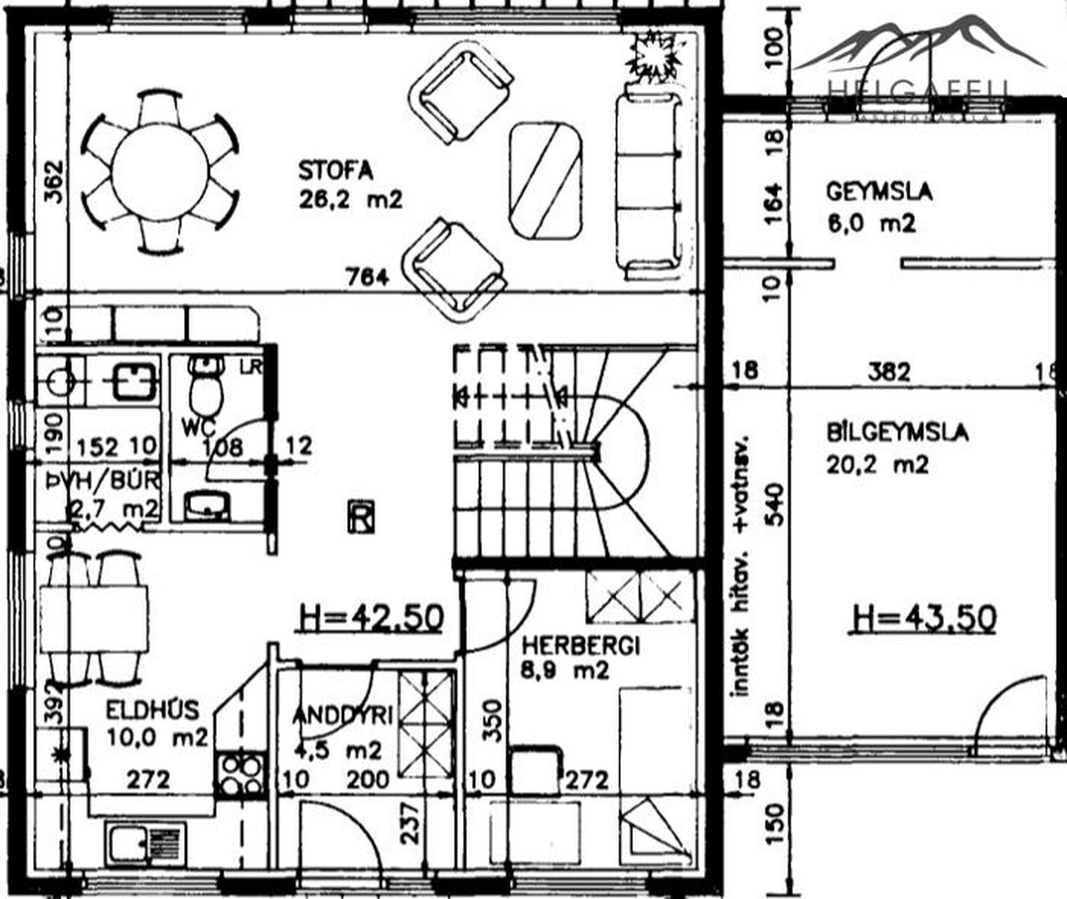
Hér er um að ræða vel fallegt og mikið endurnýjað 5 herbergja fjölskylduhús á tveimur hæðum. Húsið er staðsett innarlega í rólegum botnlanga á vinsælum og fjölskylduvænum stað þar sem stutt er í bæði leik- og grunnskóla. Samkvæmt skráningu er húsið 190 fm, þar af er íbúðarhluti 159,3 fm og bílskúr 30,7 fm. Húsið var byggt árið 1996 og stendur á 762,9 fm lóð. Fallegur suðurgarður með stórum sólpalli og heitum potti – algjör sælureitur.
Skipulag eignar: Forstofa, stofa / borðstofa, sjónvarpshol, eldhús, fjögur svefnherbergi, baðherbergi, gestasalerni, þvottahús, bílskúr og stór garður með heitum potti.
SMELLIÐ HÉR TIL AÐ FÁ SENT SÖLUYFIRLIT STRAX
Nánari lýsing:
Jarðhæð
Forstofa: Komið er inn í flísalagða forstofu með nýlegum fataskáp.
Hol: Tekur við af forstofu, parketlagt og bjart. Þaðan er gengið í önnur rými neðri hæðar og upp steyptan stiga til efri hæðar.
Stofa / borðstofa / setustofa: Bjartar og rúmgóðar samliggjandi stofur með parketi á gólfi. Gluggar snúa til suðurs og útgengt er beint í garðinn.
Svefnherbergi 1: Staðsett á neðri hæð, með parketi og nýlegum fataskáp.
Þvottahús: Inn af eldhúsi er flísalagt þvottahús með góðri innréttingu og opnanlegum glugga. Tengi fyrir þvottavél og þurrkara.
Gestasalerni: Staðsett út frá holi, flísalagt og snyrtilegt.
Eldhús: Nýlega endurnýjað og bjart með hvítri U-laga innréttingu frá Innlifun, spanhelluborði og flísalögðu gólfi.
Garður: Mjög fallegur garður sem snýr til suðurs, með skjólgóðum sólpalli og heitum potti.
Efri hæð:
Svefnherbergi 2 (Hjónaherbergi): Rúmgott með fataskáp, parketi og aukaplássi á litlu háalofti.
Svefnherbergi 3: Rúmgott herbergi með mikilli lofthæð, nýlegum fataskáp og parketi á gólfi.
Svefnherbergi 4: Rúmgott herbergi með mikilli lofthæð, nýlegum fataskáp og parketi á gólfi.
Sjónvarpshol: Miðrými hæðarinnar nýtist vel sem sjónvarpshol. Þaðan er útgengt á svalir sem snúa til suðurs.
Baðherbergi: Smekklega endurnýjað og flísalagt í hólf og gólf með upphengdu salerni, handklæðaofni og "walk-in" sturtu.
Bílskúr og garður:
Garður: Sunnan við húsið er sérlega fallegur og gróinn garður með skjólgóðum sólpalli og heitum potti – algjör sælureitur.
Bílskúr: Rúmgóður (30,7 fm) með hita, rafmagni og bæði heitu og köldu vatni. Gott milliloft nýtist sem geymsla.
Nýlega hellulagt bílaplan er fyrir framan íbúðarhúsnæðið.
Helstu endurbætur að sögn eiganda:2021 Bílaplan endurnýjað og stækkað.2023 Skipt um öll gólfefni í íbúðarhúsnæðinu. 2023 Skipt um allar innihurðar í íbúðarhúsnæðinu. 2023 Eldhús endurnýjað. 2023 Baðherbergi endurnýjað.Búið að endurnýja ca 70% af gleri í gluggum.Flott og vel skipulögð fimm herbergja fjölskyldueign á tveim hæðum á þessum rólega og fjölskylduvæna stað í Setberginu. Öll helsta þjónusta er í göngu/hjólafæri, samgöngur, skólar, íþróttaaðstaða,
Vakin er athygli á að eigandi fasteignarinnar fellur undir lagaákvæði er snýr að tengslum við fasteignasalann/starfsmann fasteignasala skv. 1. mgr. 14. gr. laga nr. 70/2015, lög um sölu fasteigna og skipa. Um er að ræða mág fasteignasala.
Nánari upplýsingar og bókun á skoðun veita:
Guðmundur H Sveinsson, aðstoðarmaður fasteignasala, í síma 896-4967 eða á netfangið ghs@helgafellfasteignasala.is.
Hólmar Björn Sigþórsson, löggiltur fasteignasali, í síma 893-3276 eða á netfangið holmar@helgafellfasteignasala.is.----------------------------------------------------------
Heimasíða Helgafells fasteignasölu
Facebook síða Helgafells
- Hafðu samband og við gerum söluverðmat á eign þinni, þér að kostnaðarlausu -
Gjöld sem kaupandi þarf að standa straum af vegna kaupa á fasteign:
1. Stimpilgjald af kaupsamningi - 0,8% af fasteignamati fyrir einstaklinga (0,4% fyrir fyrstu kaupendur) og 1,6% fyrir lögaðila.
2. Þinglýsingargjald af kaupsamningi, veðskuldabréfi, mögulegu veðleyfi o.fl. - 3.800 kr. af hverju skjali.
3. Lántökugjald lánastofnunar - almennt í kringum 50þ., oft lægra eða ekkert lántökugjald fyrir fyrstu kaup. Nánari upplýsingar á heimasíðum lánastofnana.
4. Þjónustusamningur milli kaupanda og fasteignasölu - Kr. 92.380,- m/vsk.
Helgafell fasteignasala bendir kaupendum á ríka skoðunarskyldu sem kveðið er á í lögum um fasteignakaup nr.40/2002. Skorað er á kaupendur að kynna sér vandlega ástand fasteigna og nýta til þess aðstoð sérfræðinga. Sömuleiðis er bent á upplýsingaskyldu seljanda samanber 26.gr. Laga nr.40/2002 um fasteignakaup og 25.gr. laga nr.26/1994 um fjöleignarhús. Seljanda er bent á að kynna sér tilvitnaðar lagagreinar.

Fáðu nýja innsýn á Húsasjá
- Verðmat fasteignar
- Sölusaga og verðþróun
- Samanburður sambærilegra eigna































