Huldugil 7
04-0101 · 603 Akureyri



4 dagar á sölu
116.800.000 kr
647.809 kr/m²
Eignaver 460-6060
Huldugil 17 Akureyri. ***Opið hús fimmtudaginn 05.03.2026 frá 16:15 - 17:00***
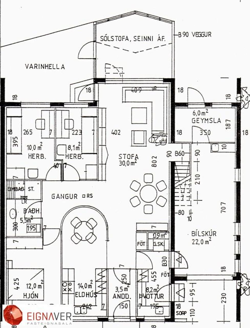
Mjög góð og vönduð 4ra herbergja enda-íbúð í raðhúsi á vinsælum stað í Giljahverfi. Innbygggður bílskúr og sólskáli. Samtals er húseignin 180,3 fm.
Nánari lýsing:
Forstofa, flísar á gólfi og fataskápur þar.
Hol/gangur, parket á gólfi.
Svefnherbergin á hæðinni eru tvö, parket og fataskápur í þeim báðum.
Sjónvarpshol, parket á gólfi. ( teiknað sem svefnherbergi og auðvelt að bæta því við ) .
Stofan er rúmgóð og björt, parket á gólfi og frá stofu er farið út í sólskála.
Sólskálinn er 14,7 fm. flísar á gólfi þar. Frá sólskála er farið út á steypta afgirta og skjólgóða verönd.
Risherbergið er mjög rúmgott, parket á gólfi og góður gluggi með opnanlegu fagi. Geymslurými undir súð.
Baðherbergið er fallegt með flísum á gólfi og veggjum. Sturta, innrétting með góðu skápaplássi og upphengt WC.
Eldhúsið er með vandaðri innréttingu, flísar á milli skápa, korkur á gólfi, borðkrókur.
Þvottahúsið er rúmgott, flísar á gólfi og þar er farið inn í bílskúr. Góð innrétting og gott skápapláss.
Bílskúrinn er með flísum á gólfi, geymsla er í enda bílskúrs og bakinngangur út á verönd til vesturs.
Snyrting er í bílskúr, flísar á gólfi þar.
Annað:
- Sérlega vel með farin eign á frábærum stað.
- Geymsluskúr norðan við húsið fylgir þessari íbúð.
- Rúmgóð verönd vestan við húsið og þar er garðhús.
- Stutt í grunn- og leikskóla.
- Sólskálinn er frábær viðbót við íbúðina.
- Mjög rúmgott steypt bílaplan.
- Björt og fín eign í norður-enda raðhússins.
- Vinsæl staðsetning.
Húseignin er í einkasölu hjá Eignaveri fasteignasölu ehf.
Nánari upplýsingar veita:
Tryggvi s: 862-7919 / tryggvi@eignaver.is
Arnar s: 898-7011 / arnar@eignaver.is
Begga s: 845-0671 / begga@eignaver.is

Dýpri greining á Húsasjá
- Verðmat fasteignar
- Sölusaga og verðþróun
- Samanburður sambærilegra eigna
























