Litlavör 3
02-0101 · 200 Kópavogi



222 dagar á sölu
146.500.000 kr
812.986 kr/m²
Sigríður Rut, lgfs. gsm. 699-4610 og Fasteignasalan TORG kynna : Fallegt , bjart og vel skipulagt parhús skráð 180,2 fm. á tveimur hæðum þar af er bílskúr skráður 25,3 fm. Fallegt samræmi er á öllum innréttingum sem eru sérsmíðar og upprunarlegar. Lóð fallega frágenginn, suðurverönd og heitur pottur. Íbúðin er með möguleika á 4 svefnherbergjum á efri hæð en skiptist í dag 3 svefnherbergi og að auki rúmgott sjónvarpsherbergi sem var nýtt sem svefnherbergi og er til hurð fyrir það. Þannig það er einfalt að breyta aftur í svefnherbergi. Allar nánari upplýsingar veitir Sigríður Rut Stanleysdóttir löggiltur fasteignasali í gsm. 699-4610 eða siggarut@fstorg.is
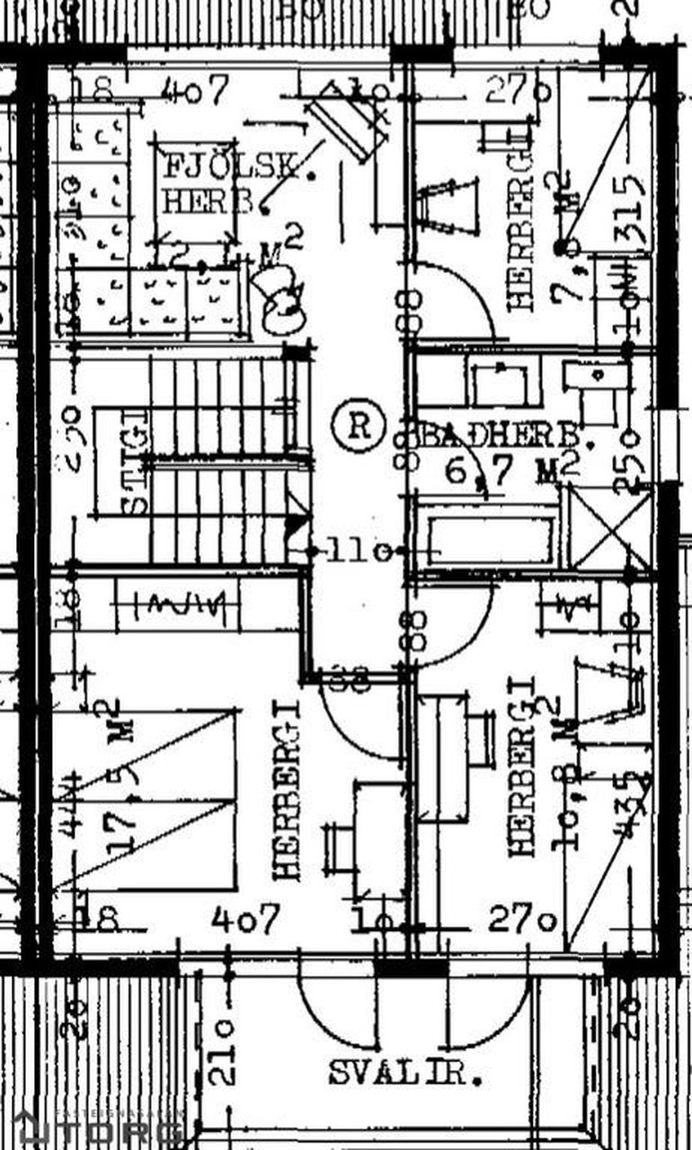
Neðrihæð.
Forstofa: Flísar á gólfi, stór fataskápur. Lítil geymsla / búr undir stiga.
Eldhús: Falleg sérsmíðuð eikarinnrétting. Nýlegur Milele ofn í eldhúsi og falleg vifta yfir. Flísalagt á milli innréttinga. Parket á gólfi. Góður borðkrókur við glugga. Nýleg Miele uppþvottavél og nýr ísskápur fylgir með.
Gestasnyrting: Flísar á gólfi hvít tæki.
Þvottahús: Innaf gestasnyrtingu, flísar á gólfi, gluggi.
Stofa / Borðstofa: Rúmgóðar og bjartar með parket á gólfi, útgengt á suðurverönd i fallegan skjólsælan suðurgarð. Heitur pottur.
Efrri hæð. Mikil lofthæð í hluta efri hæðar með innfellri lýsingu.
Hjónaherbergi: er með góðu skápaplássi og parket á gólfi útgengt út á norðvestursvalir.
Svefnherbergi: Parket á gólfi og útgengt á norðvestursvalir.
Svefnherbergi: Er rúmgott og parketlagt gólft.
Sjónvarpsherbergi/svefnherbergi: Rúmgott með parket á gólfi. Hægt er að breyta í aukasvefnherbergi það er til hurð.
Baðherbergi: Afar rúmgott, hornbaðkar, sturtuklefi, góð innrétting með miklu skúffu og skápaplássi. Flísalagt gólf og veggir Opnanlegur gluggi.
Bílskúr: Flísar á gólfi, sjálfvirkur hurðaopnari á bílskúrshurð. Heitt og kalt vatn.
Hellulagt bílaplan fyrir 2 - 3 bíla, hitalögn undir.
Niðurlag. skipt var um gler og gluggalista á suður og vesturhlið nóvember 2025 og gluggar málaðir að utan. Allir gluggar og hurðir málaðar að innan í haust. Húsið hefur fengið gott viðhald í gegnum tíðina.
Nánari upplýsingar veitir Sigríður Rut Stanleysdóttir löggiltur fasteignasali í síma : 699-4610 eða á siggarut@fstorg.is
Gjöld sem kaupandi þarf að standa straum af vegna kaupa á fasteign: Stimpilgjald af kaupsamningi: 0.8% af fasteignamati eignar fyrir einstaklinga en 1.6% fyrir lögaðila en 0.4% ef um fyrstu íbúðarkaup er að ræða.
Þinglýsingargjald: kaupsamningi, skuldabréfi, veðleyfi, afsali o.s.frv. er kr. 3.800 af hverju skjali. Umsýslugjald fasteignasölu, samkvæmt gjaldskrá.
Skoðunarskylda kaupanda: Í lögum um fasteignakaup nr. 40/2002 er kveðið á um ríka skoðunarskyldu kaupenda á fasteignum. Fasteignasala bendir væntanlegum kaupendum á að kynna sér vel ástand fasteigna við skoðun og fyrir tilboðsgerð og ef þurfa þykir að leita til sérfræðinga um nánari ástandsskoðun. Söluyfirlit er samið af fasteignasala í samræmi við ákvæði laga nr. 70/2015. Þær upplýsingar sem fram koma í söluyfirliti þessu eru sóttar í opinberar skrár, til seljanda sjálfs og eftir atvikum til húsfélags. Seljandi veitir upplýsingar um eign í samræmi við upplýsingaskyldu laga um fasteignakaup nr. 40/2002. Fasteignasali sannreynir að þær upplýsingar séu réttar með sjónskoðun á eigninni. Fasteignasali getur ekki fullyrt um ástand og eiginleika þeirra hluta fasteigna sem ekki eru aðgengilegir og sjást ekki berum augum, t.d. lagnir, dren, skólp og þak.

Dýpri greining á Húsasjá
- Verðmat fasteignar
- Sölusaga og verðþróun
- Samanburður sambærilegra eigna












































