Hafnargata 38
01-0101 · 230 Reykjanesbæ



696 dagar á sölu
115.000.000 kr
365.892 kr/m²
Valný fasteignasala og Valgeir Leifur löggiltur fasteignasali kynna:
Hafnargata 38 / Paddy's, 230 Keflavík
Um er að ræða tvær fasteignir ásamt öllum tækjabúnaði og innbúi Paddy's sem hefur verið vel sóttur og vinsæll staður undanfarin ár. Í húsnæðinu eru bar- og veitingasalir á tveimur hæðum auk tveggja herbergja íbúðar með sérinngangi á efstu hæð. Íbúðinni fylgir 23,4 m² bílskúr. Eldhúsaðstaða býður upp á möguleika til að stunda veitingarekstur samhliða barnum.
Tvær fasteignir eru skráðar samkvæmt fasteignaskrá HMS og eru samtals 314,3 m² að stærð. Kjallari og jarðhæð (samtals 217,4 m²) eru skráðar undir fastanúmeri 221-9134, en efri hæðin (73,5 m²) og bílskúr (23,4 m²) mynda aðra eign undir fastanúmeri 223-0067. Fylgja tilheyrandi lóðar- og sameignarréttindi.
Nánari lýsing og skipulag eignar:
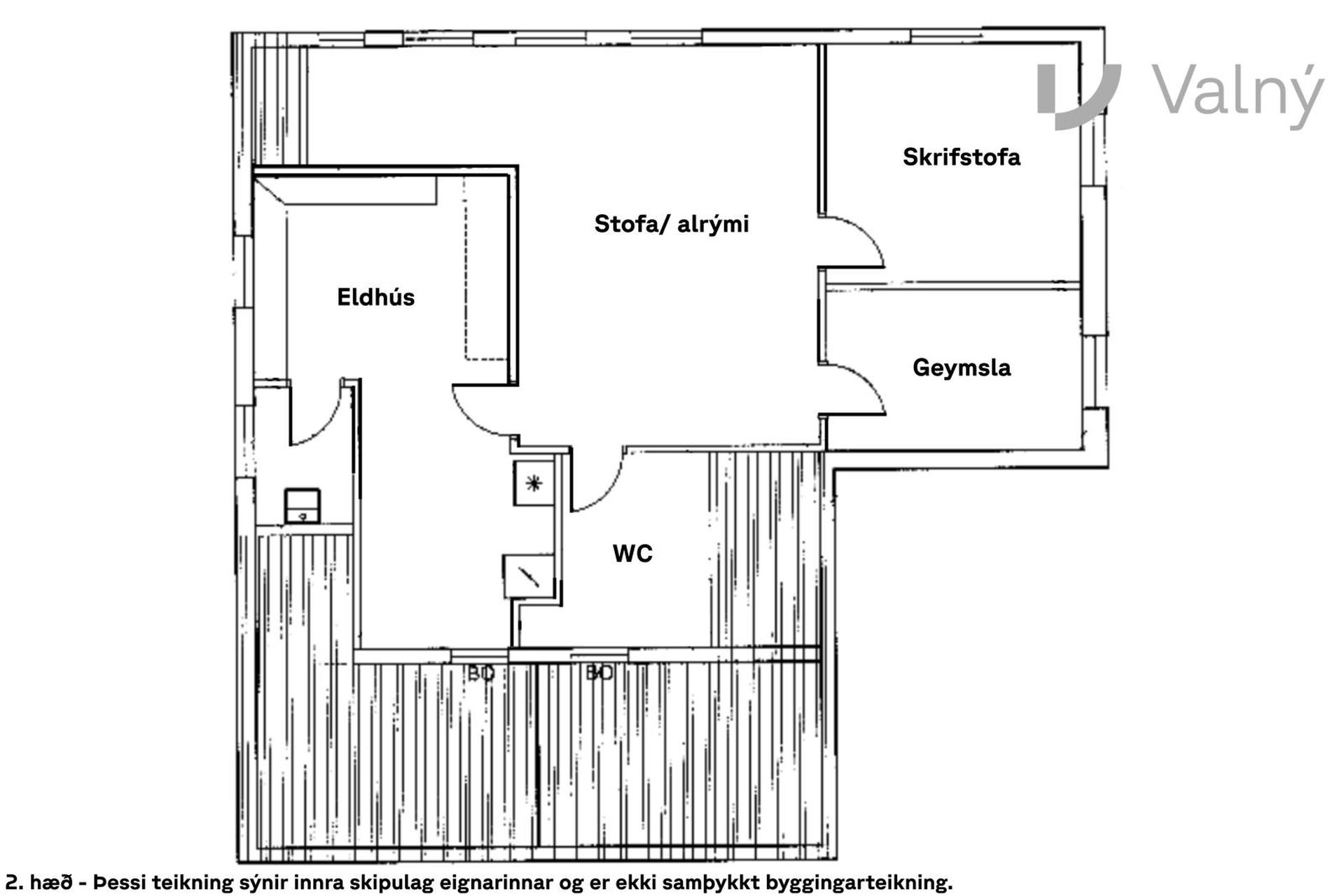
Efri hæð:
Efri hæð er skráð sem 73,5 m² íbúð með tveimur herbergjum, baðherbergi, geymslu og rúmgóðu alrými en hefur verið nýtt sem starfsmannaaðstaða. Einnig er á hæðinni fullbúin eldhúsaðstaða með reykháfi sem gerir mögulegt að reka veitingaþjónustu á staðnum. Hæðin er með sérinngangi en einnig er hægt að komast þangað inn um stigagang frá 1. hæð. Með efri hæðinni fylgir 23,4 m² bílskúr. Í alrými er gólefni upprunalegt timburgólf, parket á herbergjum og flísar á bað og eldhúsi. Farið er að sjá á öllu gólfefni og þarfnast viðhalds.
Fyrsta hæð:
Á fyrstu hæð eru tveir barir, rúmgóður veitingasalur með sviði og sætaaðstöðu. Frá hæðinni er útgengt út á rúmgóðan pall bakvið húsið. Gólfefni á alrými er parket sem hefur nýlega verið slipað og lakkað.
Kjallari:
Á neðri hæð hússins er annar salur sem skipt hefur verið upp í tvö rými. Annað rýmið er innréttað sem fullbúið karaoke-herbergi. Á þessari hæð eru einnig snyrtingar og góð geymsluaðstaða.
Byggingarlýsing:
Byggingin er á tveimur hæðum auk kjallara og stendur á staðsteyptum sökklum. Húsið er úr timbri og klætt að utan með bárujárni sem þarfnast endurnýjunar. Húsið er einangrað að innan og klætt með gipsplötum. Þakið er einnig klætt með bárujárni og þarfnast það einnig endurnýjunar að hluta til. Eignin var upphaflega reist árið 1893 og er friðuð bygging vegna aldurs og sögulegs gildis.
Lóð og aðkoma:
Eignin stendur á 728 m² lóð sem býður upp á fjölbreytta nýtingarmöguleika, m.a. möguleika á viðbótarbyggingu eða endurskipulagningu (með fyrirvara um samþykki skipulagsyfirvalda). Bílastæði eru fyrir framan eignina, og rúmgóður pallur með setuaðstöðu er staðsettur að bakvið húsið.
Allar nánari upplýsingar veitir:
Valgeir Leifur / Löggiltur fasteignasali / 780-2575 / valgeir@valny.is
Ertu að leita að nýbyggingum? Skoðaðu úrvalið hjá Valný – smelltu hér.
Ertu að hugsa um að selja? Smelltu hér og fáðu frítt verðmat.
Ekki missa af draumaeigninni – fylgstu með okkur á Instagram og Facebook
Lestu reynslusögur frá ánægðum viðskiptavinum okkar.
- Fasteignasalan sem opnar dyrnar að þinni eign.
Valný fasteignasala | www.valny.is | Tjarnargötu 2, 230 Reykjanesbær | Opið alla virka daga frá 9:00-16:00

Dýpri greining á Húsasjá
- Verðmat fasteignar
- Sölusaga og verðþróun
- Samanburður sambærilegra eigna

































