Arnarsmári 14
01-0301 · 201 Kópavogi



2 dagar á sölu
76.500.000 kr
799.373 kr/m²
NÁNARI UPPLÝSINGAR FÆRÐU HJÁ GUÐNÝJU ÞORSTEINS Í SÍMA 7715211 EÐA GUDNYTH@REMAX.IS
SMELLTU HÉR OG SJÁÐU EIGNINA Í 3VÍDD
RE/MAX og GUÐNÝ ÞORSTEINS Löggiltur fasteignasali kynna í einkasölu: Bjarta 3ja herbergja íbúð með virkilega fallegu útsýni á 3. hæð í litlu 6 íbúðar fjölbýli. Húsið hefur fengið gott viðhald í gegnum árin.
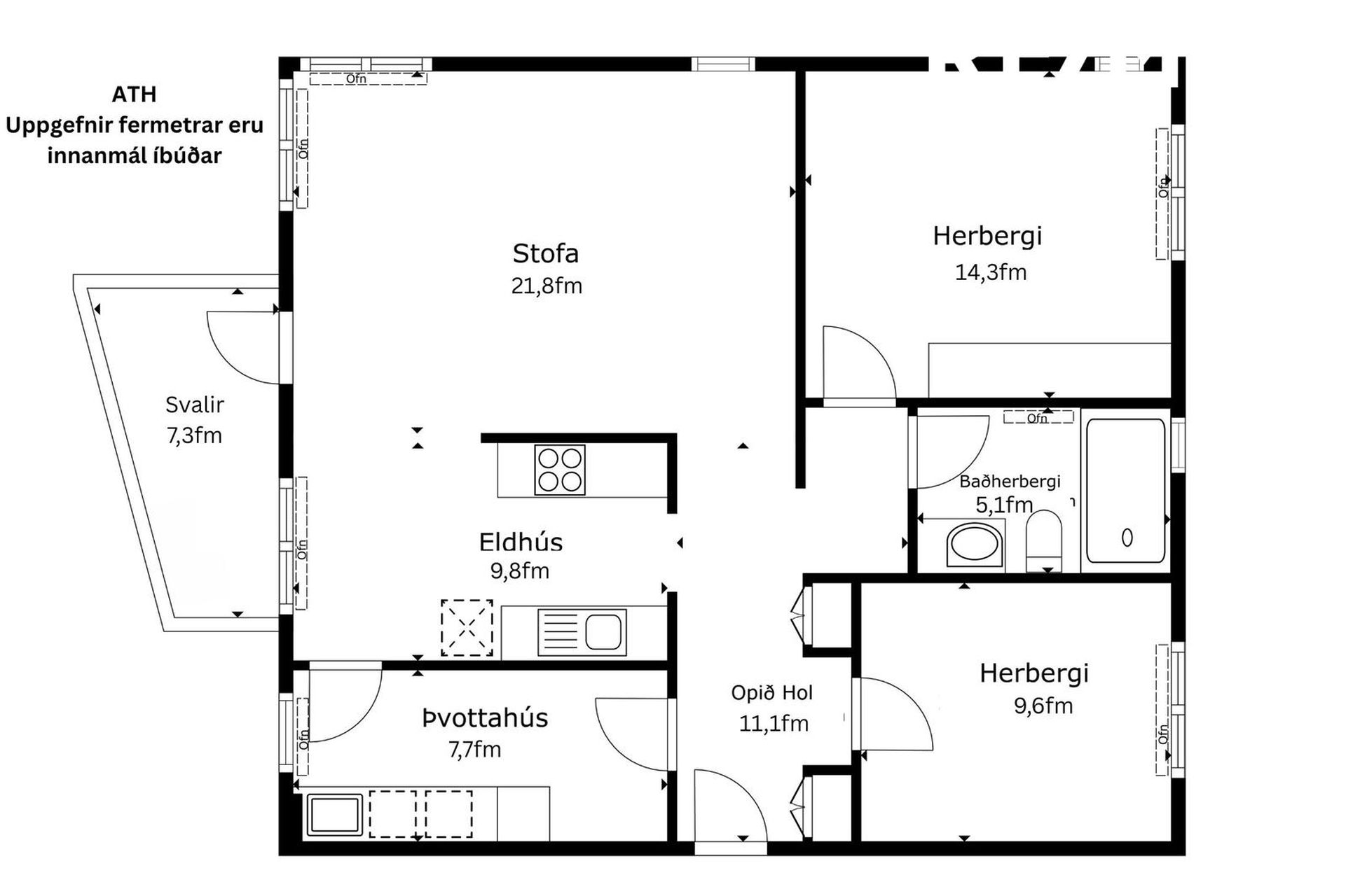
Samkvæmt fasteignayfirliti ríkisins er íbúðin 88,2fm að stærð auk 7,5fm geymslu samtals 95,7fm.
Eignin samanstendur af: 2 svefnherbergjum, baðherbergi, eldhúsi með borðkróki og búri/þvottahúsi.
Nánari lýsing
Forstofa: Er með góðu skápaplássi. Viðarparket á gólfi.
Eldhús: Er bjart með borðkróki, góðu skúffu- og skápaplássi ásamt innbyggðri uppþvottavél. Árið 2025 var helluborð og ofn endurnýjað, vifta er fyrir ofan. Viðarparket á gólfi.
Þvottahús/búr: Hægt er að gang inn í það bæði frá forstofu og eldhúsi. Er það mjög rúmgott með tengi fyrir þvottavél og þurrkara, snúrum í lofti, vinnuborði ásamt skápum, gluggi er með opnanlegu fagi. Flísar á gólfi.
Stofa: Eru í björtu rými með sérlega fallegu útsýni ásamt útgangi út á suð-vestur svalir. Viðarparket á gólfi.
Herbergin 2: Eru rúmgóð, er annað þeirra með fimmföldum fataskápum. Viðarparket á gólfi.
Baðherbergi: Er endurnýjað að hluta af fyrri eigendum, er það flísalagt í hólf og gólf með þreplausri sturtu með glervegg, vask með skúffum undir ásamt spegla skápum. Gluggi er með opnanlegu fagi.
Geymsla: Er 7,2fm að stærð og er í sameign í kjallara ásamt vagna- og hjólageymslu.
Húsið er á 3 hæðum með 2 íbúðum á hverri hæð samtals 6 íbúðir, undir hluta hússins er kjallari þar eru geymslur. Lóð er sameign Arnarsmára 14-18.
Seljendur höfðu orð á hve ljúft og notalegt þetta litla fjölbýli er þar sem gott samstarf er á milli eigenda og að þeim sé annt um að halda eigninni snyrtilegri og vel viðhaldinni.
Allar nánari upplýsingar og bókun á skoðun veitir Guðný Þorsteins löggiltur fasteigna- og skipasali s: 771-5211 eða á netfangið gudnyth@remax.is.
Í lögum um fasteignakaup nr. 40/2002 er kveðið á um ríka skoðunarskyldu kaupenda á fasteignum. Vill Re/Max því skora á væntanlega kaupendur að kynna sér vel ástand fasteigna fyrir kauptilboðsgerð og leita til þar til bærra sérfræðinga um nánari skoðun.
Gjöld sem kaupandi þarf að standa straum af vegna kaupanna:
1. Stimpilgjald af kaupsamningi - 0.8% af heildarfasteignamati / 1.6% fyrir lögaðila. (0.4% við fyrstu kaup einstaklinga).
2. Þinglýsingargjald af kaupsamningi, veðskuldabréfi, veðleyfi o.fl.- kr. 3.600 af hverju skjali.
3. Lántökugjald lánastofnunar - skv. gjaldskrá lánastofnunar
4. Umsýsluþóknun til fasteignasölu, 69.900 kr. m.vsk.

Dýpri greining á Húsasjá
- Verðmat fasteignar
- Sölusaga og verðþróun
- Samanburður við sambærilegar eignir





























