Mosastekkur 1
01-0101 · 806 Selfossi



27 dagar á sölu
32.500.000 kr
714.286 kr/m²
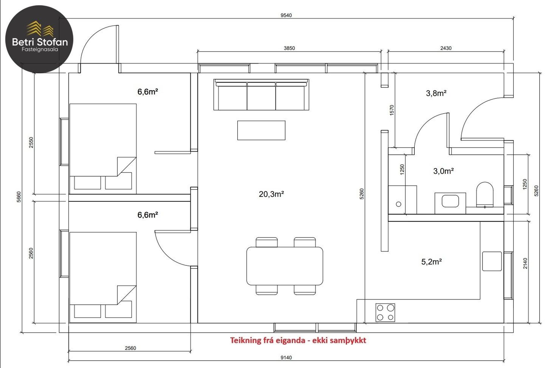
Betri Stofan fasteignasala Borgartúni 30 kynnir nýtt í einkasölu: Mikið endurnýjað og vel skipulagt sumarhús í landi Miðfells við Þingvallavatn. Svæðið er lokað af með símahliði. Húsið er mikið endurnýjað og endursmíðað á síðustu árum. Skráð stærð hússins er 41,3 fm, mæling eiganda 45,5 fm að auki eru tvær geymslur samtals c.a 8 fm. Eignin telur forstofu, fínt alrými, eldhús, tvö svefnherbergi, baðherbergi tvær geymslur. Góð aðkoma er að húsinu, næg bílastæði og gott aðgengi að vatninu fyrir báta. Lóðin er 2.006 fm eignarlóð kjarri vaxin.
Nánari lýsing:
Anddyri: Parket á gólfi.
Stofa: Björt stofa með parketi á gólfi og góðum gluggum
Eldhús: Hvít nýleg innrétting, gott borðpláss og tæki, uppþvottavél fylgir.
Svefnherbergi: Tvö parketlögð svefnherbergi, úr öðru herberginu er útgengt á verönd / lóð.
Baðherbergi: Með hvítri innréttingu, sturtu og vegghengdu salerni og sturtu.
Lóð: Kjarri vaxin og falleg, stór sólpallur með skjólveggjum, tvær útigeymslur, hvor um 4 fm. Búið er að láta teikna stækkun á palli, sjá teikningu.
Endurbætur: Húsið var mikið endurnýjað 2020-2021, að innan var nánast allt endurinnréttað. Útveggir, þak, gólf endursmíðað. Rafmagn endurnýjað sem og allir gluggar. Hitavír sett á vatnsinntak, ný blöndunartæki og hitakútur.
Vel staðsett eign á Suðurlandi, skammt frá Skálholti, Laugarvatni, Gullfossi og Geysi. Stutt í veiði, sundlaug, golfvelli og fallegar gönguleiðir.
Þetta er mjög mikið endurnýjað og fallegt sumarhús á frábærum stað við Þingvallavatn - eignin er tilbúin til afhendingar.
Allar nánari upplýsingar veitir Atli S Sigvarðsson fasteignasali í síma 899-1178 eða atli@betristofan.is
Gjöld sem kaupandi þarf að standa straum af ef að kaupum verður:
1. Stimpilgjald af fasteignamati fasteignar er 0.8%, en 0,4% fyrir fyrstu kaup og 1,6% fyrir lögaðila.
2. Þinglýsingargjald: kaupsamningi, skuldabréfi, veðleyfi, afsali o.s.frv. er kr. 3.800 af hverju skjali.
3. Lántökukostnaður samkvæmt verðskrá viðkomandi lánastofnunar.
4. Umsýslugjald til fasteignasölu skv. gjaldskrá.
Skoðunarskylda kaupanda:
Í lögum um fasteignakaup nr. 40/2002 er kveðið á um ríka skoðunarskyldu kaupenda á fasteignum. Betri Stofan fasteignasala bendir væntanlegum kaupendum á að kynna sér vel ástand fasteigna við skoðun og fyrir tilboðsgerð og ef þurfa þykir að leita til sérfræðinga um nánari ástandsskoðun.

Dýpri greining á Húsasjá
- Verðmat fasteignar
- Sölusaga og verðþróun
- Samanburður sambærilegra eigna





































