Strandgata 4
01-0201 · 740 Neskaupstað



2 dagar á sölu
41.900.000 kr
419.000 kr/m²
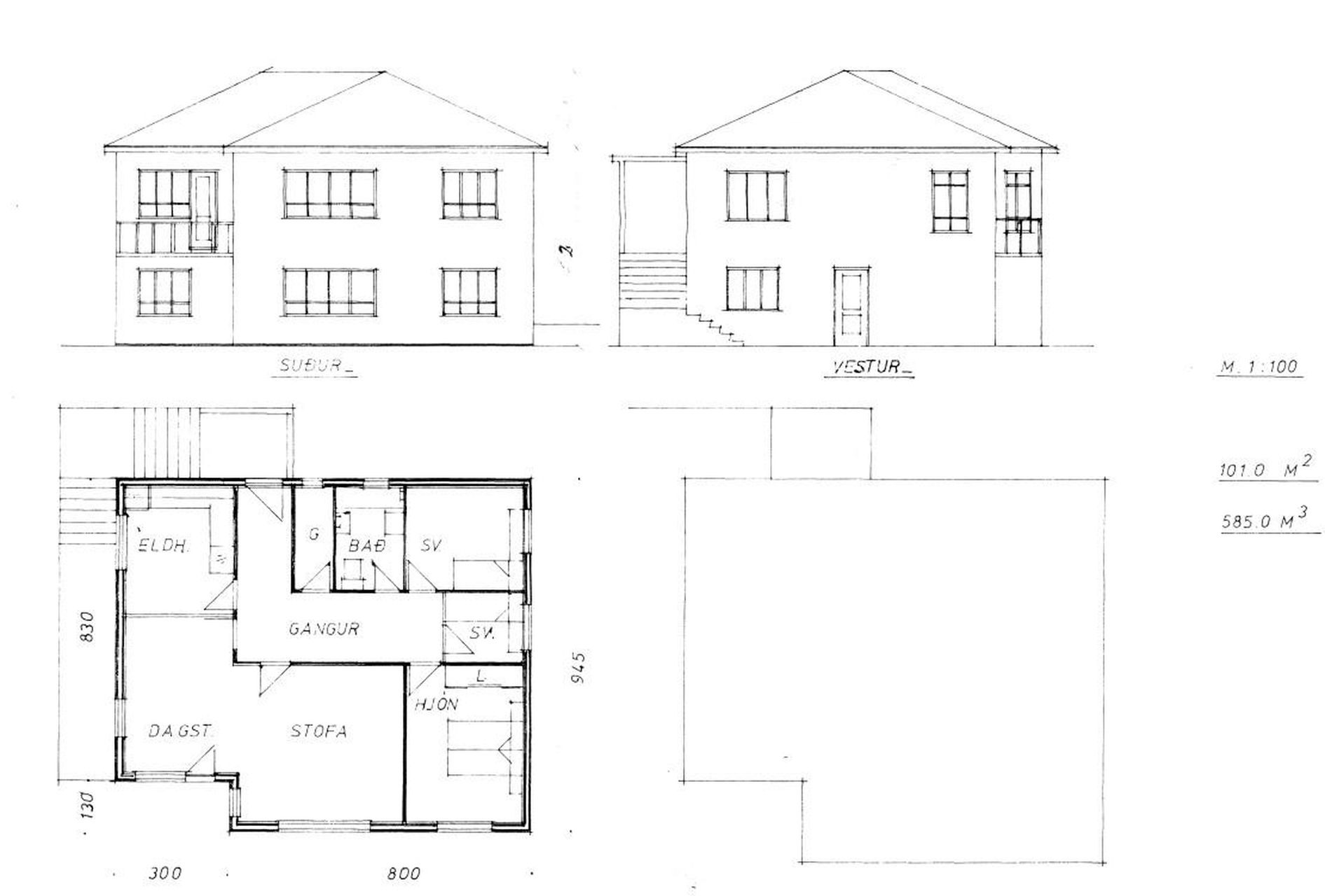
Bjarni Blöndal löggiltur fasteignasali (bjarni@remax.is/s:662-6163) kynnir mikið endurnýjaða og fallega fjögurra herbergja efri sérhæð í tvíbýli við Strandgötu 4 á Norðfirði. Góð staðsetning og fallegt útsýni. Hæðin er skráð 100fm samkv. HMS og skiptist í forstofu, gang, eldhús, stofu/borðstofu, þrjú svefnherbergi og baðherbergi.
Nánari lýsing:
Forstofa er flísalögð, nett fatahengi, hiti í gólfi, lúga upp á háaloft.
Eldhús með innréttingu frá Brúnás, hvít og eik, vönduð tæki, háfur, helluborð, gott vinnupláss, nett eyja sem hægt er að sitja við, korkflísar á gólfi.
Stofa og borðstofa eru í opnu rými, gluggatjöld frá Álnabæ í gluggum sem vísa í suður, útgengt á svalir, eikarparket á gólfi.
Þrjú svefnherbergi eru í íbúðinni, fjórfaldur fataskápur er í hjónaherbergi, eitt frekar lítið, öll herbergin eru með eikarparket á gólfi.
Baðherbergi er dúklagt, baðkar með sturtu aðstöðu, tengi/aðstaða fyrir þvottavél, gluggi.
Nýlegar framkvæmdir samkv seljendum:
2023 Skipt var um hurðir árið og loftið í borðstofu og stofu og hjónaherbergi klætt.
2024 Tröppur múraðar
2025 Þak endurnýjað (lektað) sem og gluggar og svalahurð.
Rafmagnsofnar í borðstofu, stofu og baðherbergi endurnýjaðir.
Strandgata 4 hentar vel sem fyrstu kaup. Stutt er í góðar gönguleiðir og útivistarsvæði, leikskóla, grunnskóla, verkmenntaskóla, íþróttahús og sjúkrahús.
Allar upplýsingar um eignina veitir Bjarni Blöndal löggiltur fasteignasali í síma 662 6163 eða bjarni@remax.is.
Vegna mikillar eftirspurnar vantar mig allar tegundir eigna á skrá. Hafðu samband og ég mun verðmeta eign þína þér að kostnaðarlausu.
Gjöld sem kaupandi þarf að standa straum af vegna kaupanna:
1. Stimpilgjald af kaupsamningi 0,8%, (0,4% ef um fyrstu kaup er að ræða) og 1.6% (ef lögaðilar) af heildar fasteignamati.
2. Þinglýsingargjald af kaupsamningi, veðskuldabréfi, mögulegu veðleyfi o.fl. - kr. 3.800 af hverju skjali.
3. Lántökugjald lánastofnunar, sjá upplýsingar á heimasíðu lánastofnana.
4. Umsýsluþóknun til fasteignasölu, sbr.kauptilboð.

Fáðu nýja innsýn á Húsasjá
- Verðmat fasteignar
- Sölusaga og verðþróun
- Samanburður sambærilegra eigna










