Núpasíða 6H
08-0101 · 603 Akureyri



40 dagar á sölu
96.900.000 kr
661.433 kr/m²
Kasa fasteignir 461-2010.
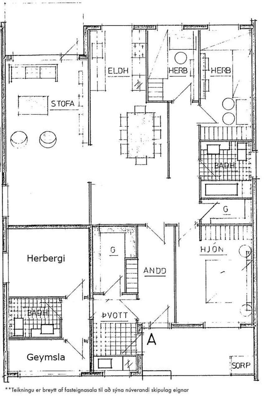
Núpasíða 6. Fallegt 4-5 herbergja, mikið endurnýjað 146,5 fm endaraðhús með bílskúr í Síðuhverfi. Bílskúrnum hefur verið breytt í svefnherbergi, baðherbergi og geymslu.
Forstofa: Er rúmgóð, flísar á gólfum og stór fataskápur.
Þvottahús: Er inn af forstofu, þar eru flísar á gólfum og innrétting með pláss fyrir þvottavél og þurrkara í vinnuhæð ásamt vaski í borðplötu, útgönguhurð er úr þvottahúsi.
Eldhús: Þar er ljós háglans og viðar eldhúsinnrétting, flísar á milli skápa og nýlegt parket á gólfum, opið er inn í stofu frá eldhúsi. Bakaraofn og örbylgjuofn í vinnuhæð. Nýlegt helluborð, bakaraofn og örbylgjuofn.
Stofa/ Borðstofa: Rúmgott og bjart rými með nýlegu parketi á gólfum, út frá stofu er gengið út á góða timburverönd.
Baðherbergi: Eru tvö í dag, annað þeirra er á svefnherbergisgangi, það er flísalagt í hólf gólf, ljós viðarinnrétting, baðkar með sturtuhengi. upphengt salerni og handklæða ofn.
Baðherbergi 2: Búið er að breyta bílskúr og setja þar baðherbergi með flísum á gólfi, sturtuklefa, upphengdu salerni og handklæða ofn.
Svefnherbergi: Eru fjögur, þrjú inni í íbúðarhúsnæði og eitt í bílskúr, öll með nýlegu parketi á gólfum, stór skápur í hjónaherbergi og í einu barnaherberginu.
Geymsla er á milli hjónaherbergis og baðherbergis, þar er skápur og parket á gólfum. Tengingar fyrir þvottavél og þurrkara eru í geymslunni.
Fataherbergi er inn af þvottahúsi.
Bílskúr: Skiptist í dag í svefnherbergi, baðherbergi og geymslurými. Baðherbergi flísalagt, herbregi er parketlagt með glugga. Hægt er að breyta bílskúr í sér útleigueiningu með sér inngangi. Gott geymsluloft yfir hluta af bílskúr.
Sólpallur: Góður skjólsæll viðarsólpallur til vesturs sem gengið er út á frá stofu.
- Malbikað plan er sunnan megin við húsið.
- Skipt um alla glugga haust 2022
- Þak og þakkanntur endurnýjað sumarið 2023
- Húsið var allt málað sumarið 2025
- Hægt að nýta bílskúr sem sér útleigu einingu.
- Stutt í leik- og grunnskóla.
Nánari upplýsingar í síma 461-2010 eða kasa@kasafasteignir.is
------------
Skoðunarskylda:
Í lögum um fasteignakaup nr. 40/2002 er kveðið á um ríka skoðunarskyldu kaupenda á fasteignum. Kasa fasteignir benda væntanlegum kaupendum á að kynna sér vel ástand fasteigna fyrir kauptilboðsgerð og leita til þar til bærra sérfræðinga um nánari skoðun ef þurfa þykir.
Forsendur söluyfirlits:
Söluyfirlit er samið af fasteignasala í samræmi við ákvæði laga nr. 70/2015. Þær upplýsingar sem fram koma í söluyfirliti þessu eru sóttar í opinberar skrár, til seljanda sjálfs og eftir atvikum til húsfélags. Seljandi veitir upplýsingar um eign í samræmi við upplýsingaskyldu laga um fasteignakaup nr. 40/2002. Fasteignasali sannreynir að þær upplýsingar séu réttar með sjónskoðun á eigninni. Fasteignasali getur ekki fullyrt um ástand og eiginleika þeirra hluta fasteigna sem ekki eru aðgengilegir og sjást ekki berum augum, t.d. lagnir, dren, skólp og þak.
Gjöld sem kaupandi þarf að standa straum af vegna kaupanna:
1. Stimpilgjald sýslumanns af kaupsamningi, fyrstu kaup (0,4%), almenn kaup (0,8%), lögaðilar (1,6%) af heildarfasteignamati eignar.
2. Þinglýsingargjald af kaupsamningi, veðskuldabréfi, mögulegu veðleyfi o.fl. - kr. 2.700 af hverju skjali.
3. Lántökugjald lánastofnunar er skv. verðskrá viðkomandi lánastofnunar. Nánari upplýsingar á t.d. heimasíðu lánastofnana.
4. Umsýslugjald til fasteignasölu skv. kauptilboði.

Dýpri greining á Húsasjá
- Verðmat fasteignar
- Sölusaga og verðþróun
- Samanburður við sambærilegar eignir


















































