Hamarstígur 38
01-0101 · 600 Akureyri



116 dagar á sölu
80.000.000 kr
552.486 kr/m²
Mjög fallegt og talsvert endurnýuð hæð ásamt tveggja herbergja íbúð í óskráðu rými í kjallara eignin er skráð 144,8m2 að stærð, ( hluti af kjallara er óskráður). Einnig eru þar tvö mjög góð herbergi, þvottahús og geymslur. Mjög fallegur sólpallur með heitum pott er við húsið.
**** Eign sem vert er að skoða ****
**** Eigendur skoða skipti á minni eign****
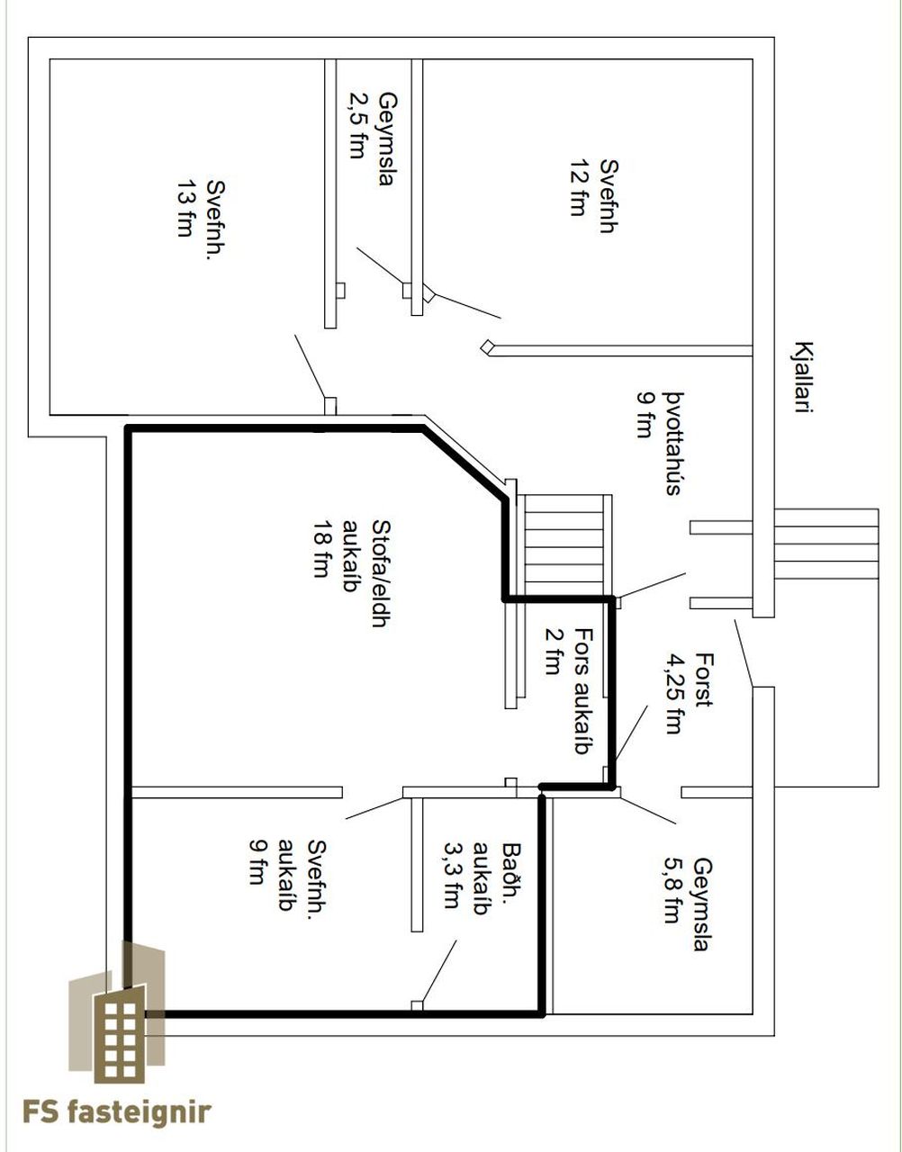
Miðhæð og hluti af kjallara sem er 5 herbergja:
Forstofa með físum á gólfi. Nýleg útidyrahurð.
Borðstofa sem er rúmgóð með glugga og parket á gólfi.
Eldhús er með ljósri innréttingu með miklu skápaplássi, dökkum borðplötum. Borðkrókur er þar. korkflísar á gólfi. (stigi niður í kjallara úr eldhúsi, hægt að loka með fallegri rennihurð).
Stofa sem er rúmgóð með fallegum gluggum parket á gólfi.
Baðherbergi er nýlega endurnýjað með dökkri innréttingu, sturtu með innbyggðum blöndunarækjum og gleri. Gólf og hluti veggja er flísalagt með ljósum flísum. upphengt salerni, opnanlegur gluggi. Skemmtileg lýsing. Gólfhiti.
Herbergi með parket á gólfi, góður fataskápur.
Herbergi með harðparketi á gólfi.
Stigi í kjallara er nýlegur.
Þvottahús er með hvítri innréttingu og flísum á gólfi.
Tvö herbergi eru þar sem bæði eru rúmgóð með flísum á gólfi, fataskápur er í öðru.
Geymslur eru tvær, önnur með hillum og góðri innréttingu með vask, málað gólf, tveir gluggar eru þar, en hin með hillum og flísum á gólfi.
Forstofa með máluðu gólfi. ( Þaðan er einnig gengið í íbúð sem er í útleigu, og rúmgóða geymslu)
Pallar eru tveir bæði fyrir framan og aftan hús fyrir framan hús sem er nýlegur og er stillanleg stálgrind undir pallinum sem er flísalagður, timbur skjólveggir og gróðurkassar. Hitaveitupottur og pergóla með rafmagnshiturum og ylplasti. Einnig er nýlegur pallur aftan við hús með snúrustaur.
Garðskúr við hús sem er 7m2 að stærð.
Bílaplan er við hús sem er rúmgott.
Íbúð í kjallara sem er 2ja herbergja: Þar er gólfhiti.
Forstofa flísar á gólfi.
Eldhús/ borðstofa og stofa er með hvítri innréttingu, harðparket á gólfi.
Herbergi með harðparketi á gólfi.
Baðherbergi með flísum á gólfi, sturtu, hvít innrétting, upphent salerni, tengi fyrir þvottavél, handklæðaofn, opnanlegur gluggi.
Helstu upplýsingar um framkvæmdir undanfarna ára eru:
Þak: hækkað um 10 cm,10 cm steinull ofaná og nýtt stál árið 2009.
Ris: Rifið innan úr risinu, einangrað með 15 cm steinull og sett rakavarnaplast 2024. íbúð endursmíðuð og endurinnréttuð að fullu 2024-2025. skipt um útidyrahurð 2024.
Lagnir: Allar frárenslislagnir endurnýjaðar á árunum 2019-2024. Allar ofna og neysluvatnslagnir endurnýjaðar á árunum 2019-2024. Brunnur settur norðan við hús, dren lagt norðan vestan og að hluta til sunnan við hús. Tilbúin stútur í brunni til að legga dren Austan og sunnan við hús.
Heitt og kalt vatn, rafmagn og ljósleiðari lagt nýtt inní hús 2023.
Rafmagn: Aðaltafla endurnýjuð 2019, ný aukatafla sett fyrir íbúð í kjallara 2020. Ný aukatafla sett í risi 2024. Allar raflagnir í kjallara endurnýjaðar 2019. Allar raflagnir endurnýjaðar í risi 2024. Auk þess er búið að endunýja að hluta til á miðhæð.
Kjallari: Skipt um alla glugga á árunum 2019-2024. Aukaíbúð í kjallara 2019. Þvottahús fyrir miðhæð 2020. Gólf í þvottahúsi og svefnherbergjum sem tilheyra miðhæð flísalagt 2025.
Miðhæð. Eldhúsinnrétting 2009, Gluggar á baðherbergi og hjónaherbergi endurnýjaðir 2023. Baðherbergi endurnýjað 2023. Ný útihurð 2023.
Utanhúss: 7 m2 garðskúr smíðaður 2021. Jarðvegsskipti að norðan og vestan 2022 og sett möl. Sólpallur smíðaður norðan við hús 2022. Sólpallur smíðaður að sunnan 2023-2025. Perlumöl sett norðan og vestan við hús 2025.
Húsið heilmálað að utan 2022. Vinsamlega athugið að teikningar sem fylgja með eru einungis til að sýna fyrirkomulagið.
- Einkasala

Dýpri greining á Húsasjá
- Verðmat fasteignar
- Sölusaga og verðþróun
- Samanburður sambærilegra eigna



































