Mýrar 4
01-0101 · 450 Patreksfirði



294 dagar á sölu
82.500.000 kr
271.382 kr/m²
Framkvæmdasýslan - Ríkiseignir (FSRE) kynnir alla húseignina að Mýrum 4, Patreksfirði, nánar tiltekið eign með fastanúmer F2123930, ásamt öllu því sem eigninni fylgir. Einstaklega reisulegt einbýlishús á tveimur hæðum. Eignin stendur á 700 fm. gróinni lóð með miklu útsýni til sjávar. Húsið hefur fengið ágætis viðhald verið endurnýjað að hluta, þar á meðal neysluvatnslagnir og baðherbergi.
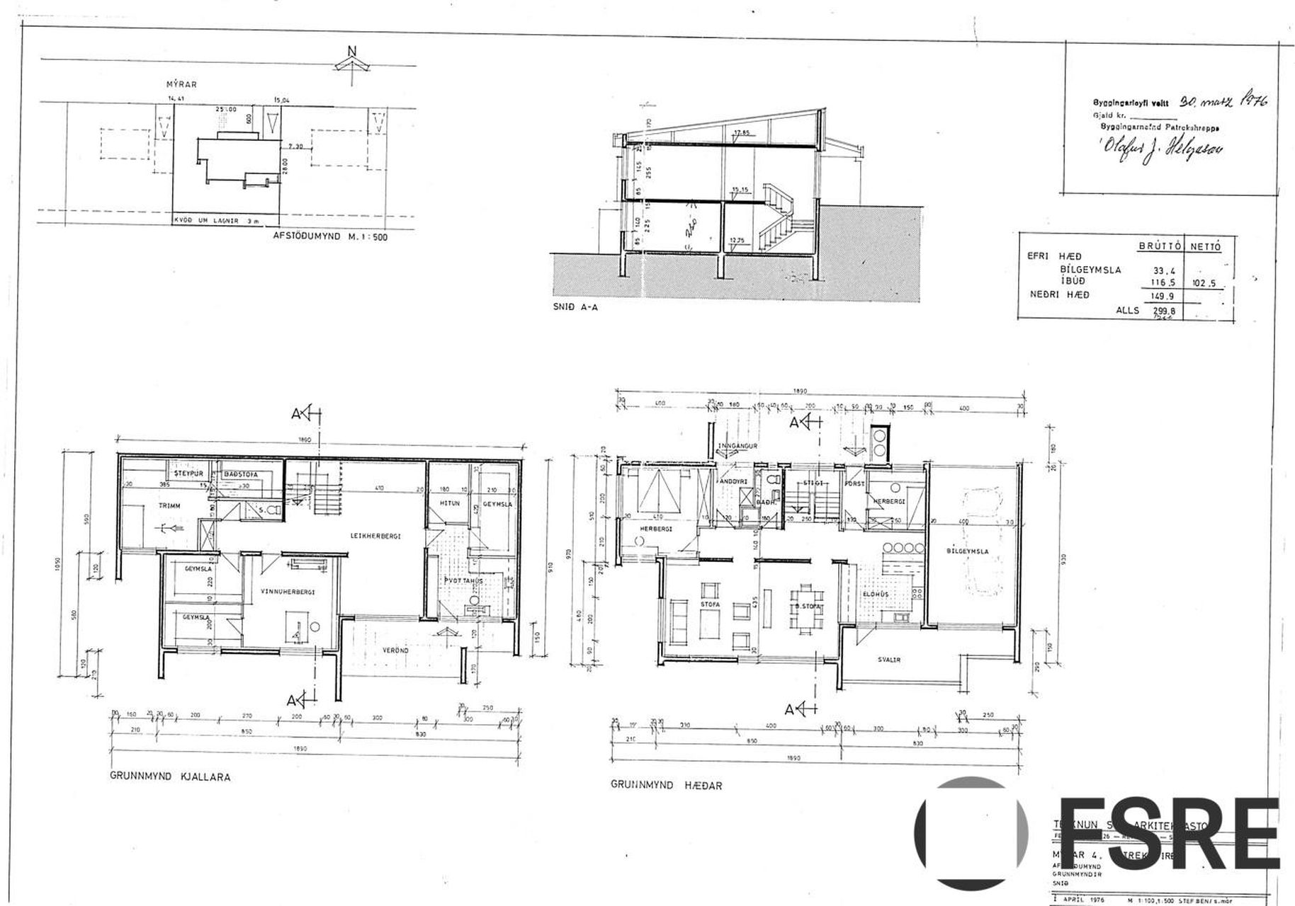
Rúmgott einbýlishús með sjávarsýn Heildarstærð: 304 fmBílskúr: 34,4 fmByggingarár: 1976Herbergi: 5 svefnherbergi + sjónvarpshol + húsbóndaherbergiStaðsetning: Einstaklega falleg staðsetning með útsýni yfir bryggju og fjörðinnEfri hæðin, 117,6 fm. – Björt og opin hönnunFlísalögð forstofa með gestasalerniBjört og rúmgóð stofa með útgengi á stórar svalir og steinlagðar gluggakisturEldhús einnig með útgengi á svalir, með eikarinnréttingu í U-lagi, borðkrók, helluborði, viftu og aðstöðu fyrir uppþvottavél.Parket á holi, stofu og eldhúsiHerbergi við inngang sem áður var hluti af stofu – auðvelt að fjarlægja veggAukainngangur og forstofu-/húsbóndaherbergi inn af eldhúsiGengið niður fallegan timburstiga á neðri hæðNeðri hæðin, 152 fm. – Góð fjölskylduaðstaðaGlæsilegt sjónvarpshol með arniRúmgott hjónaherbergi með fataskápumÞrjú barnaherbergi (án skápa)Þvottahús með útgengi í garð og veröndGeymsla/hitakompa með hitatúbu og lagnagrind hússinsNýlegt baðherbergi með gólfhita, baðkari og sturtu, upphengdu salerni og handklæðaofniBílskúr og aðkoma34,4 fm bjartur bílskúr með gluggum, hurðaopnara og gönguhurðVaskur og tveir kranarMáluð gólfSteypt bílaplan og stétt að inngangiKöld geymsla við hlið bílskúrs (upphaflega hönnuð sem ruslatunnuskýli)Viðhald og ástandHúsið nýmálað að utan og múrviðgertUpprunalegir gluggar í góðu ásigkomulagiNeysluvatnslagnir og kerfi endurnýjað ásamt baðherbergi á neðri hæðLeigjandi hefur greint frá leka í svalahurð í mjög slæmu veðriÞetta er eign á besta stað við sjávarsíðuna á Patreksfirði. Hentar vel fyrir stóra fjölskyldu sem leitar að einbýlishúsi með góðu aðgengi, bílskúr, og útsýni.
Eignin selst í því ástandi sem hún er við skoðun og afhendist við kaupsamning. Nánari upplýsingar er hægt að nálgast hjá FSRE eða með því að senda tölvupóst á eignasala@fsre.is
Seljandi þekkir ekki eignina umfram það sem fram kemur í opinberum gögnum. Því leggur seljandi ríka áherslu á að sérstakrar árvekni sé gætt við skoðun og úttekt á eigninni og veitir FSRE allan nauðsynlegan aðgang til þess.

Fáðu nýja innsýn á Húsasjá
- Verðmat fasteignar
- Sölusaga og verðþróun
- Samanburður sambærilegra eigna










