Kvíholt 14
01-0201 · 220 Hafnarfirði



20 dagar á sölu
119.800.000 kr
709.716 kr/m²
Hraunhamar fasteignasala kynnir: Sérlega fallega og bjarta efri hæð 135,2 fm góðu í 2-býli auk 33,6 fm bílskúr, samtals stærð 168,8 fm. Frábær staðsetning innst í botnlanga, glæsilegt útsýni.
Góð aðkoma og næg bílastæði.
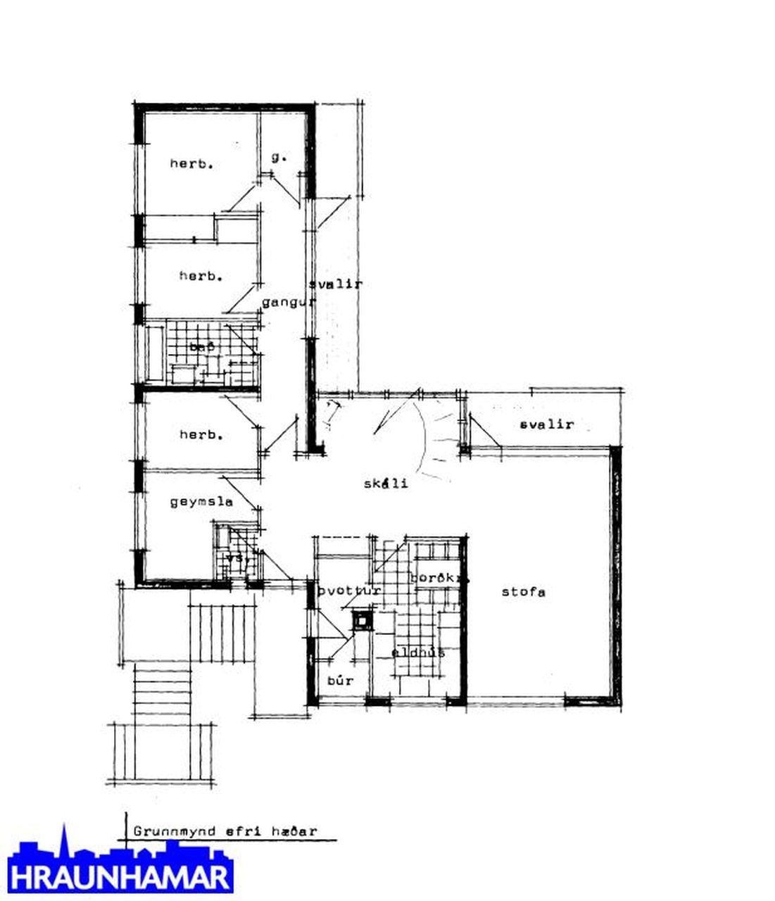
Eignin skiptist m.a. þannig: Sér inngangur, forstofa með gestasnyrtingu innaf, gluggi. gott hol, skápur, sjónv.hol, rúmgóð björt stofa og borðstofa, útgeng á s-svalir. Rúmgott eldhús með vönduðum viðarinnréttingum, mahony/hlynur, góð tæki, m.a.nýleg uppþvottavél, keramik helluborð, flísar á milli skápa, innangengt í rúmgott þvottaherbergi, innrétting með skolvaski, flísar í hólf og gólf, hurð út á inngangspallinn/svalir. Innaf holi eru rúmgott herbergi, var áður tvö barnaherbergi, (er herbergi og geymsla á teikningu.) Svefnálma: þar er gott hjónaherbergi með fataherbergi fyrir innan, ágætt með barnaherbergi og rúmgott baðherbergi, baðkar með sturtuaðstöðu í, hvít innrétting, flísar í hólf og gólf. Útgengt á vestur svalir frá svefngangi.
Parket á gólfum nema flísar á votrýmum.
Bílskúr er rúmgóður og bjartur með opnara og gönguhurð út i suður garðinn.
Samkvæmt uppl seljanda þá hefur eignin fengið nokkuð gott viðhald m.a.:
KVÍHOLT 14, 0201 – SAGAN:
Húsið er byggt 1968 af Bergi Hjartarsyni húsasmíðameistara og konu hans Aðalheiði Garðarsdóttir. Núverandi eigandi búinn að vera síðan árið 1993. Þá var búið að skipt út einhverjum glerjum, byggt hafði verið yfir svalir og holið stækkað út. Húsið almennt í góðu viðhaldi.
1993: Bað, endurnýjaðar flísar á veggjum og gólfi. Ekki var skipt út baðkeri .
1993: Allt málað, gestabað og eldhús lakkað. Öll teppi rifin af. Parket sett á stofu, nýjir dúkar á barnaherbergi og svefnherbergisgang.
1998: Ný innrétting á bað, nýr vaskur.
1999: Húsið sprunguviðgert (óverulega) og málað. Nýjar bílskúrshurðir.
2000: Ný eldhúsinnrétting og tæki endurnýjuð. Stofa og hol málað af málarameistara.
2001: Hitalagnir og stóri ofn í bílskúr endurnýjaður. Parket sett á hjónaherbergi og skipt um innréttingar í fataherbergi.
2004: Ný bílskúrshurð
2004: Húsið sprunguviðgert og málað að utan, skipt um handrið á svölum og við útitöppur ( sérsmíðað stál)
2005 : skipt um gólfefni á stofu, eldhúsi og barnaherbergjum
2005 : Nýjir fataskápar og nýjar innihurðir.
2007 : Járn á þaki endurnýjað , ílögn á útitröppur lagfærð
Nýjar útihurðir, aðalhurð, þvottahús og báðar svalahurðir.
Skipt um ofn í holi og parket .
2010: Þvottahús tekið í gegn, brotin niður strompur, hiti lagður í gólf, ný innrétting, stór vaskur og ný blöndunartæki. Flísalagt gólf og veggir.
2014: Nýr vaskur á litla baði. Skipt um salerni á stóra baðinu
2018:Skipt út öllum gluggum á austurhlið og settir í vandaðir plastgluggar
2019: Nýr bakaraofn
2019: Nýir gluggar og gler í bílskúr og kyndiklefa. Ný ál bílskúrshurð og opnari .
2020: Stofa máluð af fagmanni
2022: Endurnýjun blöndunartæki á í eldhúsi og í baði/sturtu
2022. Húsið tekið allt í gegn, málning hreinsuð af, rappað uppá nýtt, sagaðar upp sprungur, lagaðar og allt málað. Lagt í tröppur og stétt.
2022: skipt um glugga og gler í holi, plastgluggar settir í .
2023: lagt í bæði svalargólf, lakkað með vatnsfráhrindndi efni á tröppur og pall niðri
2023: Skipt út fúnum spýtum í þakkanti
Þarf að athuga:
1. Mála glugga að utan í gestawc, eldhúsi, þvhúsi, stofu og svefnherbgangi
2. Mála glugga að innan í svefnherbergisgangi og syðri glugga í stofu.
3. Gluggar á svefnherbergisgangi og útfrá borðstofu komnir á eitthvað viðhald amk málningu og neðri listar, gler heil.
ANNAÐ:
· Rakamerki í hornum á hjónaherbergi vegna kuldabrúa en þar kom 3 steyptir veggir saman þarf að hreinsa og mála ca 5 ára fresti
· Doppur á veggjum i gestawc sem eru eftir lyktaeyði sem skyldi eftir klístur á lakkinu.
· Rakaummerki í kverkum í forstofuherbergi , gestaWC og eldhúsi. Búið að gera við sprungu á steypuskilum, aldrei lekið en ekki verið málað eftir viðgerð. Sama neðan við ofn í stofu, raki áður en ný ílögn var sett á svalir.
Hafa í huga gervigreind var notuð til að fjarlægja truflandi hluti af myndum og bæta myndgæði.
Nánari uppl. gefur Helgi Jón Harðarson sölustj. s. 893-2233 helgi@hraunhamar.is og
Glódís Helgadóttir lgf. s. 659-0510 glodis@hraunhamar.is
Skoðunarskylda:
Í lögum um fasteignakaup nr. 40/2002 er kveðið á um ríka skoðunarskyldu kaupenda á fasteignum. Hraunhamar fasteignasala vill benda væntanlegum kaupendum á að kynna sér vel ástand fasteigna fyrir kauptilboðsgerð og ef þurfa þykir að leita til sérfræðinga fyrir nánari ástandsskoðun.
Gjöld sem kaupandi þarf að standa straum af vegna kaupanna:
1. Stimpilgjald af kaupsamningi, fyrstu kaup (0,4%), almenn kaup (0,8%), lögaðilar (1,6%) af heildarfasteignamati.
2. Þinglýsingargjald af kaupsamningi, veðskuldabréfi, mögulegu veðleyfi o.fl. – 3.800 kr. af hverju skjali.
3. Lántökugjald lánastofnunar er skv. verðskrá viðkomandi lánastofnunar.
4. Umsýslugjald til fasteignasölu skv. þjónustusamningi
Hraunhamar er elsta fasteignasala Hafnarfjarðar, stofnuð 1983.
Hraunhamar, í fararbroddi í rúm 40 ár. – Hraunhamar.is
Smelltu hér til að fá frítt söluverðmat.

Fáðu nýja innsýn á Húsasjá
- Verðmat fasteignar
- Sölusaga og verðþróun
- Samanburður sambærilegra eigna
































