Bæjarhraun 6A
01-0101 · 220 Hafnarfirði



106 dagar á sölu
109.800.000 kr
595.768 kr/m²
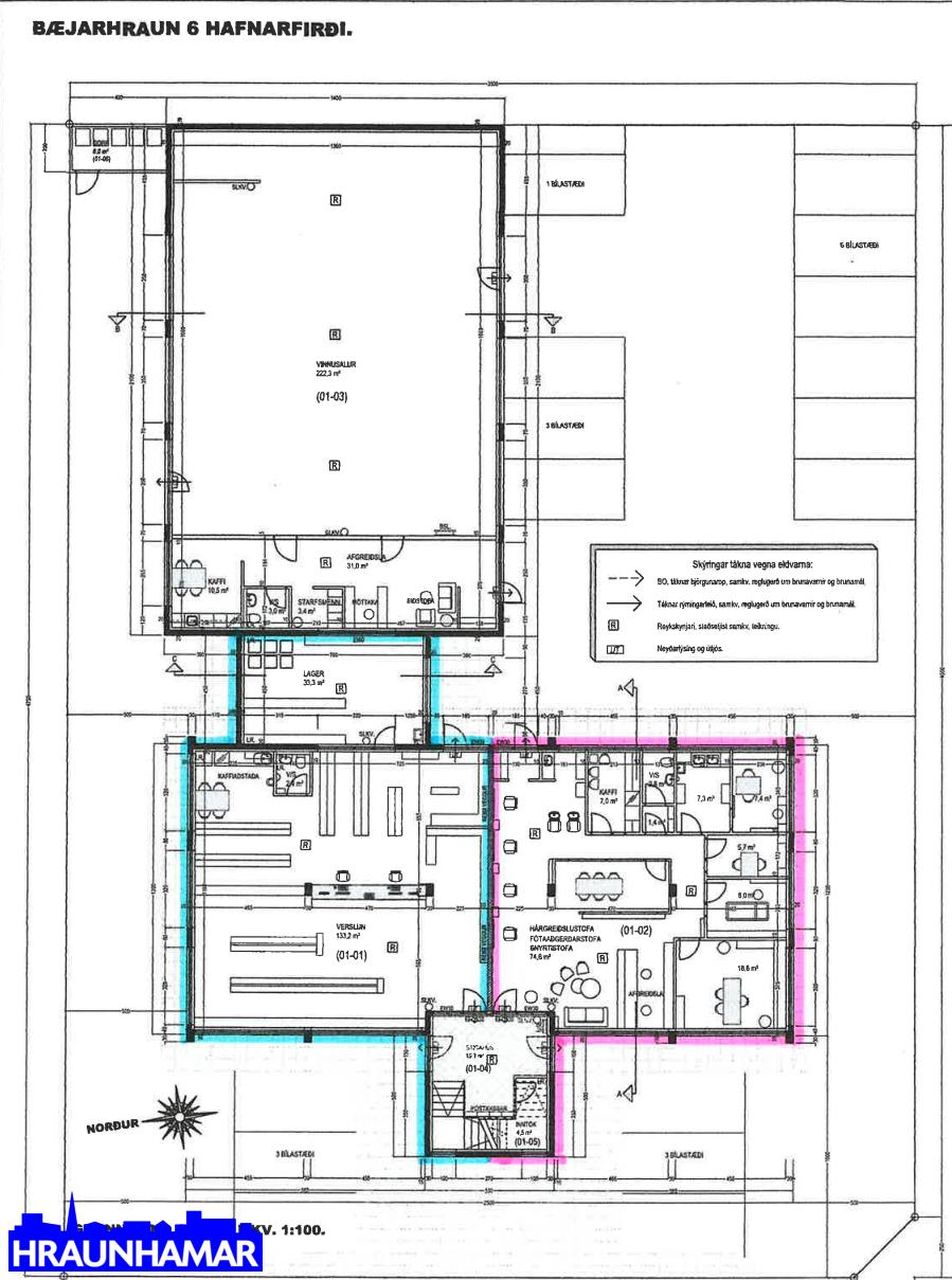
Hraunhamar fasteignasala og Helgi Jón Harðarson sölustjóri s. 893-2233 helgi@hraunhamar.is kynna: Sérlega gott atvinnuhúsnæði/verslunarhúsnæði 184,3 fm við Bæjarhraun 6 Hfj (vestur endi) á jarðhæðinni. (1 hæð)
Frábær staðsetning og mikið auglýsingagildi m.a. frá Reykjanesbrautinni. Húsið stendur beint á móti Bónus sem er hinu megin við Reykjanesbrautina.
Húsnæðið skiptist m.a. þannig: Móttaka/verslun, lager, snyrting, kaffiaðstaða ofl. Innangengt í lageraðstöðu með innk.dyrum bakatil. (bílsk.hurð) Bilið er merkt með bláum lit á teikningu.
Húsinu hefur verið vel við haldið sl. ár að utan, þ.e. allt húsið málað, m.a. gluggar og og hurðir.
Engin vsk kvöð er á eignarhlutanum. Ath: Möguleiki er að fá húsnæðið leigt líka.
Húsnæðið hentar sérstaklega vel fyrir verslun, heildsölu ofl. Möguleiki er að kaupa bakhúsið (294 fm) líka. (eldvarnahurð á milli) þá verður innangengt. Einnig er líka mörguleiki að kaupa/leigja bilið við hliðina, merkt með rauðu á teikningu.
Fasteigamat 2026 verður 85.150.000.- Fjárfesting til framtíðar !
Nánari uppl. gefur Helgi Jón Harðarson sölustjóri s. 893-2233 helgi@hraunhamar.is og
Glódís Helgadóttir lgf. s. 659-0510 glodis@hraunhamar.is
Skoðunarskylda:
Í lögum um fasteignakaup nr. 40/2002 er kveðið á um ríka skoðunarskyldu kaupenda á fasteignum. Hraunhamar fasteignasala vill benda væntanlegum kaupendum á að kynna sér vel ástand fasteigna fyrir kauptilboðsgerð og ef þurfa þykir að leita til sérfræðinga fyrir nánari ástandsskoðun.
Gjöld sem kaupandi þarf að standa straum af vegna kaupanna:
1. Stimpilgjald af kaupsamningi, fyrstu kaup (0,4%), almenn kaup (0,8%), lögaðilar (1,6%) af heildarfasteignamati.
2. Þinglýsingargjald af kaupsamningi, veðskuldabréfi, mögulegu veðleyfi o.fl. – kr. 3.800 kr. af hverju skjali.
3. Lántökugjald lánastofnunar er skv. verðskrá viðkomandi lánastofnunar.
4. Umsýslugjald til fasteignasölu skv. þjónustusamningi
Hraunhamar er elsta fasteignasala Hafnarfjarðar, stofnuð 1983.
Hraunhamar, í fararbroddi í rúm 40 ár. – Hraunhamar.is
Smelltu hér til að fá frítt söluverðmat.

Dýpri greining á Húsasjá
- Verðmat fasteignar
- Sölusaga og verðþróun
- Samanburður við sambærilegar eignir







