Bæjarhraun 2
01-0101 · 220 Hafnarfirði



117 dagar á sölu
135.000.000 kr
423.197 kr/m²
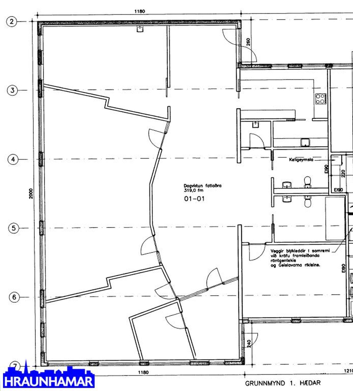
Hraunhamar fasteignasala og Helgi Jón Harðarson sölustjóri s. 893-2233 helgi@hraunhamar.is kynna: Jarðhæð 319 fm v-endi á besta stað við Bæjarhraun 2 Hfj. Frábær staðsetning í Hafnafirði og gott auglýsingagildi.
Húsnæði er bjart og gott og með glugga í þrjár áttir og hurð baka til líka. Góð aðkoma/aðgengi og næg bílastæði. Tilvalin eign fyrir verslun, þjónustu, gallery ofl. Húsið sjálft lítur vel út. Laust fljótlega.
Húsnæðið skiptist m.a. þannig: Sérinngangur, forstofa, skrifstofur, kaffistofa/eldhús, tvær snyrtingar, alrými ofl. Aðgengi í húsnæðið er bæði að framan og aftanverðu.
Framkvæmdir sl. ára samkvæmt upplýsingum seljenda:
2024 Gluggar málaðir að framan, glerlistar lagfærðir á gafli.
2022 Veggir málaðir og rakaþétt við útvegg.
2021 Nýtt loftræstikerfi, ný hurð bakatil, gólfefni endurnýjað, veggir málaðir, rakaþétting við útveggi, öryggiskerfi endurnýjað ofl.
Þetta er mjög áhugaverð eign til að skoða frekar á þessum góða stað, þar sem örstutt er í alla helstu þjónustu og verslun í bænum.
Nánari uppl. gefur Helgi Jón Harðarson sölustjóri s. 893-2233 helgi@hraunhamar.is og
Hlynur Halldórsson lgf. s. 698-2603 hlynur@hraunhamar.is
Skoðunarskylda:
Í lögum um fasteignakaup nr. 40/2002 er kveðið á um ríka skoðunarskyldu kaupenda á fasteignum. Hraunhamar fasteignasala vill benda væntanlegum kaupendum á að kynna sér vel ástand fasteigna fyrir kauptilboðsgerð og ef þurfa þykir að leita til sérfræðinga fyrir nánari ástandsskoðun.
Gjöld sem kaupandi þarf að standa straum af vegna kaupanna:
1. Stimpilgjald af kaupsamningi, fyrstu kaup (0,4%), almenn kaup (0,8%), lögaðilar (1,6%) af heildarfasteignamati.
2. Þinglýsingargjald af kaupsamningi, veðskuldabréfi, mögulegu veðleyfi o.fl. – kr. 3.800 kr. af hverju skjali.
3. Lántökugjald lánastofnunar er skv. verðskrá viðkomandi lánastofnunar.
4. Umsýslugjald til fasteignasölu skv. þjónustusamningi
Hraunhamar er elsta fasteignasala Hafnarfjarðar, stofnuð 1983.
Hraunhamar, í fararbroddi í rúm 40 ár. – Hraunhamar.is
Smelltu hér til að fá frítt söluverðmat.

Dýpri greining á Húsasjá
- Verðmat fasteignar
- Sölusaga og verðþróun
- Samanburður sambærilegra eigna































