Brattakinn 23
01-0101 · 220 Hafnarfirði



9 dagar á sölu
129.900.000 kr
617.689 kr/m²
Hraunhamar fasteignasala kynnir: Fallegt og talsvert endurnýjað einbýlishús með tveimur aukaíbúðum við Bröttukinn 23 í Hafnarfirði. Falleg og snyrtileg lóð með góðu bílaplani. Frábær staðsetning þar sem stutt er í alla helstu þjónustu. Kjörin fjárfesting til að skapa leigutekjur samhliða. Eignin er laus strax. (fyrir utan vinnustofan).
Eignin er skráð 176,9 fm skv. HMS en til viðbótar er 33,4 fm geymsla skv. nýrri skráningartöflu. Samtals því 210,3 fm
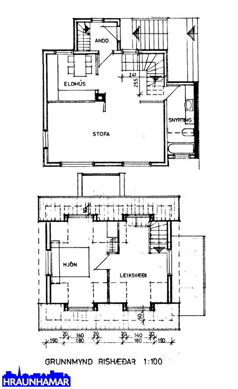
Eignin skiptist meðal annars þannig:
Miðhæð og rishæð: Forstofa, bjart opið alrými sem saman stendur af eldhúsi, borðstofu og stofu. Rúmgott flísalagt baðherbergi með innréttingu, upphengdu salerni og walk in sturtu. Tengi fyrir þvottavél og þurrkara á baðherbergi. Gluggi. Teppalagður stigi upp í rishæð. Gott hol. Rúmgott svefnherbergi. Rishæð er að hluta til undir súð og því er gólfflötur stærri.
Jarðhæð: Sérinngangur. Eldhús, borðstofa, tvö svefnherbergi og baðherbergi. Mögulegt væri að opna aftur á milli aðalhæðar og kjallara.
Vinnustofa/bílskúr: Studioíbúð er þar í dag, alrými með eldunaraðstöðu og baðherbergi.
Falleg eign sem hefur verið talsvert endurnýjuð.
Skv. seljanda var rafmagn endurnýjað, pípulagnir að mestum hluta, ný hitaveitugrind, ný einangrun, ný klæðning, nýir gluggar (fyrir utan 4 á framhlið), nýjar hurðir, nýtt þak þar sem rishæðinni var bætt við. Nýjar innréttingar, ný gólfefni og útbúnar leigueininga.
Síðast liðin ár var lóð kláruð á snyrtilegan hátt og bílskúr einangraður og klæddur, nýtt þak o.fl.
Nánari upplýsingar veitir:
Glódís Helgadóttir löggiltur fasteignasali í s. 659-0510 eða glodis@hraunhamar.is
Skoðunarskylda:
Í lögum um fasteignakaup nr. 40/2002 er kveðið á um ríka skoðunarskyldu kaupenda á fasteignum. Hraunhamar fasteignasala vill benda væntanlegum kaupendum á að kynna sér vel ástand fasteigna fyrir kauptilboðsgerð og ef þurfa þykir að leita til sérfræðinga fyrir nánari ástandsskoðun.
Gjöld sem kaupandi þarf að standa straum af vegna kaupanna:
1. Stimpilgjald af kaupsamningi, fyrstu kaup (0,4%), almenn kaup (0,8%), lögaðilar (1,6%) af heildarfasteignamati.
2. Þinglýsingargjald af kaupsamningi, veðskuldabréfi, mögulegu veðleyfi o.fl. – 3.800 kr. af hverju skjali.
3. Lántökugjald lánastofnunar er skv. verðskrá viðkomandi lánastofnunar.
4. Umsýslugjald til fasteignasölu skv. þjónustusamningi
Hraunhamar er elsta fasteignasala Hafnarfjarðar, stofnuð 1983.
Hraunhamar, í fararbroddi í rúm 40 ár. – Hraunhamar.is
Smelltu hér til að fá frítt söluverðmat.
Smelltu hér til að fá söluyfirlit sent strax.

Dýpri greining á Húsasjá
- Verðmat fasteignar
- Sölusaga og verðþróun
- Samanburður við sambærilegar eignir

































