Melabraut 16
01-0202 · 170 Seltjarnarnesi



53 dagar á sölu
90.900.000 kr
818.182 kr/m²
***NÝTT Á SKRÁ-LAUS VIÐ KAUPSAMNING***
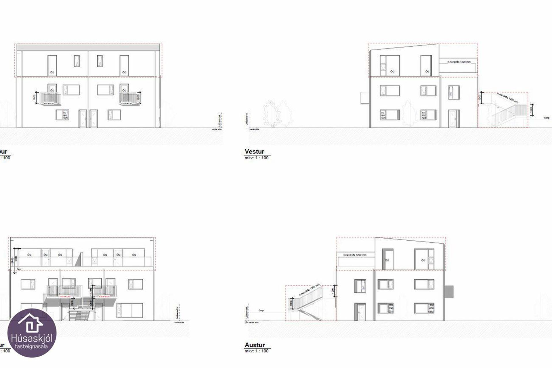
Húsaskjól og Jóhanna Gustavsdóttir löggiltur fasteignasali kynna í einkasölu: fallega og mikið endurnýjaða 4ja herbergja íbúð á efri hæð í fjórbýlishúsi ásamt rislofti á vinsælum stað á Seltjarnarnesinu á Melabraut 16 með sameiginlegum inngangi neðri hæðar. Fyrir liggur teikning og samþykki frá Seltjarnarnesbæ um að setja stiga framan á húsið og þá myndu allar íbúðirnar fá sérinngang. Jafnframt liggur fyrir samþykki og teikningar fyrir hækkun á húsinu og þá myndi þessi íbúð stækka um 56,4 fm og fá mjög rúmgóðar suðursvalir með einstöku sjávarútsýni. Lóðin er stór og gróin og á hver íbúð í húsinu eitt bílastæði fyrir framan húsið. Nýlega er búið að skipa um þak á húsinu. Íbúðin er laus við kaupsamning.
Íbúðin er skráð samtals 111,1 fm að stærð og þar af er aðalhæðin 87,6 fm og innréttað risloft 23,5 fm auk rýmis undir súð sem er ekki inni í skráðum fm. Eignin skiptist í tvö svefnherbergi, eldhús, rúmgóða stofu og borðstofu, baðherbergi og hol á neðri hæð, stigapall og risloft þar sem er gert ráð fyrir rúmgóðu herbergi, þvottahúsi og súðargeymslur.
Nánari upplýsingar veitir Jóhanna Gustavsdóttir löggiltur fasteignasali í síma 698-9470, netfang: johanna@husaskjol.is
SMELLTU HÉR TIL AÐ SÆKJA UPPLÝSINGABÆKLING FYRIR EIGNINA
Nánari lýsing á eign:Gólfefni á hæðinni eru harðparket og flísar á baði.
Inngangur er sameiginlegur með neðri hæð. Þaðan er snyrtilegur stigi með steinteppi upp á stigapall. Þegar komið er inn í íbúðina tekur við rúmgott hol sem tengir saman aðrar vistaverur íbúðarinnar og er með stiga upp á risloftið. Rúmgóð stofa-og borðstofa með fallegum stórum gluggum og útsýni út á sjó. Eldhúsið er endurnýjað með hvítri sprautulakkaðri eldhúsinnréttingu sem er með efri-og neðri skápum og gráum flísum á milli, rúmgóð eyjaSMELLTU HÉR TIL AÐ SÆKJA UPPLÝSINGABÆKLING FYRIR EIGNINA
sem hægt er að sitja við. Endurnýjuð eldhústæki, ofn í vinnuhæð og örbylgjuofn, keramik helluborð. Baðherbergið er fallegt og endurnýjað, flísalagt í hólf og gólf. upphengt klósett, sturtuklefi með gleri, viðarinnrétting með skúffum og innbyggðum vask. Herbergi og hjónaherbergi eru rúmgóð með endurnýjuðum fataskápum. Frá holi er gengið upp á risloftið um nýlegan stiga og þar er gert ráð fyrir þvottahúsi ásamt rúmgóðu svefnherbergi með Velux þakgluggum. Einnig eru góðar súðargeymslur.
í sameign hússins er hitakompa. Lóðin er stór og gróin og í bakgarðinum er góður timburskúr með palli sem er notaður sem geymsla fyrir hjól og grill fyrir íbúa hússins.
Hér er um að ræða mikið endurnýjaða og bjarta 4ja herbergja íbúð á efri hæð með rúmgóðu rislofti í fjórbýlishúsi á barnvænum og rólegum stað á Seltjarnarnesinu þar sem stutt er í leik-og grunnskóla, tónlistarskóla, þróttaaðstöðu fyrir börn og fullorðna, sundlaug, golfvöll. fallegar göngu-og hjólaleiðir meðfram sjónum og fjöruna. Einnig er ýmis verslun og þjónusta í næsta nágrenni eins og matvöruverslun, kaffihús og ísbúð á Eiðistorgi og veitingastaðurinn Ráðagerði við Gróttu svo eitthvað sé nefnt. Spennandi eign sem býður upp á ýmsa möguleika.
Allar nánari upplýsingar veitir Jóhanna Gustavsdóttir löggiltur fasteignasali í síma 698-9470, netfang: johanna@husaskjol.is
Fylgdu Húsaskjóli á TikTok
Húsaskjól fasteignasala - af því að þín fasteign skiptir máli
Ertu í söluhugleiðingum? Smelltu hér til að fá frítt verðmat
Ertu að leita að sambærilegri íbúð? Smelltu hér til að skrá þig á kaupóskalistann okkar
Fylgdu okkur á Instagram
Skoðaðu hvað okkar viðskiptavinir hafa um Skoðaðu hvað okkar viðskiptavinir hafa um okkur að segja
Hvað er í gangi á fasteignamarkaðnum? Skráðu þig á Fréttaskot Húsaskjóls
Húsaskjól advices potential buyers who do not speak or read icelandic to have a translator present when they view and sign an offer, sales agreement and other documents relating to the purchase of the property.​
Um skoðunar- og aðgæsluskyldu:
Í lögum um fasteignakaup nr. 40/2002 er kveðið á um ríka skoðunarskyldu kaupenda á fasteignum. Vill Húsaskjól fasteignasala því skora á væntanlega kaupendur að kynna sér vel ástand fasteigna fyrir kauptilboðsgerð og leita til þar til bærra sérfræðinga um nánari skoðun.
Forsendur söluyfirlits:
Söluyfirlit er samið af fasteignasala í samræmi við ákvæði laga nr. 70/2015. Þær upplýsingar sem fram koma í söluyfirliti þessu eru sóttar í opinberar skrár, til seljanda sjálfs og eftir atvikum til húsfélags. Seljandi veitir upplýsingar um eign í samræmi við upplýsingaskyldu laga um fasteignakaup nr. 40/2002. Fasteignasali sannreynir að þær upplýsingar séu réttar með sjónskoðun á eigninni.
Fasteignasali getur ekki fullyrt um ástand og eiginleika þeirra hluta fasteigna sem ekki eru aðgengilegir og sjást ekki berum augum, t.d. lagnir, dren, skólp og þak.
Gjöld sem kaupandi þarf að standa straum af vegna kaupanna:
1. Stimpilgjald af kaupsamningi, fyrstu kaup (0,4%), almenn kaup (0,8%), lögaðilar (1,6%) af heildarfasteignamati.
2. Þinglýsingargjald af kaupsamningi, veðskuldabréfi, mögulegu veðleyfi o.fl. - kr. 2.700 af hverju skjali.
3. Lántökugjald lánastofnunar - fast gjald. Sjá vefsíðu viðkomandi lánastofnanna
4. Umsýslugjald til fasteignasölu skv. kauptilboði

Dýpri greining á Húsasjá
- Verðmat fasteignar
- Sölusaga og verðþróun
- Samanburður sambærilegra eigna



















