Grænatún 20B
01-0101 · 200 Kópavogi



400 dagar á sölu
154.900.000 kr
878.616 kr/m²
BÓKIÐ EINKASKOÐUN
NÁNARI UPPLÝSINGAR FÆRÐU HJÁ GUÐNÝJU ÞORSTEINS Í SÍMA 7715211 EÐA GUDNYTH@REMAX.IS
SMELLTU HÉR OG SJÁÐU EIGNINA Í ÞRÍVÍDD
RE/MAX og GUÐNÝ ÞORSTEINS Löggiltur fasteignasali kynna í einkasölu: Mjög vel skipulagt og fallegt 164,3fm parhús á tveimur hæðum með 2-3 svefnherbergjum ásamt innbyggðum bílskúr við Grænatún 20b, í eftirsóttu hverfi í Kópavogi. ATH fyrir afhendingu verðu 12fm sólskálinn reistur ásamt því að húsið verður málað að utan. Samtals stærð 176m2.Aukin lofthæð2 baðherbergi bæði með útgangiSuður og norður svalir12fm sólskáliHiti í gólfumAfhendist við kaupsamningHúsið samanstendur af: Forstofu, 2-3 svefnherbergjum, 2 fullbúnum salernum, 2 svölum, eldhúsi, stofu og borðstofu ásamt bílskúr.
Nánari lýsing:
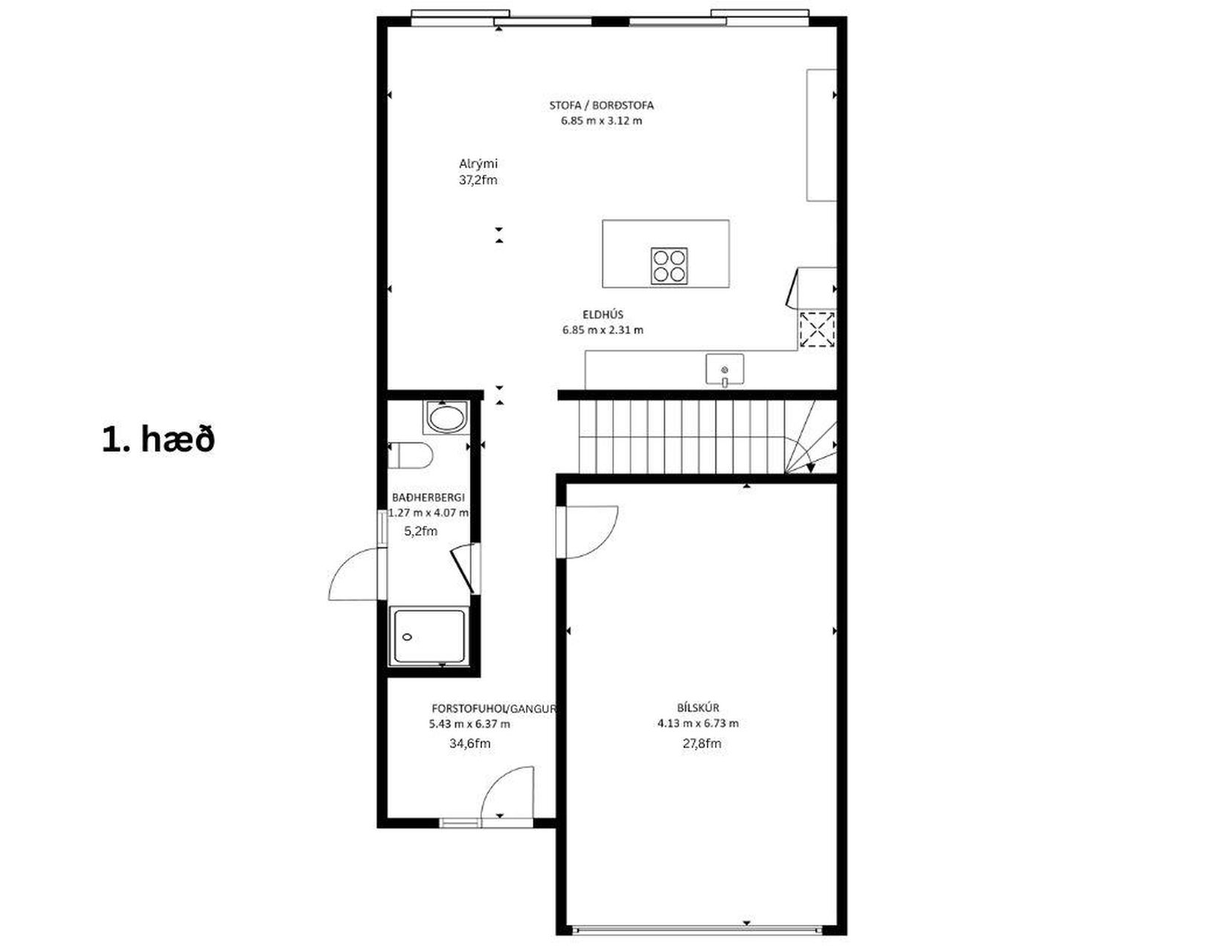
1. hæð:
Forstofa: Er virkilega rúmgóð með góðum skápum, flísar ásamt hita í gólfi.
Stofa/Eldhús: Eru í sameiginlegu opnu og flæðandi rými með 2 rennihurðum út í 12 fm sólskála sem snýr í suður. Vínilparket ásamt hiti er í gólfum.
Baðherbergi: Er með rúmgóðri sturtu, upphengdu salerni, vaski með skúffum undir. Útgangur eru út í garð til austurs. Flísar ásamt hita í gólfi.
Bílskúr: Er innangengur úr íbúð, 24,5fm að stærð ásamt rafdrifinni hurð.
Bílaplan: Er stórt og gott, búið er að leggja fyrir hita í planið.
Stigi: Er steyptur, gert er ráð fyrir næturlýsingu við þrepin.
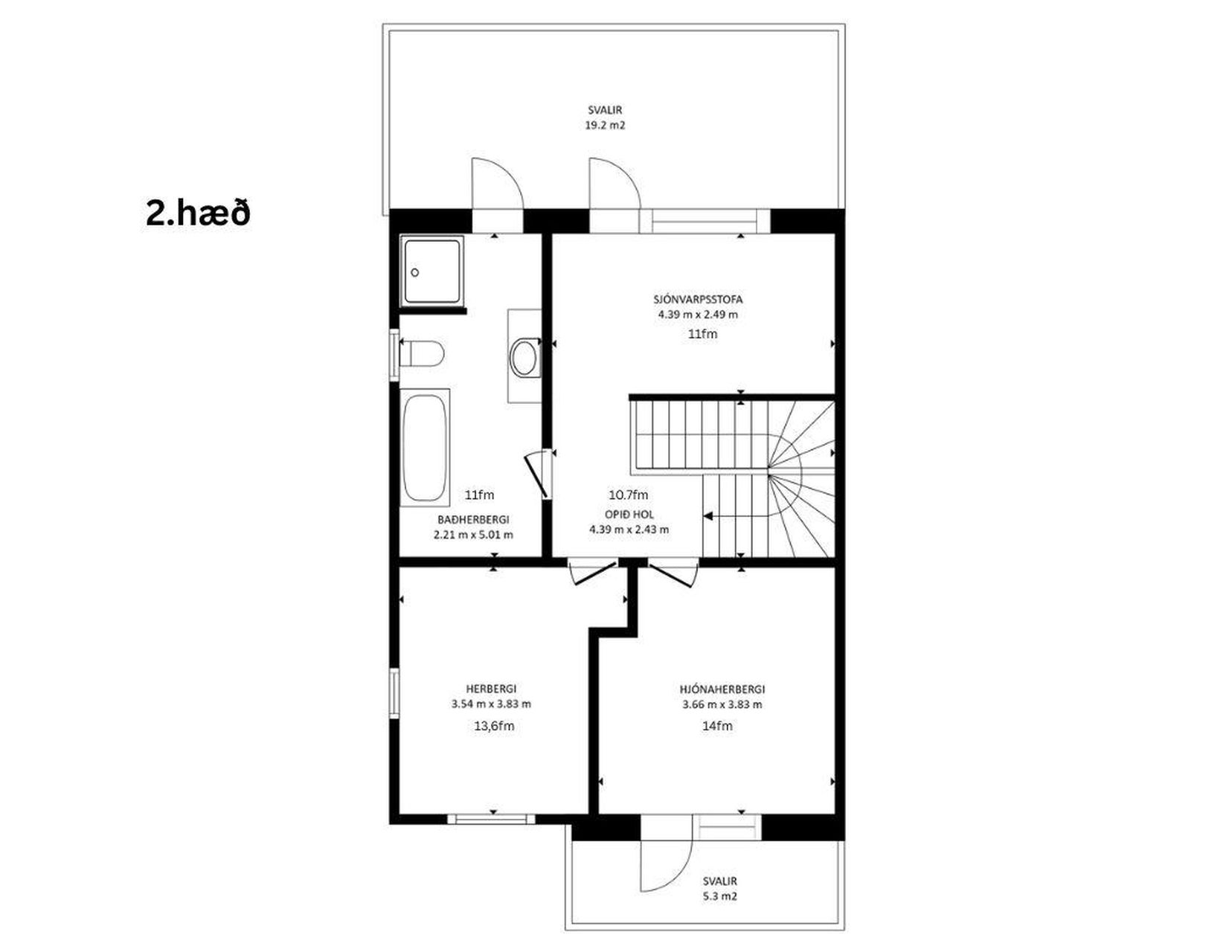
2. hæð:
Herbergi I: Er 13fm að stærð með góðum fataskápum ásamt útgangi út á norður svalir, harðparket ásamt hita í gólfi.
Herbergi II: Er 13,1fm að stærð með fataskáp, harðparket ásamt hita í gólfi.
Herbergi III / Sjónvarpsherbergi: Er 11,6fm að stærð með útgang út á suður svalir, harðparket ásamt hita í gólfi.
Baðherbergi: Er 11,6fm að stærð, virkilega fallegt með útgang út á svalir, rúmgóðri sturtu, baðkari, upphengdu salerni, vaskur með skúffum undir. Flísar ásamt hita í gólfi.
Þvotta aðstaða: Er inni á baðherbergi á 2. hæð.
Arkitekt hússins er Einar V. Tryggvason arkitekt.
Húsið er vel staðsett í vinsælu hverfi á grónum stað þar sem stutt er í alla helstu þjónustu eins og leik- og grunnskóla, verslanir ásamt fallegu útivistasvæði í Fossvogsdalnum.
Allar nánari upplýsingar og bókun á skoðun veitir Guðný Þorsteins löggiltur fasteigna- og skipasali s: 771-5211 eða á netfangið gudnyth@remax.is.
Í lögum um fasteignakaup nr. 40/2002 er kveðið á um ríka skoðunarskyldu kaupenda á fasteignum. Vill Re/Max því skora á væntanlega kaupendur að kynna sér vel ástand fasteigna fyrir kauptilboðsgerð og leita til þar til bærra sérfræðinga um nánari skoðun.
Gjöld sem kaupandi þarf að standa straum af vegna kaupanna:
1. Stimpilgjald af kaupsamningi - 0.8% af heildarfasteignamati / 1.6% fyrir lögaðila. (0.4% við fyrstu kaup einstaklinga).
2. Þinglýsingargjald af kaupsamningi, veðskuldabréfi, veðleyfi o.fl.- kr. 2.700 af hverju skjali.
3. Lántökugjald lánastofnunar - skv. gjaldskrá lánastofnunar
4. Umsýsluþóknun til fasteignasölu, 69.900 kr. m.vsk.

Dýpri greining á Húsasjá
- Verðmat fasteignar
- Sölusaga og verðþróun
- Samanburður sambærilegra eigna



































