Lautasmári 27
02-0201 · 201 Kópavogi



24 dagar á sölu
84.900.000 kr
758.713 kr/m²
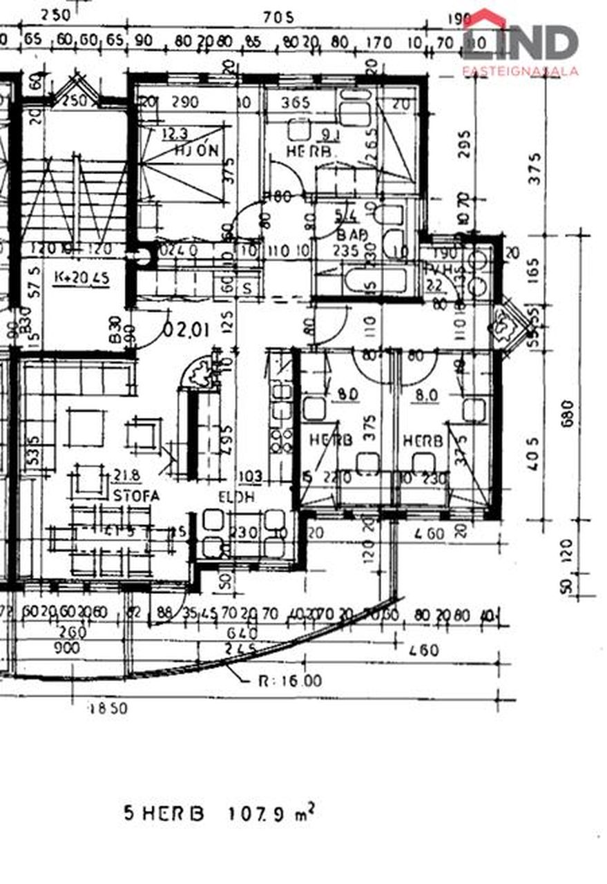
LIND fasteignasala og Helga Pálsdóttir löggiltur fasteignasali kynnir fallega 5.herbergja 107,9 m2 endaíbúð á annari hæð með útgengi út á rúmgóðar suð-vestur svalir í vel viðhöldnu húsi við Lautasmára 27. Eignin skiptist í stofu, borðstofu, eldhús,baðherbergi,þvottahús, fjögur svefnherbergi , ásamt óskráðri ca 4 m2 sérgeymslu í kjallara. Samkvæmt skráningu FMR er íbúðarhlutinn skráður 107.9 m2 auk um 4 m2 óskráðrar geymslu . Eignin er þvi samtals um 111,9 m2.
Nánari lýsing eignar.
Forstofhol með fjórföldum fataskáp.
Eldhús með efri og neðri skápum með flísum á milli skápa. Eldavél með keramik helluborði og viftuháf yfir, gert er ráð fyrir ísskáp og uppþvottavél í innréttingu, rúmgóður borðkrókur.
Stofa/borðstofa með útgengi út á rúmgóðar suð-vestur salir.
Hjónaherbergi með innfelldum fataskáp á heilum vegg.
Barnaherbergi (1) með þreföldum fataskáp.
Baðherbergi með flísum á gólfi og upp fyrir miðja veggi. Baðkar með sturtuaðstöðu. Hvít innrétting með spegli fyrir ofan, annar skápur með efri og neðri skápum, opnanlegur gluggi.
Barnahebergi (2) með tvöföldum fataskáp.
Barnaherbergi (3) með tvöföldum fataskáp.
Þvottahús með flísum á gólfi. Tengi fyrir þvottavél og þurrkara. skolvaskur og opnanlegur gluggi.
Geymsla er í sameign með hillum og máluðu gólfi (óskráð) um 4 m2
Sérmerkt bílastæði.
Hleðslustöðvar á lóð .
Húsið var allt tekið í gegn að utan 2022, málað, sprunguviðgerðir, glerskipti sem þurfti og þakið màlað. Parket á öllu fyrir utan baðherbergi og þvottahús sem eru flísalögð.
Sameiginlegur leikvöllur. Öll helsta þjónusta er innan seilingar. Verslanir, læknisþjónusta, leik-og grunnskóli, íþróttaaðstaða, lfalleg útivistarsvæði og sundlaug Kópavogs. Allar upplýsingar veitir Helga Pálsdóttir löggiltur fasteignasali í síma 822 2123 eða helga@fastlind.is

Dýpri greining á Húsasjá
- Verðmat fasteignar
- Sölusaga og verðþróun
- Samanburður sambærilegra eigna























