Hrauntunga 9
01-0101 · 200 Kópavogi



353 dagar á sölu
185.000.000 kr
895.884 kr/m²
Kjöreign ehf., sími 533-4040 kynnir veglegt og vel staðsett einbýlishús á tveimur hæðum með innbyggðum bílskúr við Hrauntungu, Kópavogi. Birt stærð hússins er 206,5 fm.
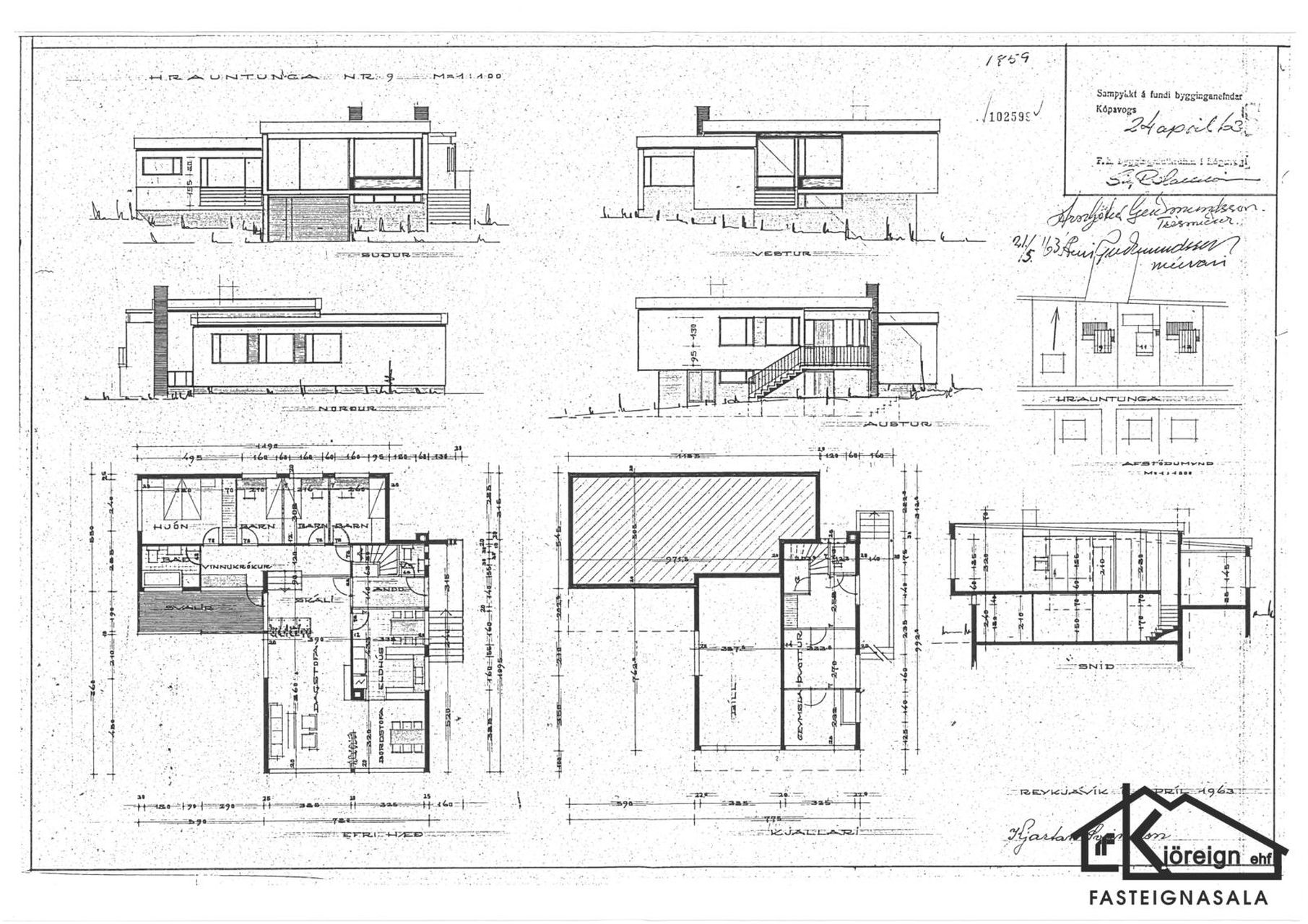
Lýsing, aðalhæðin. Forstofa, gestasnyrting, eldhús, stofa, þrjú svefnherbergi, baðherbergi og svalir.
Lýsing, neðri hæðin. Forstofa, baðherbergi, svefnherbergi og bílskúr sem er innréttaður sem stúdíóíbúð.
Nánari lýsing, aðalhæðin. Forstofa og innaf forstofunni er gestasnyrting, nýtt sem þvottahús. Rúmgott eldhús með endurnýjaðri innréttingu. Rúmgóðar og bjartar stofur með arni. Stórir gluggar eru í stofunni með frábæru útsýni. Á sér gangi eru þrjú svefnherbergi (á teikningu voru 4 en búið að sameina eitt). Skápar eru í herbergjunum. Gengið út á stórar suðursvaliir. Baðherbergi allt endurnýjað með póleruðu blágrýti á gólfi og veggjum. Gólfhiti er á allri efri hæðinni og er náttúrusteinn á gólfi og parket á herbergjunum. Aukin lofthæð er á hæðinni. Stigi er frá hæðinni niður á neðri hæðina.
Nánari lýsing, neðri hæðin. Sérinngngur er inn á neðri hæðina um kalda forstofu. Tvær geymslur. Baðherbergi með sturtu og snyrting, endurnýjað. Rúmgott svefnherbergi. Hurð inn í innbyggðan bílskúr sem er inréttaður sem stúdíóíbúð með snyrtingu og lítilli eldhúsinnréttingu. Bílskúrinn er í útleigu.
Stærðir; Efri hæðin er 136,8 fm., neðri hæðin er 41,6 fm., og bílskúrinn er 28,1 fm. Birt heildarstærð eignarinnar er 206,5 fm.
Endurbætur. Húsið hefur verið mikið endurnýjað á undanförnum árum. Gólfhiti er á allri efri hæðinni. Eldhúsinnrétting endurnýjuð. Nýjar innihurðir á efri hæðinni, hækkaðar. Baðherbergi endurnýjað. Mest allt gler og gluggar endurnýjað. Húsið hefur verið múrklætt að utanverðu. Frárennslislagnir hafa verið fóðraðar. Neysluvatnslagnir endurnýjaðar að hluta til.
Einstaklega gott og vel skipulagt einbýlishús á frábærum stað í suðurhliðum Kópavogs. Mjög fallegt útsýni. Stór lóð. Mögulegar leigutekjur. Stutt í alla þjónustu og stofnbrautir.
Upplýsingar gefa sölumenn Kjöreignar í síma 533-4040 eða á kjoreign@kjoreign.is
Dan Wiium lögm. og lögg. fasteignasali gsm. 896-4013 eða dan@kjoreign.is
Ásta María Benónýsdóttir lögg. fasteignasali gsm. 897-8061 eða asta@kjoreign.is

Dýpri greining á Húsasjá
- Verðmat fasteignar
- Sölusaga og verðþróun
- Samanburður við sambærilegar eignir






