Hamraborg 28
09-0203 · 200 Kópavogi



18 dagar á sölu
51.900.000 kr
990.458 kr/m²
Eignamiðlun kynnir:
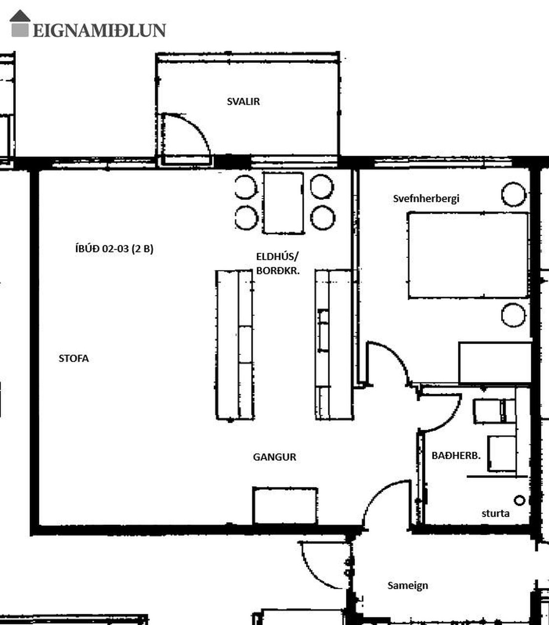
Hamraborg 28, 52.4 fm 2 herb. íbúð á 2. hæð í góðu vel staðsettu 3ja hæða fjölbýli. íbúðin var mikið endurnýjuð fyrir um 10 árum m.a gólfefni, baðherbergi, eldhús og fataskápar. Sérgeymsla í sameign. Sameiginlegt þvottahús. Aðgangur að sameiginlegu bílskýli.
Eignin er skráð sem hér segir hjá Þjóðskrá: Fastanr. 206-1333, nánar tiltekið eign merkt 02-03. Ibúðin er skráð 52,4 fm og virðist sérgeymsla í sameign ekki vera skráð í heildarfermetratölu eignarinnar. Birt heildarstærð er 52,4 fm. Eigninni fylgir aðgangur að sameiginlegu bílskýli. Svalir eru til vesturs út frá stofu.
Eignin skiptist í: Forstofu/hol,svefnherbergi, stofu, eldhús og baðherb.
Smelltu hér til að sækja söluyfirlit.
Nánari lýsing eignarinnar:
FORSTOFA/HOL: Hol með endurnýjuðum skápum og parketi.
ELDHÚS: Eldhúsið er með fallegri hvítri innréttingu og borðkrók við glugga. Parket. Ísskápur og uppþvottavél fylgja.
STOFA: Stofan er rúmgóð parketlögð og er gengið úr stofu út á vestursvalir inn í garðinn.
BAÐHERBERGI: Baðherbergið var eins og fleira endurnýjað fyrir ca 10 árum með innréttingu, vegghengdu salerni og "walk in"sturtuklefa. Baðherbergið er flísalagt.
SVEFNHERBERGI: Rúmgott parketlagt herbergi með nýlegum skápum.
SÉRGEYMSLA OG SAMEIGN: Góð sérgeymsla í sameign og aðgangur að sameiginlegu þvottahúsi, þurkherbergi og sameiginlegri hjóla og vagnageymslu.
BÍLSKÝLI: Aðgangur er að sameiginlegu bílskýli (ekki sérmerkt stæði) undir húsunum.
GARÐUR: Verið er að vinna í algjörri endurnýjun sameiginlegs garðs ofan á bílastæðahúsi milli húsanna.
Nánari upplýsingar veitir Þórarinn M. Friðgeirsson Löggiltur fasteignasali, í síma 899-1882, tölvupóstur thorarinn@eignamidlun.is eða skrifstofa Eignamiðlunar í síma 588-9090***
Ábyrg þjónusta í áratugi. Eignamiðlun var stofnuð 1957 og er elsta starfandi fasteignasala á Íslandi. Reynsla, heiðarleiki og þekking á fasteignamarkaðnum eru grunnur að farsælum viðskiptum.
Eignamiðlun Grensásvegi 11, 108 Reykjavík - Opið frá kl. 9-17 mánudaga til fimmtudaga og 9-16 á föstudögum.
Heimasíða Eignamiðlunar
Eignamiðlun á Facebook

Fáðu nýja innsýn á Húsasjá
- Verðmat fasteignar
- Sölusaga og verðþróun
- Samanburður sambærilegra eigna
















