Bæjartún 4
01-0101 · 200 Kópavogi



129 dagar á sölu
186.900.000 kr
536.452 kr/m²
Dagbjartur Willardsson löggiltur fasteignasali og RE/MAX kynna Bæjartún 4, Kópavogi fnr. 205-9402 -TVÆR AUKAÍBÚÐIR.
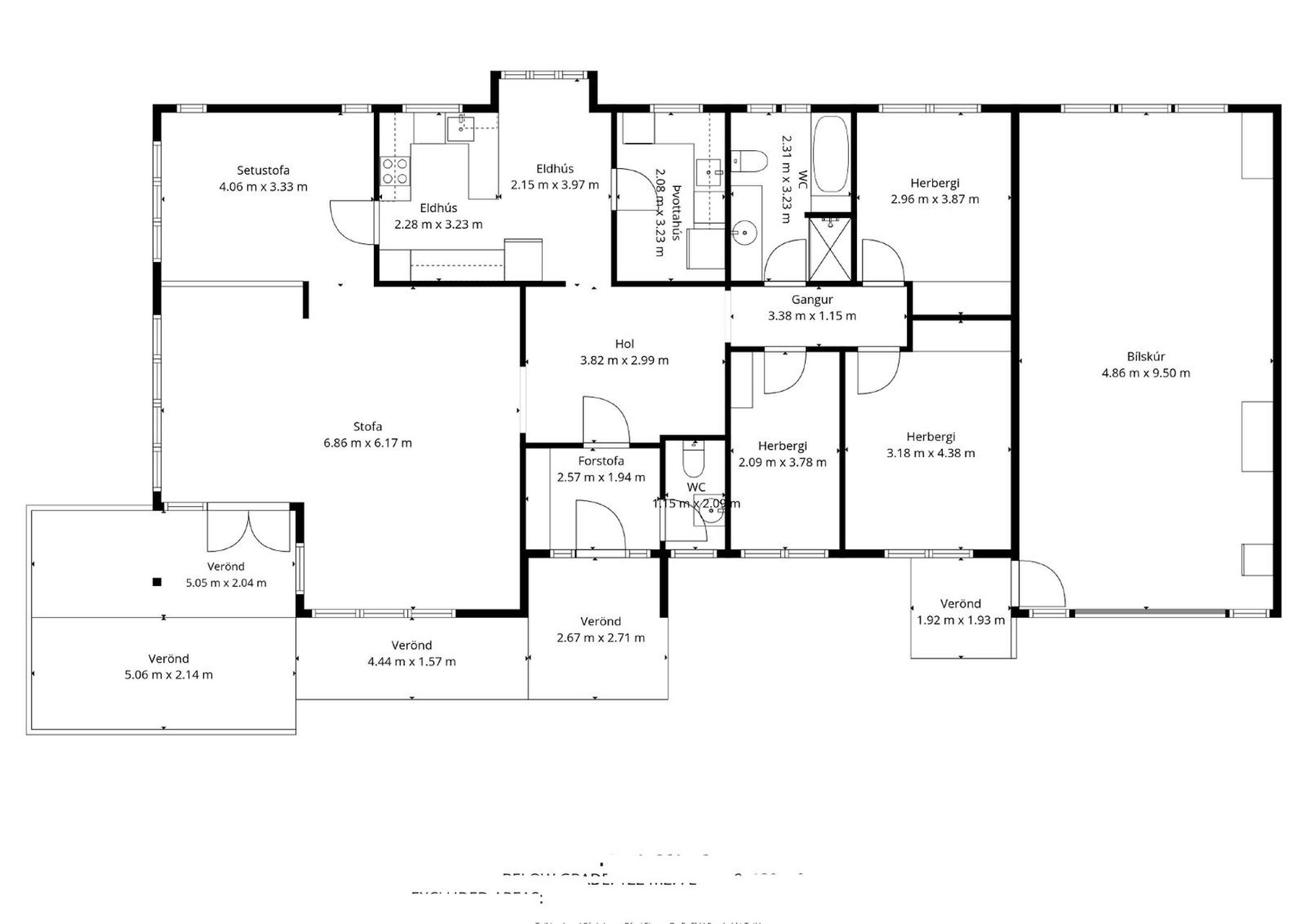
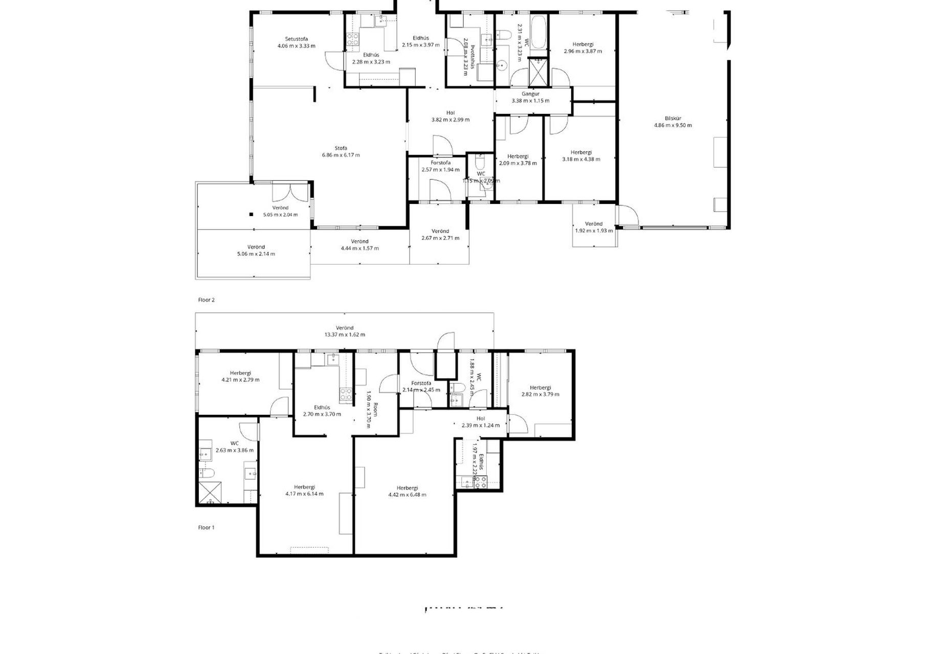
Húsið er byggt árið 1984 og er einbýlishús á tveimur hæðum. Eignin er skráð 348,4 fm samkv. HMS. Efri hæð er skráð 150,7 fm og svo eru tvær íbúðir á neðri hæð sem eru skráðar 45,4 fm og 71,3fm. Sameiginlegt rými á neðri hæð er svo skráð 5,2fm. Bílskúr er skráður 37,9 fm og geymsla undir bílskúr er skráð 37,9 en það rými er óútgrafið og því ekki notað í dag en hægt að grafa það út og nýta.
FÁÐU SENT SÖLUYFIRLIT YFIR EIGNINA HÉR.
Nánari lýsing:
EFRI HÆÐ:
Aðkoma: Hellulagt að inngangi í húsið sem og bílaplan fyrir framan bílskúrinn.
Forstofa: Flísar á gólfi. Rúmgóður fataskápur.
Gestasnyrting: Flísar á gólfi. Hvítur skápur með handlaug. Gluggi er í rýminu.
Eldhús: Flísar á gólfi. Hvít innrétting með góðu skápaplássi. Helluborð með háfi yfir. Baksturs og örbylgjuofn frá Siemens.
Þvottahús: Flísar á gólfi. Hillur eru í rýminu.
Stofa: Parket á gólfi á efri stofu en flísar á hluta stofu sem er neðar. Úr neðri stofu er útgengt á framlóð hússins.
Svefnherbergi: Eru þrjú talsins og eru öll með parketi á gólfi. Fataskápar eru í öllum svefnhergjum efri hæðar.
Baðherbergi: Flísalagt í hólf og gólf. Baðkar og sturtuklefi. Innrétting með handlaug.
Bílskúr: Heitt og kalt vatn. Rafmagn. Inngönguhurð og innkeyrsluhurð.
Lóð: Falleg og gróin lóð með fljölbreyttum gróðri.
NEÐRI HÆÐ:
Tvær íbúðir eru á neðri hæð og er sameiginlegt andyri fyrir báðar íbúðir. Stærri íbúðin er skrá 71,3fm og sú minni 45,4. Sjá má fyrirkomulag íbúðanna á teikningu sem er staðsett þar sem ljósmyndir eru af eigninni. Undir bílskúr er einnig rými sem er skráð 37,9 fm en það er óútgrafið en væri hægt að grafa það út og nýta. Gert er ráð fyrir stiga á milli efri hæðar og annarar íbúðar neðri hæðar.
Bæjartún 4 er stórt og vandað einbýlishús á frábærum stað í Kópavogi með tveimur íbúðum á neðri hæð sem henta til útleigu. Róleg gata en stutt í stofnbrautir í hverfinu. Núverandi eigandi byggði húsið árið 1984.
* þak kantur tekinn í gegn 2024
* þak pússað upp og málað 2023
* upprunalegir gluggar en vel við haldið
* ný rafmagnstafla
Allar nánari upplýsingar veita Dagbjartur Willardsson lgf. í síma 861-7507 eða daddi@remax.is.
- Ég býð upp á frítt söluverðmat á þinni eign og veiti góða og lipra þjónustu. -
Gjöld sem kaupandi þarf að standa straum af vegna kaupanna:
1. Stimpilgjald af kaupsamningi - 0,8% af heildarfasteignamati hjá einstaklingum. (Sé um fyrstu kaup að ræða er stimpilgjald af kaupsamningi 0,4%)
2. Stimpilgjald af kaupsamningi - 1,6% af heildarfasteignamati hjá lögaðilum.
3. Þinglýsingagjald af kaupsamningi, veðskuldabréfi, veðleyfi o.fl. 2.700 kr. af hverju skjali.
4. Lántökugjald lánastofnunar - sjá heimasíður lánastofnanna.
5. Umsýslugjald til fasteignasölu 69.900. kr. m.vsk.
Í lögum um fasteignakaup nr. 40/2002 er kveðið á um ríka skoðunarskyldu kaupenda á fasteignum. Vill RE/MAX því skora á væntanlega kaupendur að kynna sér vel ástand fasteigna fyrir kauptilboðsgerð og leita til þar til bærra sérfræðinga um nánari skoðun.

Dýpri greining á Húsasjá
- Verðmat fasteignar
- Sölusaga og verðþróun
- Samanburður við sambærilegar eignir





































