Sörlaskjól 66
01-0001 · 107 Reykjavík



13 dagar á sölu
61.900.000 kr
742.206 kr/m²
Hraunhamar fasteignasala kynnir tveggja-þriggja herbergja íbúð í þríbýli á eftirsóttum stað við sjávarsíðuna í Vesturbæ Reykjavíkur.
Eignin er skráð 83,4 fm skv. HMS.
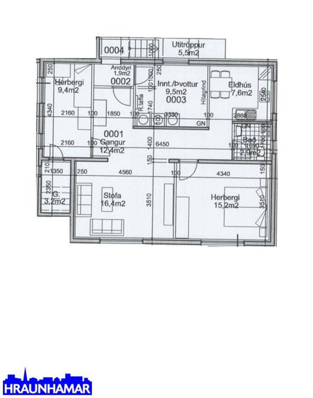
Nánari lýsing eignar:
Sérinngangur bakgarðsmegin.
Hol/gangur.
Eldhús með hvítri innréttingu. Skápur.
Tvö rúmgóð herbergi með fataskápum. (Annað þeirra er merkt stofa á teikningu)
Flísalagt baðherbergi með upphengdu salerni og baðkari. (er merkt herbergi til vinstri á teikningu). Geymsla undir útistiga innan baðherbergis.
Sameiginlegt þvottahús í kjallaranum.
Íbúðin er ekki í samræmi við teikningar.
Nánari upplýsingar veitir:
Glódís Helgadóttir löggiltur fasteignasali í s. 659-0510 eða glodis@hraunhamar.is
Skoðunarskylda:
Í lögum um fasteignakaup nr. 40/2002 er kveðið á um ríka skoðunarskyldu kaupenda á fasteignum. Hraunhamar fasteignasala vill benda væntanlegum kaupendum á að kynna sér vel ástand fasteigna fyrir kauptilboðsgerð og ef þurfa þykir að leita til sérfræðinga fyrir nánari ástandsskoðun.
Gjöld sem kaupandi þarf að standa straum af vegna kaupanna:
1. Stimpilgjald af kaupsamningi, fyrstu kaup (0,4%), almenn kaup (0,8%), lögaðilar (1,6%) af heildarfasteignamati.
2. Þinglýsingargjald af kaupsamningi, veðskuldabréfi, mögulegu veðleyfi o.fl. – 3.800 kr. af hverju skjali.
3. Lántökugjald lánastofnunar er skv. verðskrá viðkomandi lánastofnunar.
4. Umsýslugjald til fasteignasölu skv. þjónustusamningi
Hraunhamar er elsta fasteignasala Hafnarfjarðar, stofnuð 1983.
Hraunhamar, í fararbroddi í rúm 40 ár. – Hraunhamar.is
Smelltu hér til að fá frítt söluverðmat.
Smelltu hér til að fá söluyfirlit sent strax.

Dýpri greining á Húsasjá
- Verðmat fasteignar
- Sölusaga og verðþróun
- Samanburður sambærilegra eigna















