Grandavegur 47
08-0005 · 107 Reykjavík



8 dagar á sölu
122.900.000 kr
833.786 kr/m²
***DOMUSNOVA KYNNIR * INNRÉTTINGARVERKEFNI Í VESTURBÆNUM FYRIR TVÆR SAMÞYKKTAR ÍBÚÐIR***
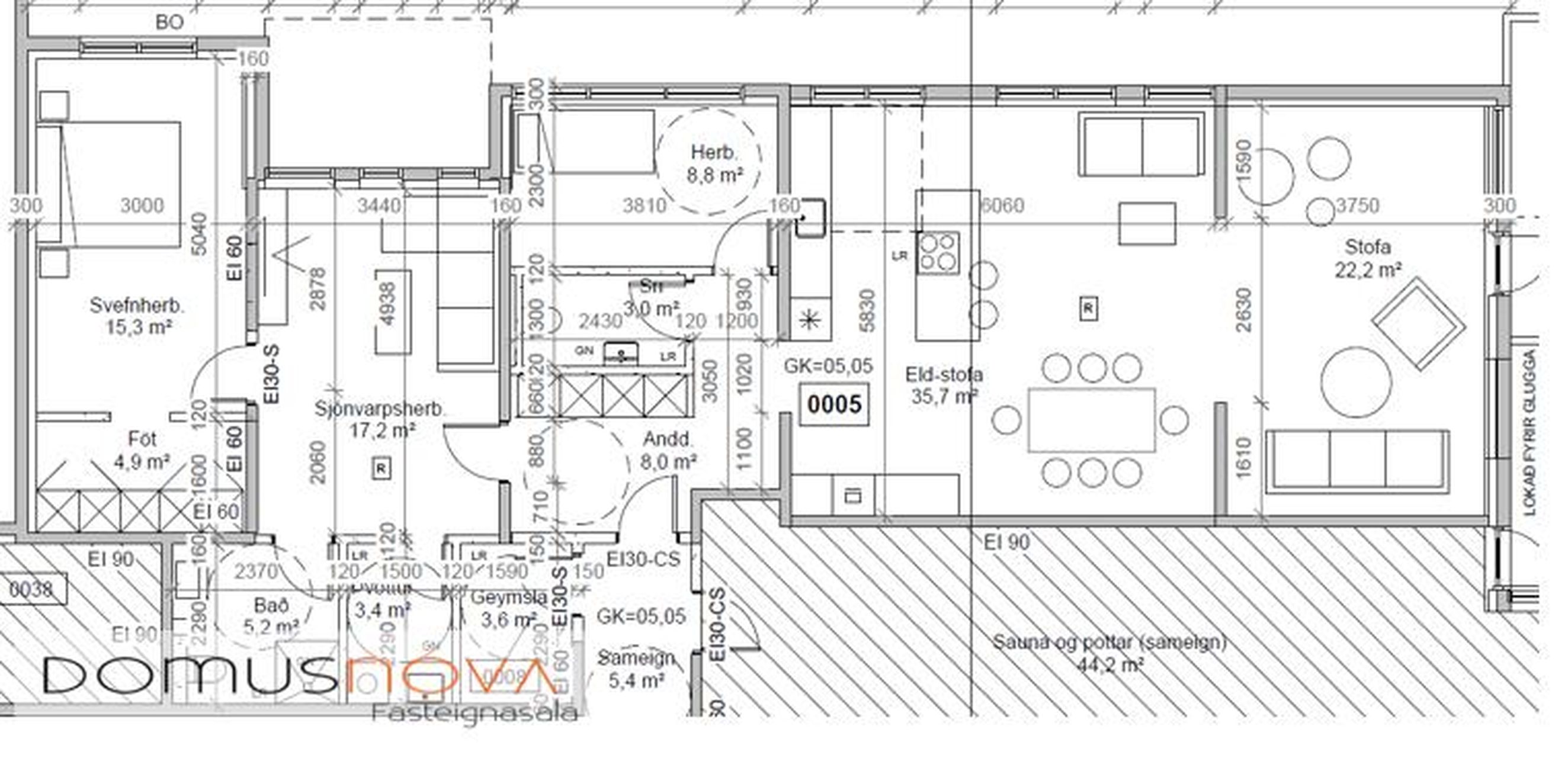
Atvinnuhúsnæði í vesturbænum á 1. hæð í fjölbýlishúsi, birt stærð samtals 273,6fm.
Fyrirliggjandi er heimild til að breyta húsnæðinu í tvær samþykktar íbúðir
Samþykktar teikningar liggja fyrir, þ.m.t. verkfræðiteikning og aðrar sérteikningar
Byggingaleyfi útgefið og til staðar
Í dag er húsnæðið leigt út í 4 einingum í skammtímaleigu sem íbúðir.
Útleigueiningarnar hafa haft aðgengi að sameign íbúðareigenda alls hússins þar sem er m.a. sauna. Út frá þessari aðstöðu er stór afgirt verönd til suðurs með heitum potti.
Fyrirliggjandi eru samþykktar teikningar að breytingu á hinu selda rými í tvær glæsilegar samþykktar íbúðir á jarðhæð annars vegar um 120fm. og hins vegar um 150fm. íbúð.
Ný lagnateikning fyrir pípulögn ásamt burðaþolsteikningu er frágengin og búið að greiða vegna hennar.
Nýir gluggar fyrir þau gluggagöt sem þarf að stækka og breyta í stærri íbúðinni fylgja með í kaupverði.
Ný eignaskiptayfirlýsing í vinnslu sem aðilar hússins hafa samþykkt fyrir sitt leyti og búið að greiða þá vinnu að öllu leyti.
Frábær staðsetning á eftirsóttum stað. Mögulegt að taka minni eign upp í kaupverð.
Nánari upplýsingar veita:
Agnar Agnarsson löggiltur fasteignasali / s.8201002 / agnar@domusnova.is
Um skoðunarskyldu:
Í lögum um fasteignakaup nr. 40/2002 er kveðið á um ríka skoðunarskyldu kaupenda á fasteignum. DOMUSNOVA fasteignasala bendir væntanlegum kaupendum á að kynna sér vel ástand fasteigna við skoðun og fyrir tilboðsgerð og ef þurfa þykir að leita til sérfræðinga um nánari ástandsskoðun.
Gjöld sem kaupandi þarf að standa straum af vegna kaupanna:Stimpilgjald af kaupsamningi sem er hlufall af fasteignamati. Stimilgjald er 0,8% fyrir einstaklinga (0,4% við fyrstu kaup m.v. að lágmarki 50% eignarhlut) og 1,6% fyrir lögaðila.Þinglýsingargjald af kaupsamningi, veðskuldabréfum, veðleyfum o.fl. Þinglýsingargjald er kr. 2.500,- fyrir hvert skjal.Lántökugjald lánastofnunar. Um lántökugjald vísast í gjaldskrá viðkomandi lánveitanda.Umsýsluþóknun fasteignasölu skv. gjaldskrá.

Fáðu nýja innsýn á Húsasjá
- Verðmat fasteignar
- Sölusaga og verðþróun
- Samanburður sambærilegra eigna





































