Hjallavegur 64
01-0101 · 104 Reykjavík



19 dagar á sölu
89.900.000 kr
634.887 kr/m²
RE/MAX / Brynjar Ingólfsson kynnir: Parhús sem er 141,60 m² á rólegum stað við Hjallaveg 64 í Reykjavík. Húsið býður upp á björt og notaleg rými og ýmsa möguleika á stækkunum.
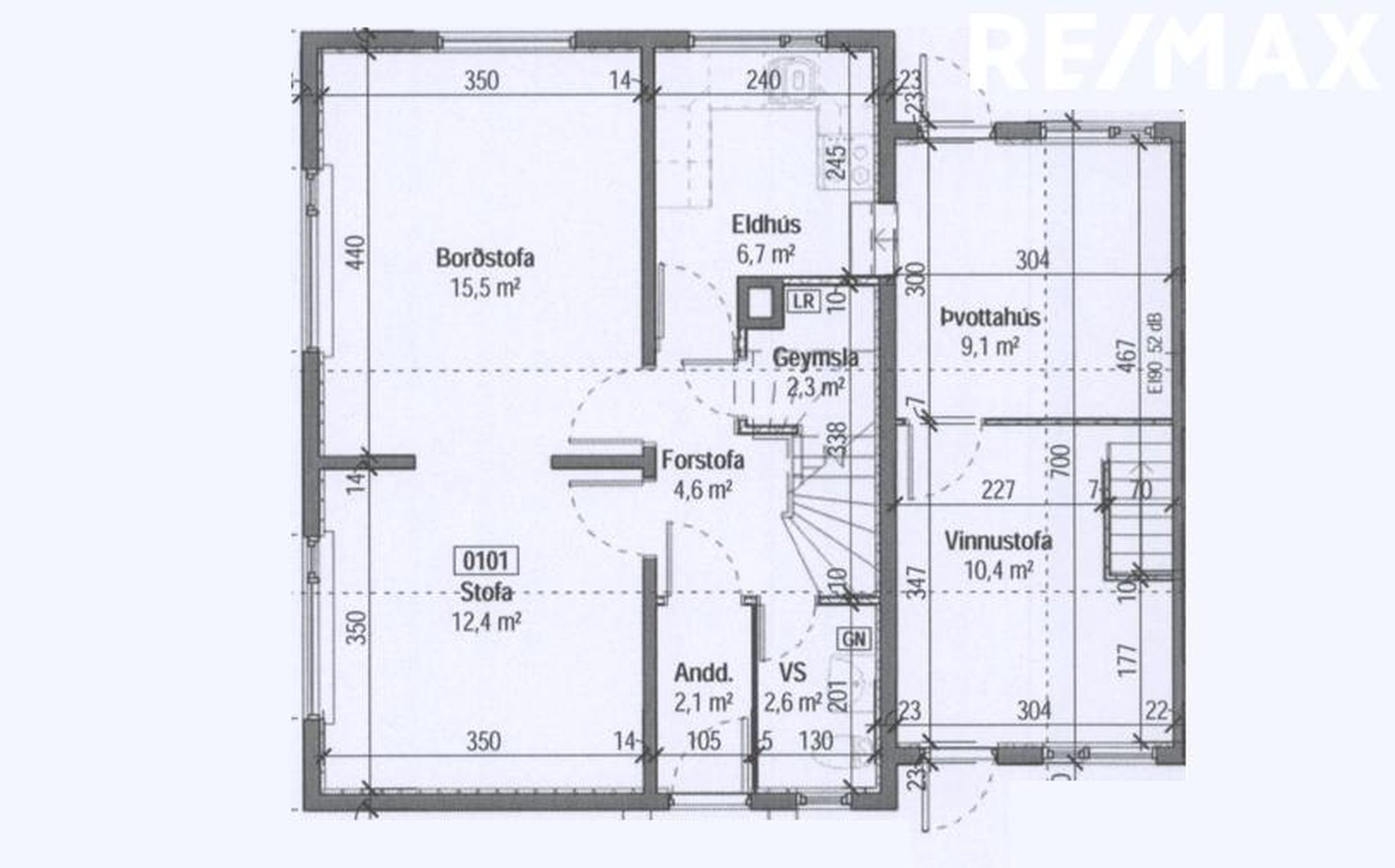
Eignin skiptist í aðalhæð með stofu, borðstofu, eldhúsi og gestasalerni. Einnig er á hæðinni vinnustofa og þvottahús/geymsla. Efri hæðin hýsir 2 svefnherbergi og baðherbergi. Í kjallara er geymsla, innangengt frá vinnustofu. Miklir möguleikar eru fólgnir í eigninni, þar sem byggingarleyfi var til staðar fyrir yfirbyggingu á 20 m² svölum og skv seljanda var heimild fyrir bílskúr á lóðinni. (Sækja þarf um að nýju). Staðsetningin er í grónu og fjölskylduvænu umhverfi, nálægt þjónustu og útivistarsvæðum, sem gerir hana að kjörnum kosti fyrir þá sem leita að eign með bæði þægindum og möguleikum til framtíðarþróunar.
Aðalhæð - Björt og opin rými með stofu, borðstofu og eldhúsi, auk gestasalernis.
Anddyri - Flísar á gólfi og góðu náttúruljósi frá útidyraglugga. Leiðir inn í önnur rými hússins.
Stofa - rúmgóð stofa með dökku parketi á gólfi og björtum gluggum sem hleypa inn mikilli náttúrulýsingu. Opið inn í borðstofu, sem skapar gott flæði.
Borðstofa - Björt borðstofa með dökku parketi á gólfi, opin frá stofu og með góðum gluggum. Rýmið er tilvalið fyrir samveru.
Eldhús - Nýleg eldhúsinnrétting frá 2020 með rauðum háglans skápum og ljósri borðplötu. Keramikhelluborð og ofn innbyggður, ásamt stálvaski. Parket á gólfi. Bjart með glugga sem veitir gott útsýni til umhverfis.
Gestasalerni - Flísar á gólfi með mynstri og blágrænar flísar á veggjum. Innrétting með handlaug og salerni. Gluggi veitir náttúruljós.
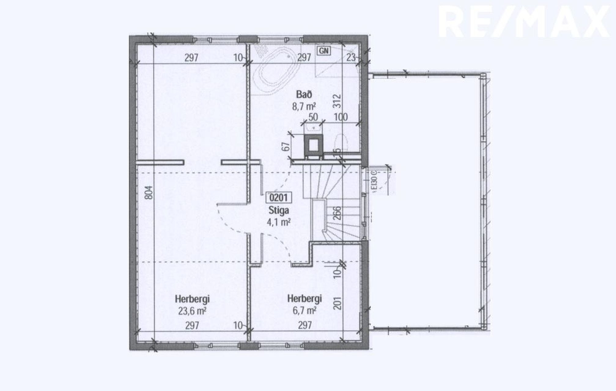
Efri hæð - Svefnherbergjaálma hússins með tveimur herbergjum og baðherbergi.
Stigagangur og hol - Flísalagðar tröppur frá 2016 tengja hæðirnar. Hol á efri hæð með dökku parketi og góðu náttúruljósi frá gluggum á stigapalli.
Hjónaherbergi - Rúmgott herbergi með dökku parketi á gólfi, panel á veggjum og undir súð. Fataskápar með speglum veita góða geymslu. Bjart með glugga.
Svefnherbergi II - Annað svefnherbergi á hæðinni með dökku parketi á gólfi og panelklæðningu á veggjum. Gluggi veitir náttúruljós og gott útsýni.
Baðherbergi - Var herbergi en gert að baðherbergi 2016 (allar lagnir nýjar), að hluta undir súð. Flísalagt gólf og veggir með viðar- og steinlíki. Rúmgott nuddbaðkar og sérsturtuklefi með sturtuhaus í lofti (óklárað). Handlaug með innréttingu og gluggi.
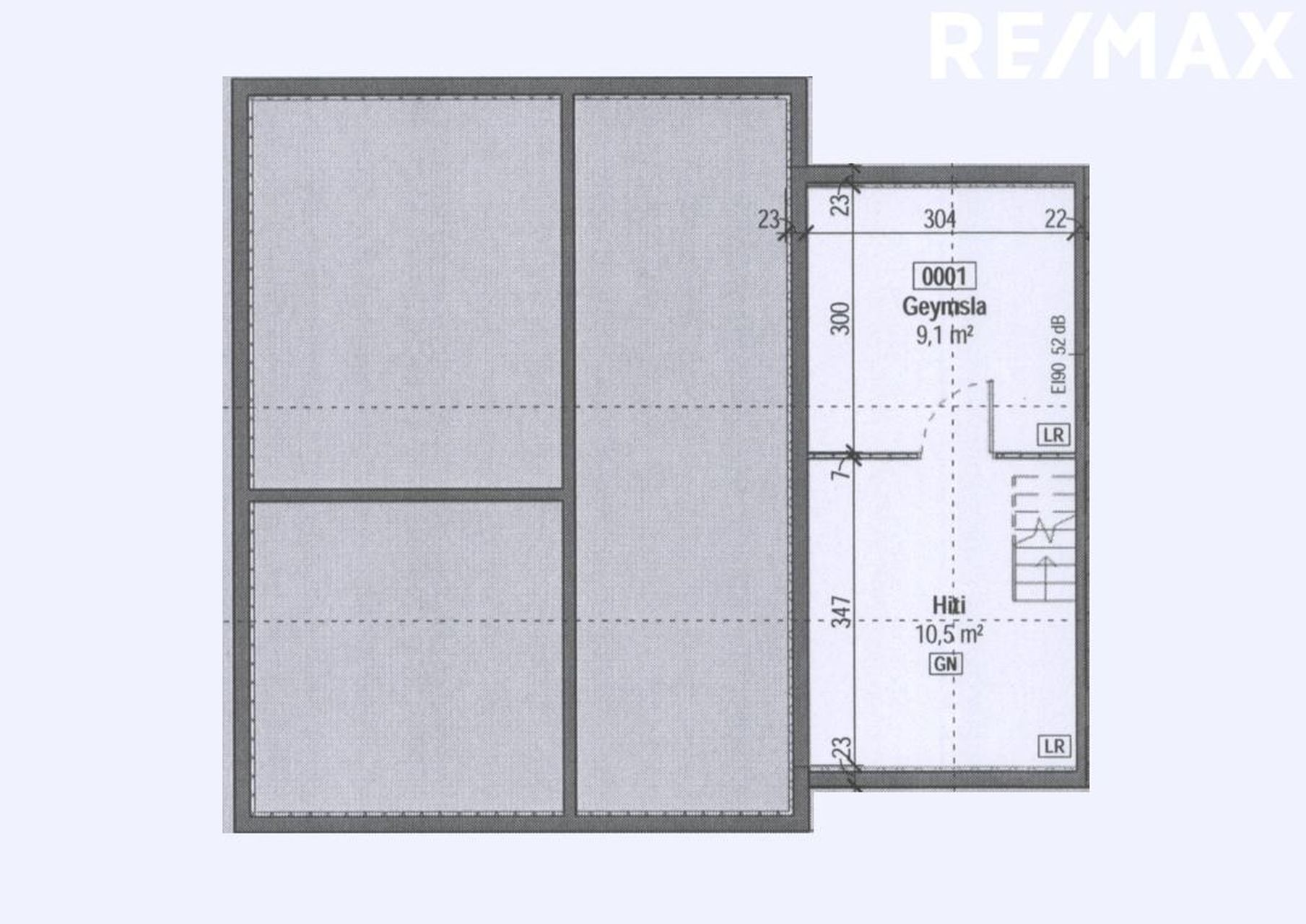
Jarðhæð - vinnustofa og geymsla
Fjölnota rými með sérinngangi. Nýir gluggar (2022) og hurðir (2016) undir svölum. Rýmið býður upp á mikla möguleika, t.d. sem aukaherbergi, vinnustofa eða geymsla.
Þvotta- og geymsluaðstaða - Aðstaða með máluðu steingólfi, tengi fyrir þvottavél og gott rými fyrir geymslu.
Lóð og umhverfi - Stór lóð með miklum möguleikum til útivistar og þróunar.
Svalir - Stórar svalir, 20 m², sem hefur verið veitt byggingarleyfi fyrir yfirbyggingu (útrunnið leyfi). Svalirnar hafa fengið viðhald og viðgerðir árið 2022.
Bílskúrsleyfi - Skv seljanda var leyfi fyrir bílskúr á lóðinni, sem býður upp á frekari þróunarmöguleika.
Staðsetning
Róleg og eftirsóknarverð staðsetning í Reykjavík, í grónu hverfi sem er í nálægð við þjónustu og græn svæði.
Helstu framkvæmdir
Árið 2016 var allt skólp endurnýjað, nýtt rafmagn dregið í allt húsið, nýtt parket lagt, panell settur á veggi, tröppur flísalagðar, nýtt baðherbergi sett upp á annarri hæð, nýjar hurðir settar í rýmið undir svölunum og nýtt gólf í kjallara. Árið 2020 var ný eldhúsinnrétting sett upp. Árið 2022 voru nýir gluggar settir í rýmið undir svölunum og viðgerðir og viðhald farið fram á svölum.
Allar frekari upplýsingar um eignina veitir:
Brynjar Ingólfsson MSc, löggiltur fasteignasali í síma 666 8 999 / brynjar@remax.is
Vegna mikillar eftirspurnar vantar okkur allar tegundir eigna á skrá. Hafið samband og ég mun verðmeta eign þína þér að kostnaðarlausu.Parhús sem er 141,60 m² á rólegum stað við Hjallaveg 64 í Reykjavík. Húsið býður upp á björt og notaleg rými og ýmsa möguleika á stækkunum.

Dýpri greining á Húsasjá
- Verðmat fasteignar
- Sölusaga og verðþróun
- Samanburður sambærilegra eigna





















