Ingólfsstræti 10
01-0301 · 101 Reykjavík



171 dagar á sölu
83.300.000 kr
1.124.157 kr/m²
Nýtt á skrá! Ingólfsstræti 10 Reykjavík - Bókið skoðun.
Lind fasteignasala / Heimir Hallgrímsson lögg. fasteignasali kynna til sölu glæsilega og sjarmerandi 3ja herbergja útsýnisíbúð með svölum á 3. hæð í afar fallegu bárujárnsklæddu timburhúsi byggðu árið 1907. Íbúðin er skráð 74,1 fermetrar að stærð en er mun stærri (um 90 fm utan háalofts) að grunnfleti þar sem hluti íbúðar er undir súð og nýtast þeir fermetrar mjög vel. Íbúðin er með upphaflegum viðarborðum á gólfum og panelklæddum veggjum og loftum. Aukin lofthæð er yfir hluta af stofum með fallegum viðarbitum í lofti. Reynt hefur verið að halda í upprunlegt horf hússins í viðhaldssögu þess. M.a. voru allir gluggar á austur- og suðurhlið endurnýjaðir (sérsmíðaðir) á árinu í upprunalegum stíl hússins. Þá var eldhús endurnýjað nýlega á smekklegan máta. Auk þess er búið að endurnýja mest af neysluvatnslögnum og rafmagnstöflu innan íbúðar.
Íbúðin skiptist í forstofu, stórar stofur, tvö svefnherbergi, fataherbergi, eldhús, baðherbergi og svefnloft/geymsluloft. Sameiginleg vagna- og hjólageymsla er í kjallara hússins.
Afar fallegt útsýni er frá íbúðinni út á Reykjavíkurtjörn, að Háskóla Íslands, að Hótel Borg, Landakotskirkju og út á sjó við Reykjavíkurhöfn. Lóðin er 197,0 fermetrar að stærð og sameiginleg. Sameiginlegur bakgarður til norðurs/vesturs.
Húsið er timburhús, byggt árið 1907. Fasteignin er eldri en 100 ára og því friðuð skv. lögum um menningarminjar nr. 80/2012. Þar af leiðandi er hægt að sækja um styrki hjá Minjastofnun þegar kemur að viðhaldi við húsið. Sameiginlegt bílastæði er á lóð.
Fasteignamat ársins 2026 er kr. 69.400.000,-.
Nánari lýsing:
Forstofa: Viðarfjalir á gólfi.
Stofa: Er stór með viðarfjölum á gólfum og panelklæddum veggjum/loftum. Aukin lofthæð og sjarmerandi gluggar til austurs og suðurs.
Eldhús: Var endurnýjað nýlega á fallegan máta. Nýleg eldhúsinnrétting með fallegum Taj Mahal steini á borðum og glugga til vesturs. AEG bakaraofn, spansuðu helluborð, innb. uppþvottavél og undirfelldur vaskur. Upphaflegar viðarfjalir á gólfum hafa fengið að halda sér.
Hjónaherbergi: Er rúmgott með viðarfjölum á gólfum og glugga til norðurs.
Svefnherbergi II: Með viðarfjölum á gólfum og glugga til suðurs með fallegu útsýni.
Fataherbergi: Með viðarfjölum á gólfi og skápum. Gengið er inn í fataherbergi frá svefnherbergi II.
Svalir: Eru afar sjarmerandi þar sem þakið gengur yfir þær að hluta. Glæsilegt útsýni yfir miðborgina og út á sjó.
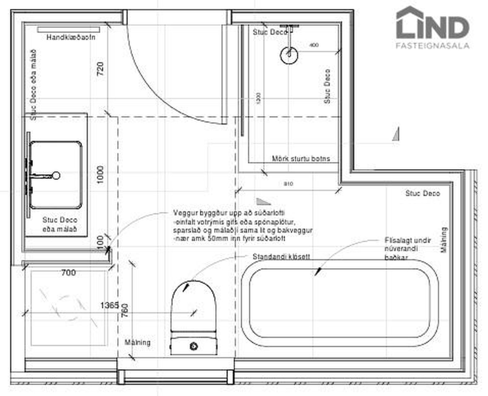
Baðherbergi: Með viðarfjölum á gólfi, baðkari með sturtutækjum og sturtu.Tengi fyrir þvottavél, salerni og vaskur. Gluggi til vesturs. Ný blöndunartæki (Omnires) eru til fyrir baðherbergi sem fylgja íbúð. Teikningar af baðherbergi (breytingum) fylgja með (sjá myndir til hliðsjónar).
Risloft: Er yfir hluta af íbúðinni sem skráist ekki inn í fermetratölu íbúðar. Hefur verið nýtt sem svefnloft og geymsluloft. Gluggi til vesturs.
Sameign: Er afar sjarmerandi með upphaflegu handriði á stigagangi.
Hjóla- og vagnageymsla: Er sameiginleg í kjallara hússins.
Allar nánari upplýsingar veitir:
Heimir Hallgrímsson lögg. fasteignasali í síma 849-0672 eða á netfanginu heimir@fastlind.is

Dýpri greining á Húsasjá
- Verðmat fasteignar
- Sölusaga og verðþróun
- Samanburður við sambærilegar eignir





































