Vatnsstígur 10
Lóð · 101 Reykjavík



179 dagar á sölu
130.000.000 kr
813.008 kr/m²
Garðatorg eignamiðlun ehf kynnir eignina Vatnsstígur 10, 101 Reykjavík, fastanúmer 200-3325 ásamt öllu því sem eigninni fylgir, þar með talið tilheyrandi lóðar og sameignarréttindi.
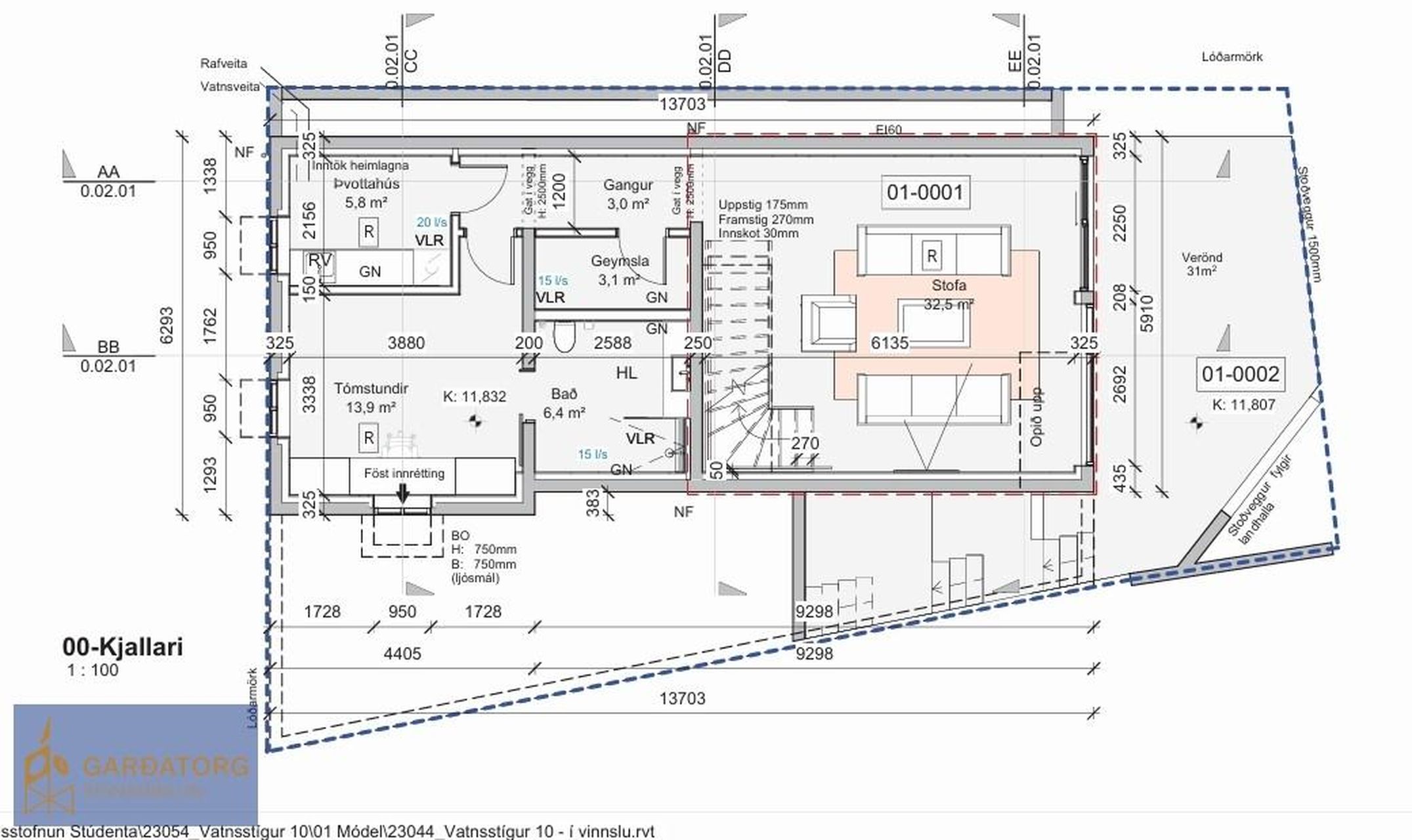
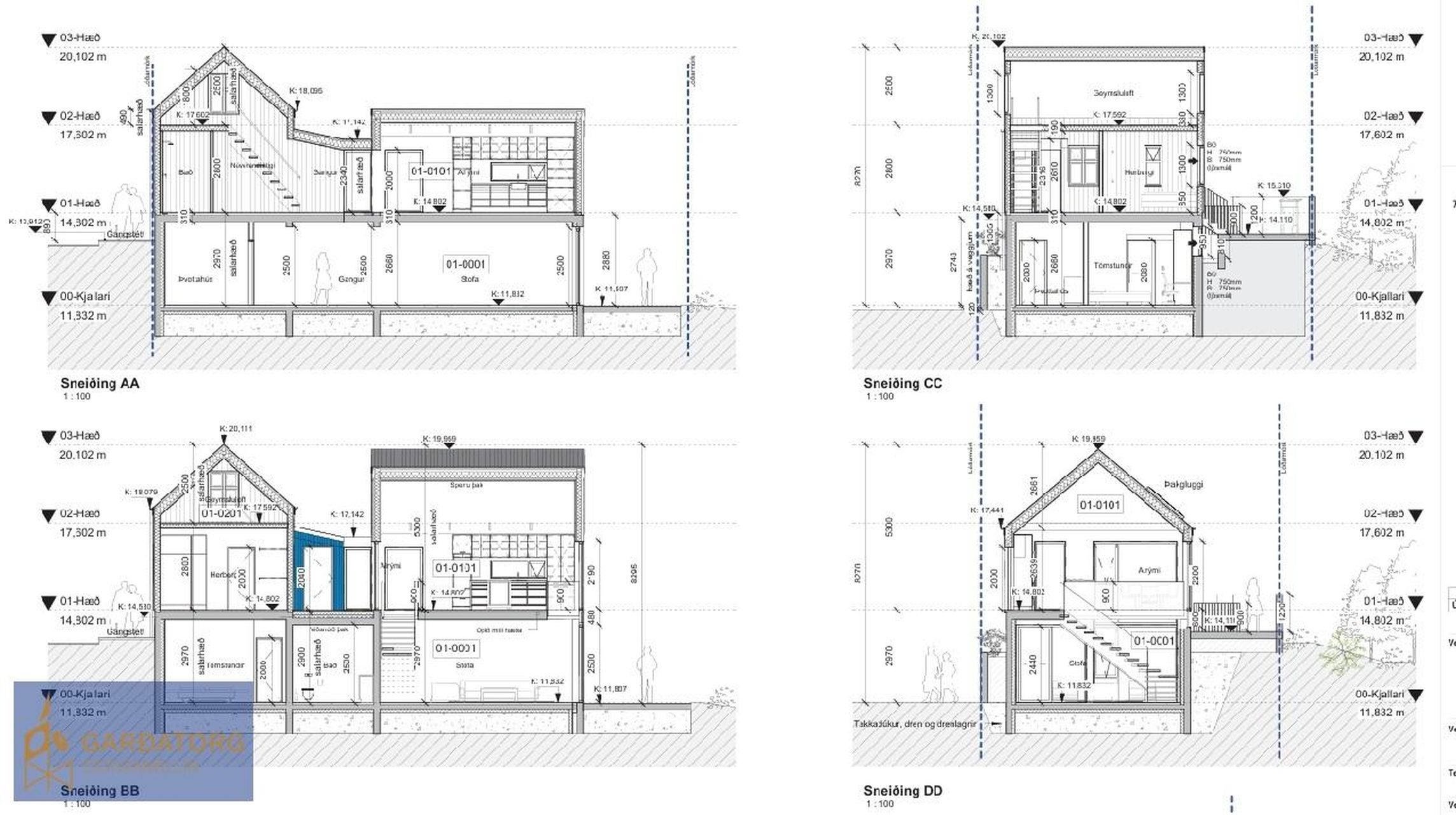
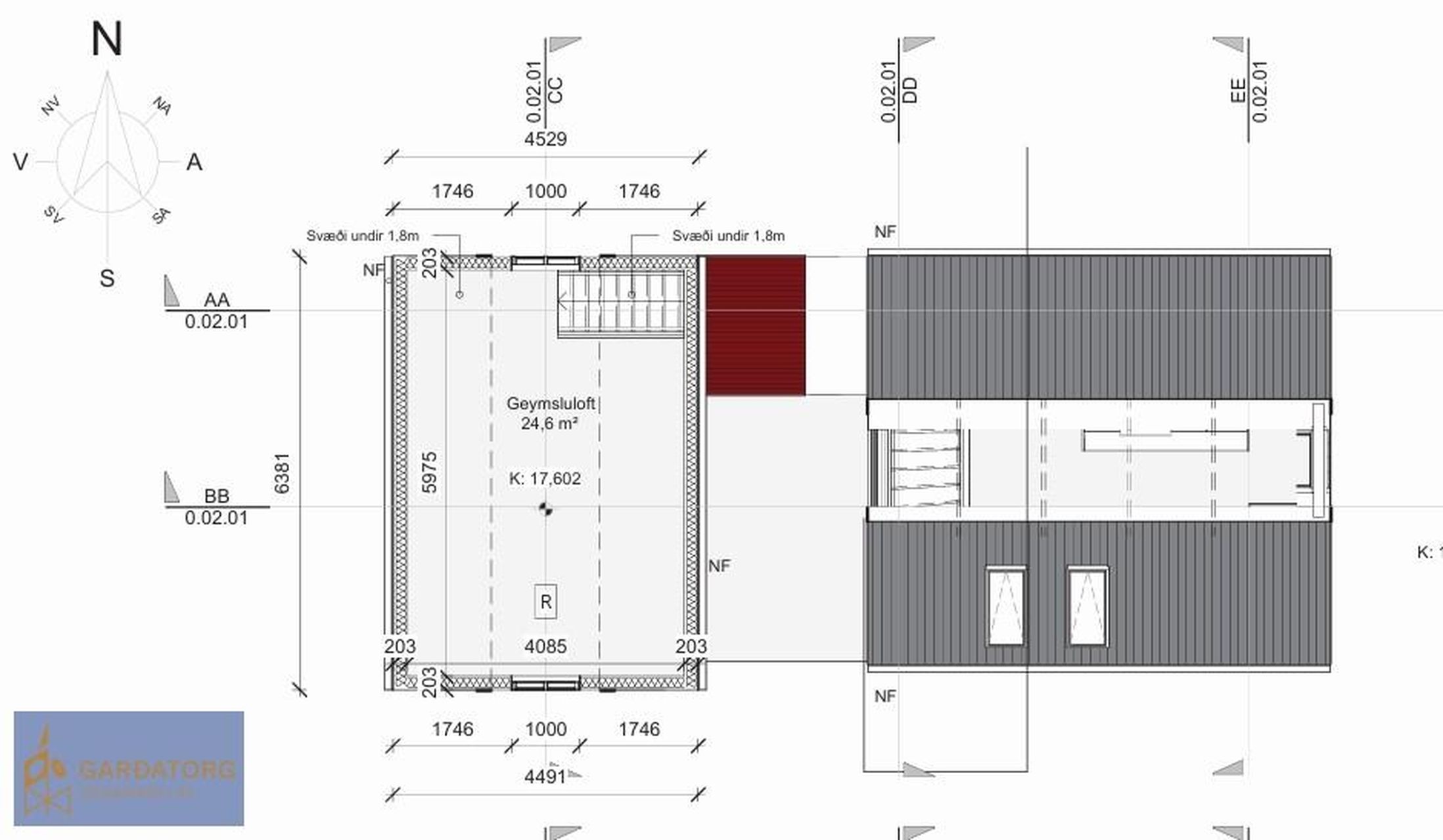
Eignin Vatnsstígur 10 er skráð sem hér segir hjá FMR: Eign 200-3325, birt stærð 159.9 fm.
Um er að ræða 159.9 fm einbýlishús sem samanstendur af gömlu mikið endurnýjuðu járnklæddu timburhúsi á tveimur hæðum sem fært var á nýja uppsteyptan kjallara með mikilli lofthæð og nýrri viðbyggingu. Húsið er allt ný klætt með nýjum gluggum og hurðum. Húsið er fokhelt að innan en fullbuið að útan ásamt garði og afhent í núverandi ástandi með fokheldisvottorði. Járn á eldri byggingu þarf að mála í lit ákveðin í sameiningu af húsafriðunarnefnd. Búið er að taka inn vatn og hitaveitu ásamt tengirörum fyrir fjarskipti en lagnir að öðru leyti ófrágengnar. Húsið gefur mikla möguleika að innrétta það til útleigu..
Byggingastjóri og iðnmeistarar aðrir en hússsmíðameistari geta fylgt með samkvæmt nánara samkomulagi aðila í milli sem seljandi á ekki aðild að.
Allar nánari upplýsingar veitir:
Haraldur Björnsson lögg. fasteignasali S: 787-8727 haraldur@gardatorg.is
Steinar S. Jónsson lögg. fasteignasali S: 898-5254 steinar@gardatorg.is
Um skoðunar- og aðgæsluskyldu:
Í lögum um fasteignakaup nr. 40/2002 er kveðið á um ríka skoðunarskyldu kaupenda á fasteignum. Garðatorg eignamiðlun bendir væntanlegum kaupendum á að kynna sér vel ástand fasteigna við skoðun og fyrir tilboðsgerð og ef þurfa þykir að leita til sérfræðinga um nánari ástandsskoðun.
Forsendur söluyfirlits:
Söluyfirlit er samið af fasteignasala í samræmi við ákvæði laga nr. 70/2015. Þær upplýsingar sem fram koma í söluyfirliti þessu eru sóttar í opinberar skrár, til seljanda sjálfs og eftir atvikum til húsfélags. Seljandi veitir upplýsingar um eign í samræmi við upplýsingaskyldu laga um fasteignakaup nr. 40/2002. Fasteignasali sannreynir að þær upplýsingar séu réttar með sjónskoðun á eigninni.
Fasteignasali getur ekki fullyrt um ástand og eiginleika þeirra hluta fasteigna sem ekki eru aðgengilegir og sjást ekki berum augum, t.d. lagnir, dren, skólp og þak.
Í lögum um fasteignakaup nr. 40/2002 er kveðið á um ríka skoðunarskyldu kaupenda á fasteignum. Vill því Garðatorg eignamiðlun skora á væntanlega kaupendur að kynna sér vel ástand fasteigna fyrir kauptilboðsgerð og leita til þar til bærra sérfræðinga um nánari skoðun ef með þarf.
Gjöld sem kaupandi þarf að standa straum af vegna kaupanna:
1. Stimpilgjald af kaupsamningi - 0.8% af heildarfasteignamati / 1.6% fyrir lögaðila. (0.4% við fyrstu kaup einstaklinga).
2. Þinglýsingagjald af kaupsamningi, veðskuldabréfi, veðleyfi o.fl.- kr. 2.700 af hverju skjali.
3. Lántökugjald lánastofnunar
4. Umsýsluþóknun til fasteignasölu, sbr.kauptilboð

Dýpri greining á Húsasjá
- Verðmat fasteignar
- Sölusaga og verðþróun
- Samanburður við sambærilegar eignir











































