Garðastræti 6
01-0201 · 101 Reykjavík



245 dagar á sölu
76.900.000 kr
998.701 kr/m²
Eignamiðlun kynnir:
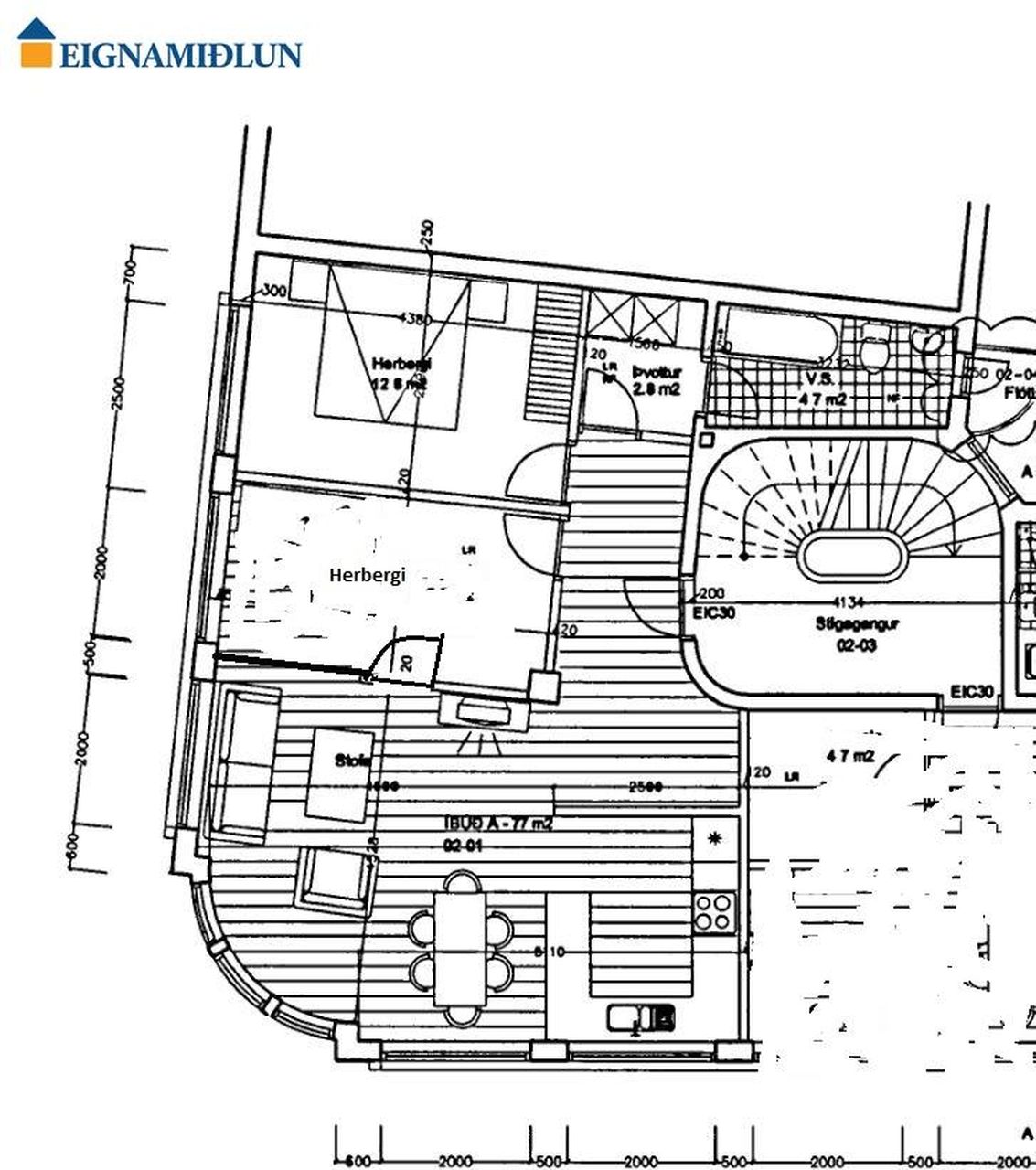
Afar björt og rúmgóð, þriggja herbergja íbúð á 2. hæð í fallegu, steinsteyptu fjölbýlishúsi í gamla Vesturbænum. Húsið hefur fengið gott viðhald. Skipt var um alla glugga og gler í september 2025 og skipt var um þak 2024.
**Sækja söluyfirlit**
Lýsing eignar:
Inngangur: Sameiginlegur inngangur að mjög snyrtilegri sameign.
Forstofa/hol: Rúmgott hol, flisalagt með náttúruflísum og góðu skápaplássi.
Eldhús: Opið með fallegri viðarinnréttingu og parketi á gólfum.
Stofa/borðstofa: Rúmgóð og björt, parketlögð stofa og borðstofa í opnu rými. Einstaklega falleg gluggasetning setur sterkan svip á rýmið.
Baðherbergi: Flísalagt í hólf og gólf með steyptri, stórri sturtu, upphengdu salerni og innréttingu auk ágætis skápapláss. Góður gluggi.
Svefnherbergi: Bjart og rúmgott með parketi og skápum.
Herbergi: Gott herbergi með parketi.
Þvottahús: Staðsett inn af baðherbergi.
Við hlið hússins er læst port/húsasund þar sem hægt er að geyma t.d. reiðhjól
Framkvæmdir og viðhald:
Skipt var um alla glugga og gler í september 2025. (ATH myndir voru teknar áður en skipt var um glugga).
Þak (járn, pappi og fleira) var endurnýjað 2024.
Hús var endursteinað að utan 2008.
Frárennslislagnir út í götu voru fóðraðar 2005.
Aðalrafmagnstafla var endurnýjuð árið 2005 þegar húsi var breytt úr skrifstofuhúsnæði í íbúðarhúsnæði.
Gólfefni, eldhúsinnrétting og baðherbergi voru standsett á sama tíma.
Veggir íbúðar eru flestir léttir og því auðvelt að breyta skipulagi að vild.
Bílastæðahús er staðsett steinsnar frá húsinu með aðkomu frá Mjóstræti. Íbúapassar í boði til notkunar í almenn stæði.
Nánari upplýsingar veitir:
Lilja Guðmundsdóttir löggiltur fasteignasali - s. 649-3868 eða lilja@eignamidlun.is
***
Ábyrg þjónusta í áratugi. Eignamiðlun var stofnuð 1957 og er elsta starfandi fasteignasala á Íslandi. Reynsla, heiðarleiki og þekking á fasteignamarkaðnum eru grunnur að farsælum viðskiptum.
Eignamiðlun Grensásvegi 11, 108 Reykjavík - Opið frá kl. 9-17 mánudaga til fimmtudaga og 9-16 á föstudögum.
Heimasíða Eignamiðlunar
Eignamiðlun á Facebook

Fáðu nýja innsýn á Húsasjá
- Verðmat fasteignar
- Sölusaga og verðþróun
- Samanburður sambærilegra eigna


















